Objektdaten
Objektbeschreibung
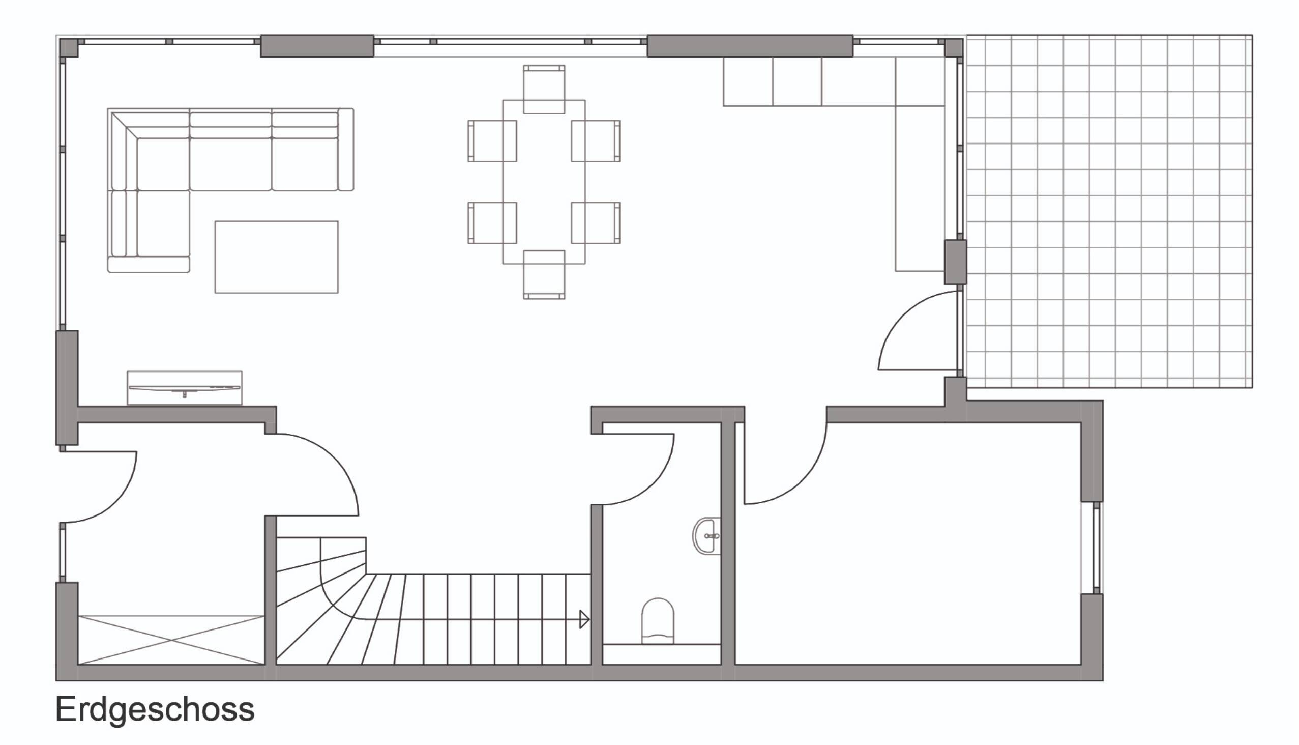
In Hösbach-Bahnhof ist der Name Programm: Am Anfang einer idyllischen Anliegerstraße entstehen hier auf einem Eckgrundstück zwei Wohnhäuser, von denen aus Sie die Weiten des Spessarts genießen können. Die großen Fensterflächen bieten aber nicht nur eine großartige Aussicht: Sie lassen auch viel Licht und Luft in ihr neues Eigenheim.Eckhaus: Auf drei Etagen verteilt, leben Sie hier naturnah und dennoch in modernem Ambiente. Reinkommen, abschalten, wohlfühlen: Das ist hier die Devise.Auch im Freien lässt es sich auf der weitläufigen Terrasse prima vom Alltag erholen: In angenehmer Privatsphäre können Sie hier ihr Frühstück genießen, Freunde empfangen oder einfach den Tag ausklingen lassen. Ihren PKW parken Sie bequem auf einem Stellplatz vor dem Haus.Gesamtwohnfläche: ca. 169 m²Grundstücksgröße: ca. 260 m²Der Kaufpreis in Höhe von 599.000,00 EUR versteht sich ohne Oberbeläge sowie ohne Tapeten bzw. Anstrich.So funktioniert es
- Alle neuen Anzeigen matchen wir kostenlos mit Deinen Suchparametern.
- Passende Angebote senden wir Dir in einer E-Mail pro Tag.
- Du kannst auch verschiedene Suchen anlegen und Dich jederzeit abmelden. Mehr dazu



