Kaufpreis 461.162 €
Zimmer 6
Größe 154 m²
18059 Rostock
Objektdaten
Veröffentlicht am: 18. April 2025
Baujahr: 2025
Energieausweis: Liegt bei der Besichtigung vor
Danke! Bitte bestätige Deine E-Mail-Adresse – wir haben Dir soeben eine Mail geschickt.
Es gab ein Problem beim Absenden. Bitte versuche es erneut.
Bitte bestätige Deine E-Mail-Adresse, um Updates zu erhalten.
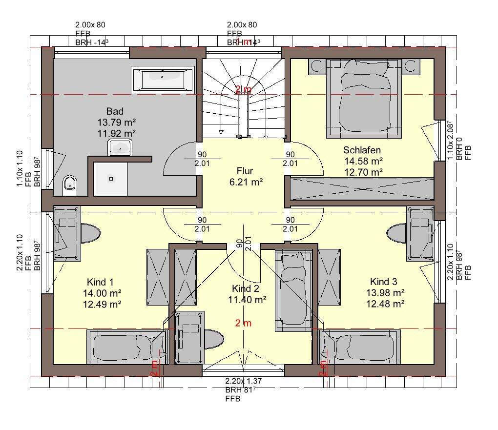
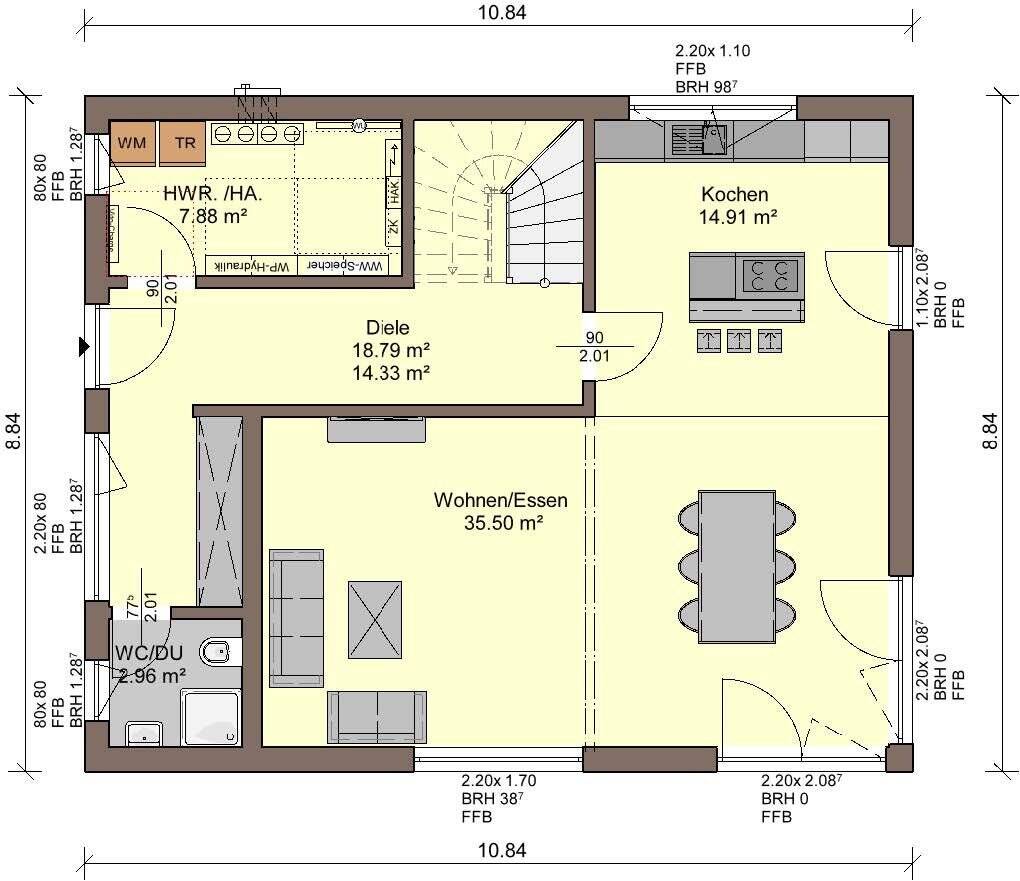
Objektbeschreibung
Bei dem angebotenen Objekt handelt es sich um einen Neubau mit einem Beispie-Grundriss. Entsprechend Ihrer Wünsche und Vorstellungen passen wir natürlich Ihren Grundriss an. Alle Details zu Ihren Wünschen, der Bauweise und Qualitäten, besprechen wir gerne in einem persönlichen Treffen. Im Standard sind unsere Häuser mit Viessmann-Energiesystemen ausgerüstet. Ihr Haus wird mit Solarstrom versorgt und Warmwasser/Heizung wird mit ener Luft-Wärmepumpe erzeugt.Es enstehen durch die hervoragend gedämmte Gebäudehülle und des hocheffizienten Viessmann-Energiesystems, sehr gerimge Energie-Kosten. Somit sind Sie weitestgehend unabhängig von der Energiekosten-Entwicklung.Da die Grundstück-Vermittlung bei uns ein kostenloser Service für unsere Kunden ist, habe Sie bitte Verständnis dafür, daß wir keine konkreten Anschriften ohne ein persönliches Gespräch preisgeben und das Grundstück nicht ohne ein entsprechendes Bauvorhaben durch meine Handelsvertretung zu erwerben ist. Bei dem hier beworbenen Angebot handelt es sich um eine Beispielbebauung auf einem Grundstück eines Erschließungsträgers, Maklers oder einer privaten Person. Büdenbender Hausbau tritt ausschließlich als das bauausführende Unternehmen auf. Eine Grundstück-Suche o./ u. -Vermittlungsauftrag kann über meine Handelsvertretung erfolgen. Gerne planen wir Ihr Traumhaus auf Ihrem bereits vorhandenen, oder reservierten Grundstück, oder unterstützen Sie bei Ihrer Suche..Nicht im Angebot enthalten sind: das Grundstück u. dessen Erwerbskosten, Außen- und Nebenanlagen, sowie die branchenüblichen Baunebenkosten. Wie sich diese im Detail zusammensetzen, erörtern wir mit Ihnen gerne in einem persönlichen Gespräch.Das Angebot ist freibleibend und unverbindlich.Gerne lade ich Sie zu einem undIndividuellen Bauherren-Termin mit einer Präsentation in Rostock ein. Hier spreche ich mit Ihnen und beantworte Ihre Fragen zu den Themen:- Das Büdenbender-Architektenhaus mit seinen Architektur-Linien und seinen Möglichkeiten der individuellen Gestaltung Ihres Grundrisses.- Das Plus-Energiehaus mit hohem Selbstversorger-AnteilIch freue mich auf Ihre Rückmeldung zur Termin-Findung.
So funktioniert es
- Alle neuen Anzeigen matchen wir kostenlos mit Deinen Suchparametern.
- Passende Angebote senden wir Dir in einer E-Mail pro Tag.
- Du kannst auch verschiedene Suchen anlegen und Dich jederzeit abmelden. Mehr dazu
Wir haben soeben eine E-Mail mit Deinem Suchauftrag an Dich geschickt. – Klicke in dieser Mail auf den Bestätigungslink und schon geht's los. Prüfe ggf. auch Deinen Spamordner.
Es gab ein Problem beim Absenden Deiner E-Mail-Adresse. Bitte versuche es erneut.
WARNUNG: Bitte bestätige Deine E-Mail-Adresse, um regelmäßige Updates zu erhalten.