Kaufpreis 596.000 €
Zimmer 4
Größe 99 m²
72622 Nürtingen
Objektdaten
Veröffentlicht am: 20. April 2025
Energieausweis: Liegt bei der Besichtigung vor
Danke! Bitte bestätige Deine E-Mail-Adresse – wir haben Dir soeben eine Mail geschickt.
Es gab ein Problem beim Absenden. Bitte versuche es erneut.
Bitte bestätige Deine E-Mail-Adresse, um Updates zu erhalten.
Objektbeschreibung
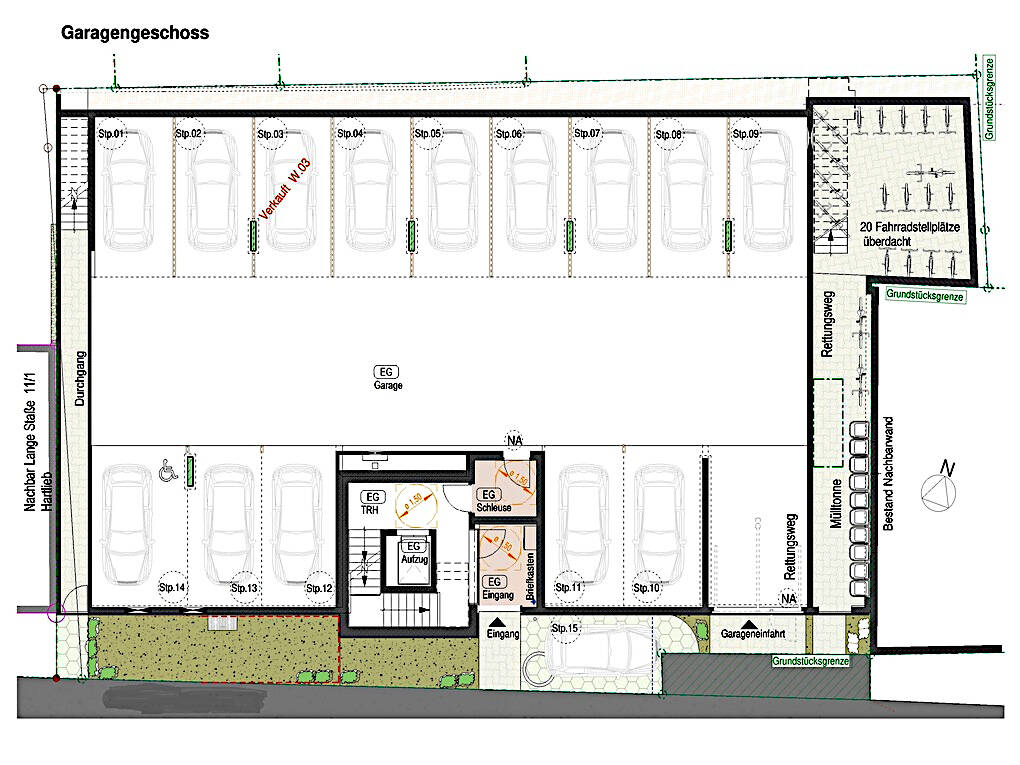
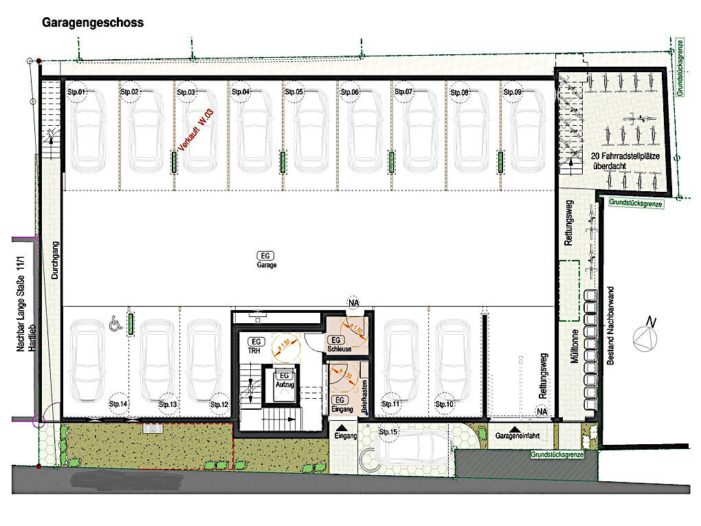
Projektiertes Mehrfamilienhaus der Beate Schimek Wohnbau-Gerlingen! Hochwertige Bauweise, barrierefrei! - Keine Käuferprovision!In der Lange Straße 13 in 72622 Nürtingen-Neckarhausen, baut Ihnen die "Beate Schimek Wohnbau" aus Gerlingen Ihren ganz persönlichen Wohlfühlort. Hier entstehen lediglich 10 Wohnungen mit 14 Garagenstellplätzen, einer aufwendigen und modernen Dämmtechnik mit ökologischer und moderner Heizungsanlage sowie Aufzug und geräumige Kellerräume.Das Bauvorhaben wird in massiver Bauweise in hoher Architekturqualität erstellt. Es werden grundsätzlich nur Qualitätswerkstoffe verwendet. Ein aus der Nähe stammender Handwerkerkreis sichert die Bauqualität.Diese Eigentumswohnungen bieten Ihnen ein echtes Zuhause mit Charakter. Helle, gut geschnittene Räume laden zum Wohlfühlen ein. Stellen Sie sich vor, wie Sie gemütliche Abende im Wohnzimmer verbringen oder auf Ihrem Balkon/Ihrer Terrasse die Seele baumeln lassen. Einige Wohnungen bieten Süd - Aussichtslage, andere große, ruhige Terrassen mit Blick ins Grüne, also perfekter Wohngenuss. Die Sonne gibt freien Lauf auf die Balkone und Terrassen nach Süden, Osten und Westen.Die Wohnungen werden barrierefrei errichtet und sind somit ideal auch für Eigenheimbesitzer, die im nächsten Schritt eine altersgerechte und komfortable Wohnform suchen.Die Wohnungen haben mit Flächen von 79 m² bis hin zu 109 m² sowie Terrasse/Balkon die optimale Größe für individuelle Bedürfnisse und bieten Platz für ein bis zwei Bewohner, die sich hier ein angenehmes und selbst bestimmtes Leben gestalten möchten.----------------------------------------------------------------------------Sie interessieren sich für eine andere der insgesamt nur 10 Wohnungen, welche noch besser zu Ihren Bedürfnissen passt?Dann nehmen Sie unbedingt mit uns Kontakt auf! - Jetzt ist auch noch die Gelegenheit, Ihr Wunschobjekt individuell an ihre Bedürfnisse anzupassen!Die Wohnungen werden barrierefrei für Ihren individuellen Komfort gestaltet. Erfüllen Sie sich Ihren Traum vom eigenen Zuhause in einer ruhigen und doch zentralen Lage von Nürtingen.Nützen Sie jetzt noch die Gelegenheit, Ihre Wohnung noch individuell für ihre Bedürfnisse anzupassen.
So funktioniert es
- Alle neuen Anzeigen matchen wir kostenlos mit Deinen Suchparametern.
- Passende Angebote senden wir Dir in einer E-Mail pro Tag.
- Du kannst auch verschiedene Suchen anlegen und Dich jederzeit abmelden. Mehr dazu
Wir haben soeben eine E-Mail mit Deinem Suchauftrag an Dich geschickt. – Klicke in dieser Mail auf den Bestätigungslink und schon geht's los. Prüfe ggf. auch Deinen Spamordner.
Es gab ein Problem beim Absenden Deiner E-Mail-Adresse. Bitte versuche es erneut.
WARNUNG: Bitte bestätige Deine E-Mail-Adresse, um regelmäßige Updates zu erhalten.