Objektdaten
Objektbeschreibung
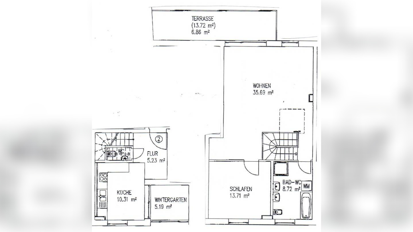
Die Wohnung für den anspruchsvollen Single (oder zu zweit) im Herzen der Stadt Zwickau. Alle Wege zu Fuß möglich.Die Küche kann vom Vormieter übernommen werden.Kaution: 2 MM kaltÄhnliche Angebote
So funktioniert es
- Alle neuen Anzeigen matchen wir kostenlos mit Deinen Suchparametern.
- Passende Angebote senden wir Dir in einer E-Mail pro Tag.
- Du kannst auch verschiedene Suchen anlegen und Dich jederzeit abmelden. Mehr dazu





