Kaufpreis 2.287.000 €
Zimmer 5
Größe 138 m²
25980 Sylt
Objektdaten
Veröffentlicht am: 22. April 2025
Energieausweis: Liegt bei der Besichtigung vor
Danke! Bitte bestätige Deine E-Mail-Adresse – wir haben Dir soeben eine Mail geschickt.
Es gab ein Problem beim Absenden. Bitte versuche es erneut.
Bitte bestätige Deine E-Mail-Adresse, um Updates zu erhalten.
Objektbeschreibung
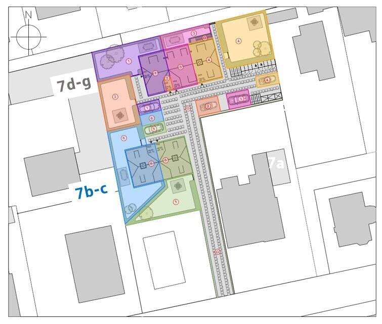
SYLT im Herzen von Alt-Westerland Neubauprojekt Feldstraße 7b bis 7gGebäudeensemble bestehend aus einem Mehrfamilienhaus mit 1 Dauerwohnung und 3 Ferienwohnungen sowie einem Doppelhaus mit 1 Dauerwohnung und 1 Ferienwohnung880/12886 Alt WesterlandIn hervorragender Lage! Ruhig und dennoch zentrums- und strandnah! Ihr Syltquartier "Bloomhof"! Der Ortsteil Alt-Westerland bietet sehr gute Vermietungsmöglichkeiten, ist aber dennoch auch bei Syltern als zentrale und ruhige Wohnlage beliebt.Die zwei Häuser mit insgesamt 2 Dauerwohnungen und 4 Ferienwohnungen bieten Ihnen exklusive Lebensqualität im Stil alter Sylter Häuser.Die Aufteilung der Räume ist durchdacht und zeitgemäß. Die Gesamtflächen der Wohneinheiten liegen bei jeweils ca. 68 m² bis ca. 138 m². Die angegebenen realen Nutzflächen sind entlang der Fußleisten eines jeden Raumes gemessen gem. sog. "Sylter Maß". Sie sind nicht wie bei der Berechnung nach DIN / WoFIV durch Dachschrägen und dergleichen gemindert, sondern erfassen die gesamte, tatsächlich vorhandene Fußbodenfläche. Lichtschächte wurden nicht berechnet. Freisitze sind zu 100% angerechnet. Die Maße zur Berechnung der Flächen sind den Bauvorlagezeichnungen im Maßstab 1:100 entnommen.Die Fassade verblendet mit antiken Klinkersteinen, das Dach gedeckt mit Dachstein Ziegeln, die Eingangstüren nach "nordischer Art" gestaltet:Und doch wird eine Immobilie nach dem neuesten Stand der Zeit entstehen; gedämmt nach aktuellen Standards, mit Wärmepumpen ausgestattet und Vorrüstungen für Wallboxen. Für die Innenausstattung werden ausschließlich hochwertige und authentische Materialien wie Holzdielen und Naturstein verwendet. Die Außenanlage fügt sich mit inseltypischer Bepflanzung und Friesenwällen in die Umgebung ein. Jede Wohneinheit verfügt zudem über einen eigenen Platz im Grünen mit Freisitz.Gebaut wird ausschließlich nach den neuesten Sicherheits- und Qualitätsstandards.Für jede Wohneinheit ist ein offener PKW-Stellplatz vorgesehen, dieser ist nicht im Kaufpreis inbegriffen. Kaufpreis pro PKW-Stellplatz: 36.000,-- €. Der Erwerb des PKW-Stellplatzes ist obligatorisch.Die Hausteile 7b, 7c sowie 7g erhalten einen Gaskamin und einen Schornstein.Hausteil 7g erhält zusätzlich eine Sauna.Baubeginn im Sommer 2024 erfolgt, Fertigstellung: ca. 24 Monate nach Baubeginn,Heizung: Luft-Wärmepumpen mit Wärmetauschern im AußenbereichEnergieausweis nicht erforderlich; Grund für AusnahmeNeu zu errichtende Gebäude gem. § 80 (1) GEGDauerwohnung 6:Ca. 138 m² Gesamtfläche inkl. Freisitz, 5 Zimmer, Vorrüstungen für Wallboxen, 1 offener PKW-Stellplatz je Wohneinheit, welcher zusätzlich zu erwerben ist,Kaufpreis:2.287.000,-- €zzgl. einem offenen PKW-Stellplatz (Kaufpreis 36.000,-- €); inklusive Einbauküche
So funktioniert es
- Alle neuen Anzeigen matchen wir kostenlos mit Deinen Suchparametern.
- Passende Angebote senden wir Dir in einer E-Mail pro Tag.
- Du kannst auch verschiedene Suchen anlegen und Dich jederzeit abmelden. Mehr dazu
Wir haben soeben eine E-Mail mit Deinem Suchauftrag an Dich geschickt. – Klicke in dieser Mail auf den Bestätigungslink und schon geht's los. Prüfe ggf. auch Deinen Spamordner.
Es gab ein Problem beim Absenden Deiner E-Mail-Adresse. Bitte versuche es erneut.
WARNUNG: Bitte bestätige Deine E-Mail-Adresse, um regelmäßige Updates zu erhalten.