Objektdaten
Objektbeschreibung
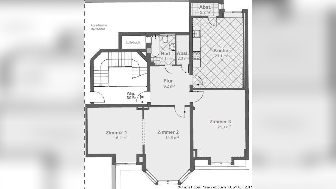
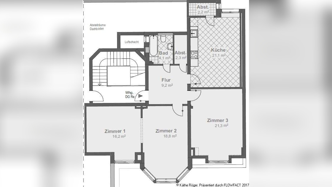
Die Wohnung liegt im V. Obergeschoss eines im Jahre 1911 errichteten Wohnhauses.Die nach Osten und Westen ausgerichtete Wohnung besticht durch Ihre Lage im obersten Geschoss durch Ihre Helligkeit und den Weitblick, den sie gewährt. Es erwarten Sie zwei ineinander übergehende und ein weiteres separates Zimmer. Die Fußböden sind mit Parkett-, bzw. Dielenboden belegt. Die Küche bietet Ihnen Platz für den Einbau einer Küchenzeile und zum Aufbau eines Esstisches. Von der Küche abgehend gelangen Sie zu einer Speise-kammer. Das Vollbad wird über ein kleines Fenster natürlich belüftet.Zur Wohnung gehört ein Abstellraum auf dem Dachboden.Ähnliche Angebote
So funktioniert es
- Alle neuen Anzeigen matchen wir kostenlos mit Deinen Suchparametern.
- Passende Angebote senden wir Dir in einer E-Mail pro Tag.
- Du kannst auch verschiedene Suchen anlegen und Dich jederzeit abmelden. Mehr dazu




