Objektdaten
Objektbeschreibung
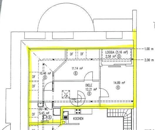
Diese schöne 5 Raumwohnung steht ab dem 01.12.2025 zur Verfügung. Vor Bezug wird die Wohnung noch renoviert.Überzeugen Sie sich gerne selbst von Ihrer neuen Wohnung.Ähnliche Angebote
So funktioniert es
- Alle neuen Anzeigen matchen wir kostenlos mit Deinen Suchparametern.
- Passende Angebote senden wir Dir in einer E-Mail pro Tag.
- Du kannst auch verschiedene Suchen anlegen und Dich jederzeit abmelden. Mehr dazu





