Moderne 3-Zimmer-Maisonette-Wohnung mit Terrasse u. Garten!
Warmmiete 2.354 €
Zimmer 3
Größe 116 m²
22549 Hamburg
Objektdaten
Veröffentlicht am: 3. Mai 2025
Nebenkosten: 150 €
Kaltmiete 2.204 €
Baujahr: 2023
Energieausweis: Liegt bei der Besichtigung vor
Danke! Bitte bestätige Deine E-Mail-Adresse – wir haben Dir soeben eine Mail geschickt.
Es gab ein Problem beim Absenden. Bitte versuche es erneut.
Bitte bestätige Deine E-Mail-Adresse, um Updates zu erhalten.
Objektbeschreibung
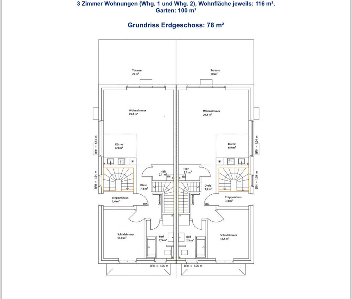
Diese 3-Zimmer-Maisonette-Wohnung mit einer Gesamtwohnfläche von ca. 116 m², die im Jahr 2023 in massiver Bauweise errichtet wurde, bietet modernes Design, hochwertige Ausstattung und ein zukunftsweisendes Energiekonzept. Aufgeteilt auf das Erdgeschoss und das Untergeschoss (Souterrain), überzeugt die Wohnung durch ihre lichtdurchflutete Raumgestaltung und eine offene, großzügige Atmosphäre.Im Erdgeschoss befinden sich ein Schlafzimmer, der Hauswirtschaftsraum (HWR), ein offener Wohn- und Essbereich mit einer Einbauküche, die mit hochwertigen Elektrogeräten ausgestattet ist. Von hier aus gelangen Sie auf die westlich ausgerichtete Terrasse, die nicht nur viel Tageslicht in den Innenraum bringt, sondern auch einen herrlichen Blick ins Grüne bietet. Das Badezimmer im Erdgeschoss ist ein hochwertig ausgestattetes Tageslichtbad mit separater Dusche und Badewanne, das den Komfort eines Vollbads bietet.Im Untergeschoss (Souterrain) befindet sich ein weiteres, großzügiges Zimmer, das hervorragend als zusätzliches Schlafzimmer genutzt werden kann. Zusätzlich gibt es im Untergeschoss einen separaten Hobbyraum, der vielfältige Nutzungsmöglichkeiten bietet - sei es als Werkstatt, Fitnessraum oder zusätzlicher Stauraum.Die Ausstattung der Wohnung lässt keine Wünsche offen: Hochwertige Design-Vinyl- und Fliesenböden schaffen ein modernes Ambiente, während elektrische Außenrollläden und isolierverglaste Fenster in elegantem Anthrazit sowohl Komfort als auch Energieeffizienz fördern. Die Luft-Wärmepumpe, die als unabhängiges Heizsystem dient, wird durch eine Fußbodenheizung und digital steuerbare Thermostate ergänzt und sorgt für ein angenehmes Raumklima bei optimaler Energieeffizienz.Zur Wohnung gehören zwei separate Außenstellplätze sowie gemeinschaftlich nutzbare Räume für Fahrräder und Kinderwagen. Die moderne Fassade aus dunkelbraunem Klinker rundet das stimmige Erscheinungsbild des Neubaus ab.In einer ruhigen und familienfreundlichen Lage gelegen, bietet diese Maisonette-Wohnung eine perfekte Kombination aus urbanem Komfort, naturnaher Umgebung und einer hervorragenden Infrastruktur.
Alle neuen Anzeigen matchen wir kostenlos mit Deinen Suchparametern.
Passende Angebote senden wir Dir in einer E-Mail pro Tag.
Du kannst auch verschiedene Suchen anlegen und Dich jederzeit abmelden. Mehr dazu
Wir haben soeben eine E-Mail mit Deinem Suchauftrag an Dich geschickt. – Klicke in dieser Mail auf den Bestätigungslink und schon geht's los. Prüfe ggf. auch Deinen Spamordner.
Es gab ein Problem beim Absenden Deiner E-Mail-Adresse. Bitte versuche es erneut.
WARNUNG: Bitte bestätige Deine E-Mail-Adresse, um regelmäßige Updates zu erhalten.
Sie sehen gerade einen Platzhalterinhalt von Turnstile. Um auf den eigentlichen Inhalt zuzugreifen, klicken Sie auf die Schaltfläche unten. Bitte beachten Sie, dass dabei Daten an Drittanbieter weitergegeben werden.
Sie sehen gerade einen Platzhalterinhalt von Vimeo. Um auf den eigentlichen Inhalt zuzugreifen, klicken Sie auf die Schaltfläche unten. Bitte beachten Sie, dass dabei Daten an Drittanbieter weitergegeben werden.
Sie sehen gerade einen Platzhalterinhalt von YouTube. Um auf den eigentlichen Inhalt zuzugreifen, klicken Sie auf die Schaltfläche unten. Bitte beachten Sie, dass dabei Daten an Drittanbieter weitergegeben werden.
Sie sehen gerade einen Platzhalterinhalt von Turnstile. Um auf den eigentlichen Inhalt zuzugreifen, klicken Sie auf die Schaltfläche unten. Bitte beachten Sie, dass dabei Daten an Drittanbieter weitergegeben werden.