Kaufpreis 390.000 €
Zimmer 5
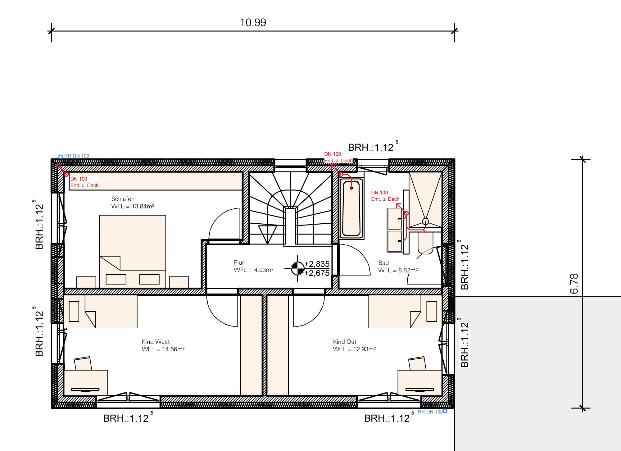
Größe 109 m²
90542 Eckental
Objektdaten
Veröffentlicht am: 8. Mai 2025
Baujahr: 2024
Energieausweis: Liegt bei der Besichtigung vor
Danke! Bitte bestätige Deine E-Mail-Adresse – wir haben Dir soeben eine Mail geschickt.
Es gab ein Problem beim Absenden. Bitte versuche es erneut.
Bitte bestätige Deine E-Mail-Adresse, um Updates zu erhalten.
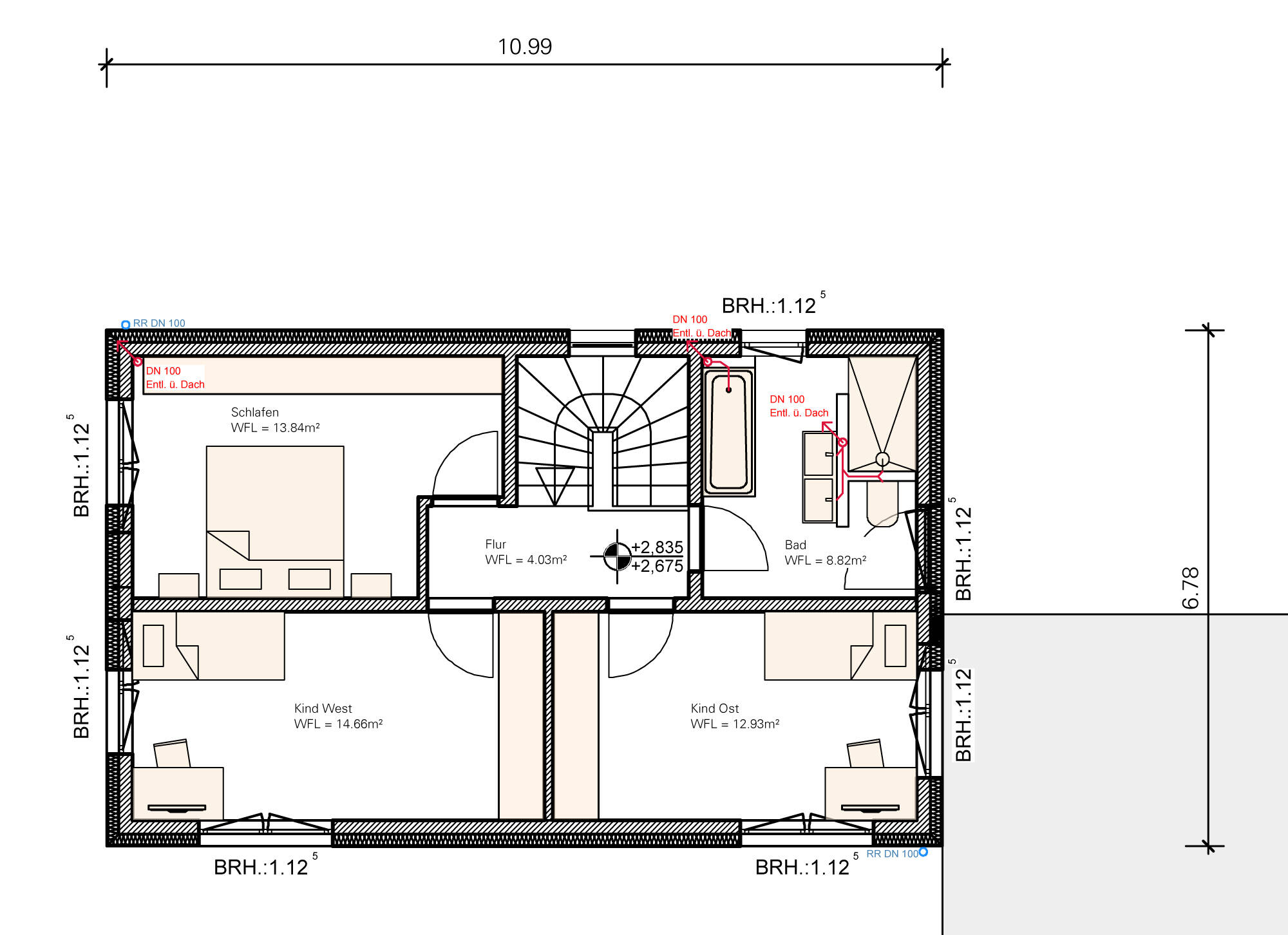
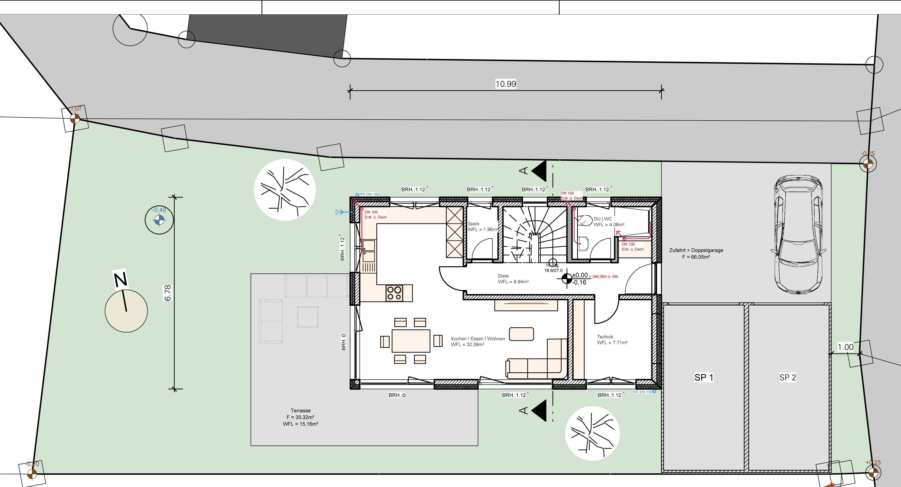
Objektbeschreibung
.Auf zwei Wohnetagen finden Sie genügend Platz und Freiraum, was ein harmonisches und nachhaltiges Zuhause für alle Wohn- und Lebensbedürfnisse gewährleistet. UNSER STANDARD:An kaum einem anderen Ort lässt es sich so gut entspannen wie in den eigenen vier Wänden. Daher ist es unser Anspruch ihre Traumimmobilie so zu realisieren, als wäre sie für uns selbst gedacht. Dank moderner und hochwertiger Materialkombinationen entsteht in unserem Neubautraumhaus einnatürliches und behagliches Wohngefühl. Bei der Auswahl der Bodenbeläge haben Sie die Qual der Wahl, um ihrem Zuhause ein individuelles Flair zu verleihen. Dabei steht ein großes Angebot aus exklusiven Fliesen-, Echtholzparkett- oder Vinylböden zur Verfügung.An kälteren Tagen generiert die energieeffiziente Wärmepumpe über die Fußbodenheizung angenehme Wärme in den Zimmern, die per Raumthermostat separat temperiert werden können.ZUKUNFTSSICHER.NACHHALTIG.INNOVATIV!Die Investition in ein umweltfreundliches und energiesparendes Gebäude hält nicht nur finanzielle Vorteile für Sie bereit. Durch den Einsatz einer modernen und innovativen Anlagentechnik in Form einer Luft/Wasser-Wärmepumpe trägt Ihr neues Zuhause in Eckenhaid nicht nur jetzt, sondern auch auf lange Sicht zum Klimaschutz bei. Die Wärmepumpe nutzt die Kraft und Energie der Umgebungsluft, sprich der Natur, um Wärme und Warmwasser für Ihr Objekt zu erzeugen und erzielt somit einen großen Pluspunkt in Sachen Ökobilanz.
So funktioniert es
- Alle neuen Anzeigen matchen wir kostenlos mit Deinen Suchparametern.
- Passende Angebote senden wir Dir in einer E-Mail pro Tag.
- Du kannst auch verschiedene Suchen anlegen und Dich jederzeit abmelden. Mehr dazu
Wir haben soeben eine E-Mail mit Deinem Suchauftrag an Dich geschickt. – Klicke in dieser Mail auf den Bestätigungslink und schon geht's los. Prüfe ggf. auch Deinen Spamordner.
Es gab ein Problem beim Absenden Deiner E-Mail-Adresse. Bitte versuche es erneut.
WARNUNG: Bitte bestätige Deine E-Mail-Adresse, um regelmäßige Updates zu erhalten.