Objektdaten
Objektbeschreibung
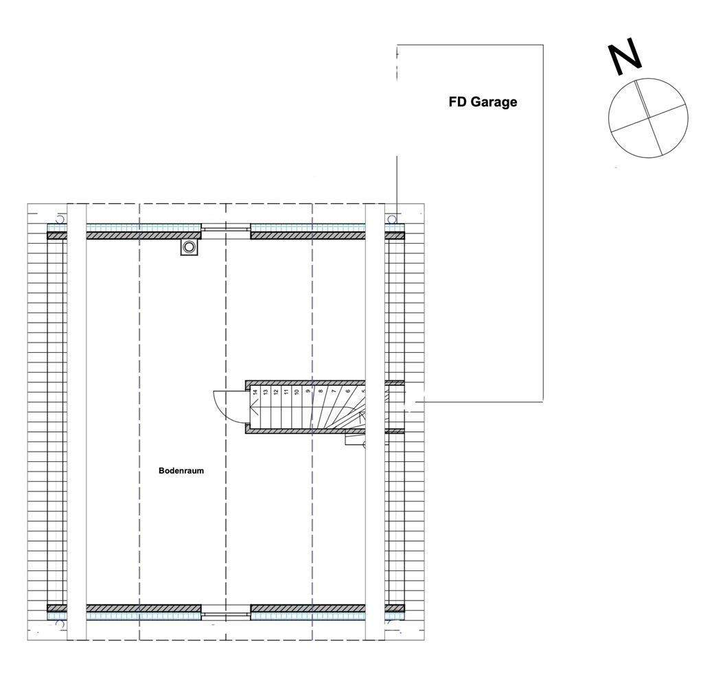
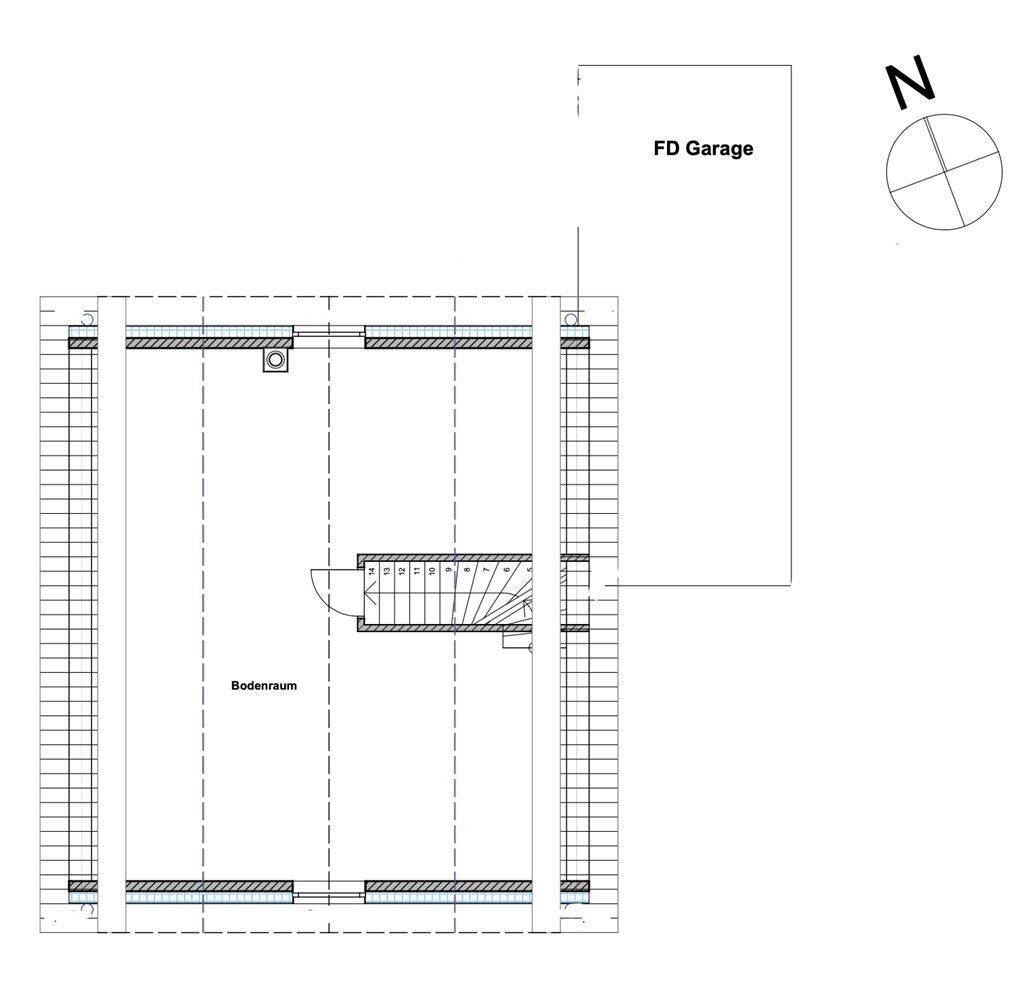
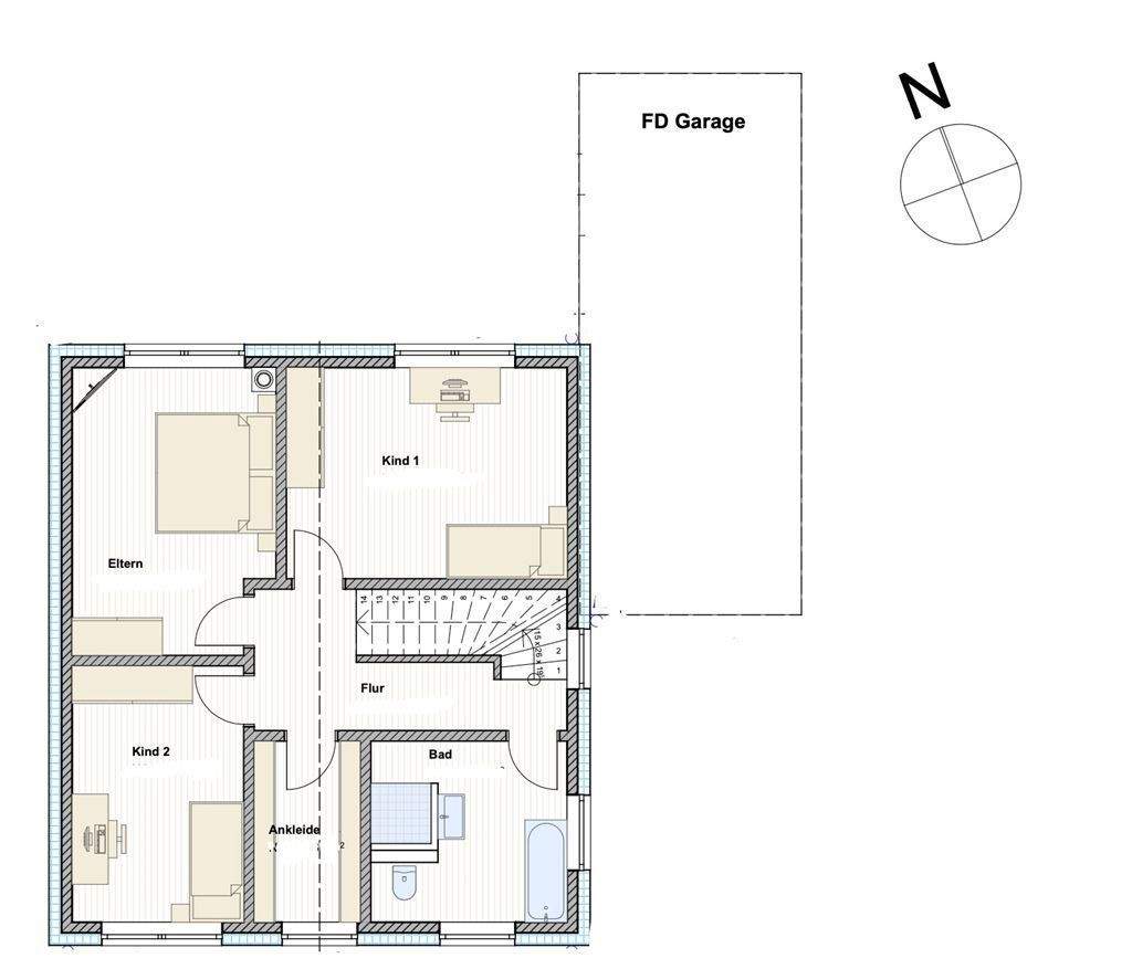
Wir bauen Ihr individuell geplantes Architektenhaus, Stein auf Stein - schlüsselfertig -. Auf Wunsch können Sie gerne Eigenleistungen einbringen. Beispielhaft angeboten wird hier ein Haus mit ca. 129 qm Wohnfläche im Neubaugebiet Soester Norden. Gern erstellen wir Ihr Wunschhaus auch an einem anderen Ort, genauso mit der Unterstützung unserer Finanzierungspartner.Ähnliche Angebote
So funktioniert es
- Alle neuen Anzeigen matchen wir kostenlos mit Deinen Suchparametern.
- Passende Angebote senden wir Dir in einer E-Mail pro Tag.
- Du kannst auch verschiedene Suchen anlegen und Dich jederzeit abmelden. Mehr dazu




