Kaufpreis 190.000 €
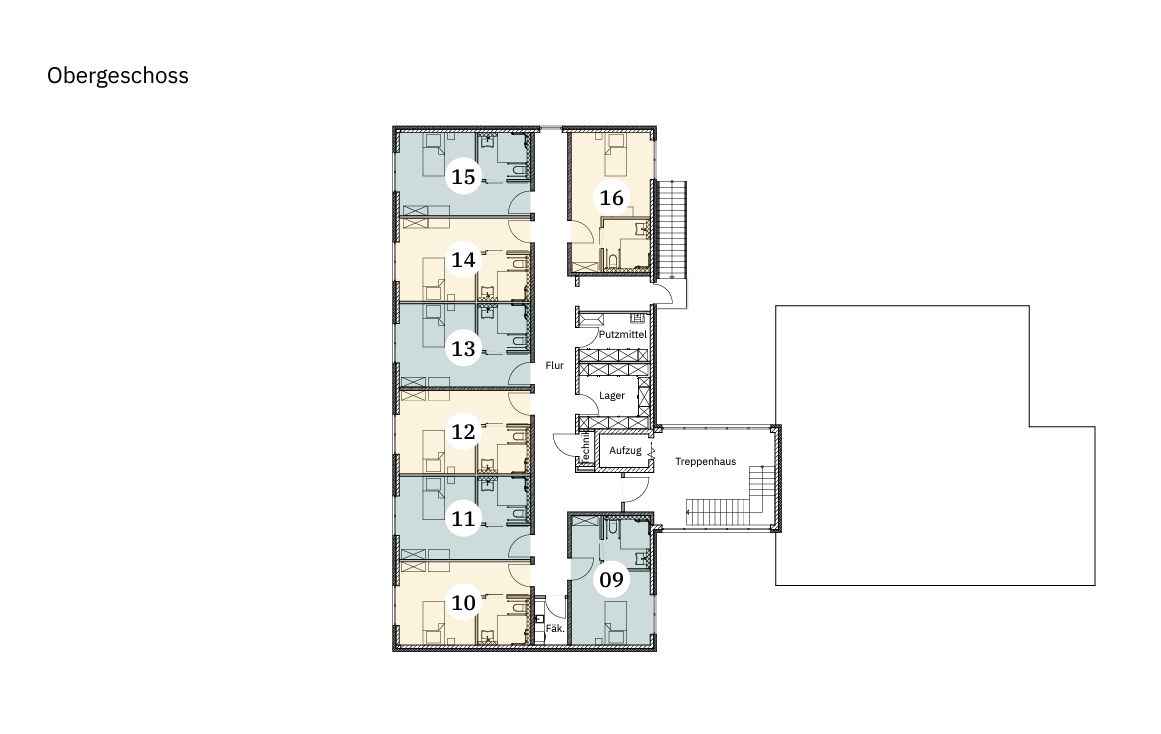
Zimmer 1
Größe 50 m²
76287 Rheinstetten
Objektdaten
Veröffentlicht am: 9. Mai 2025
Energieausweis: Liegt bei der Besichtigung vor
Danke! Bitte bestätige Deine E-Mail-Adresse – wir haben Dir soeben eine Mail geschickt.
Es gab ein Problem beim Absenden. Bitte versuche es erneut.
Bitte bestätige Deine E-Mail-Adresse, um Updates zu erhalten.
Objektbeschreibung
Wir sind Deutschlands führender Berater und Vermittler im Bereich Pflegeimmobilien als Kapitalanlage und bieten privaten Investoren somit die sicherste und passivste Anlageform.Ihre Vorteile auf einen Blick:- Die Mieten sind nach SGB XI staatlich abgesichert- Die Mietverträge sind indexiert - Auch bei Leerstand erhalten Sie Ihre Miete- Ihre Anlage ist unabhängig von Finanzmärktenund Börsen- Durch langjährige Mietverträge bis zu 30 Jahrensind Ihre Einnahmen gesichert- Ihre Mietrendite liegt anfänglich bei ca. 3,5-4 % p.a.(bei mtl. Mietauszahlung)- Durch Mieten sind Sie vor der Inflation geschützt (Indexierte Mietverträge)- Investition durch eigenes Grundbuch abgesichert –keine Fondsbeteilung- Ihr Kapital bleibt erhalten (plus Vermögenszuwachs)- Für Sie fallen keine Nebenkosten an, weil derBetreiber für Strom, Gas etc. verantwortlich ist- Instandhaltungsmaßnahmen werden imWesentlichen vom Betreiber durchgeführt- Der Pflegemarkt boomt. Es gibt zu wenig Plätze undPflegeimmobilien sind konjunkturunabhängig- Sie können Ihre Pflegeimmobilie zu 100 % finanzieren- Sie haben Steuervorteile- Sie können Ihre Pflegeimmobile jederzeit vererben,verschenken oder verkaufen- Mit einer Pflegeimmobilie haben Sie Sicherheit undRendite in einem Produkt- Sie profitieren von kleinen Kaufpreisen zwischen180.000 € und 250.000 €- Sie kaufen Ihre Pflegeimmobilie provisionsfrei- Sie haben ein Vorbelegungsrecht bei PflegebedürftigkeitKlassische Anlageprodukte haben ausgedient!Inflationsraten bis 10 %: Wer heute sein Geld in Versicherungsprodukten anlegtoder auf dem Konto „parkt“, verliert bares Geld. Dazu gesellen sichübergeordnete Phänomene wie Corona, die Wirtschafts-, Euro- oderBankenkrise.Immobilen hingegen trotzen seit jeher den Krisen des Finanzmarktesund gewinnen über die Zeit sogar noch an Wert. Sie gelten damit alssolide und inflationsgeschützte Wertanlage. Pflegeimmobilien punktenmit einem weiteren gewichtigen Vorteil: Sie sind gleichzeitig sicherund renditestark.In Zeiten, in denen auf dem Finanzmarkt viele Risiken lauern, brauchenSie einen Partner, der die Expertise mitbringt, der den Markt kennt undder Sie unabhängig zum richtigen Produkt für Ihre Vorsorge berät. Wenn Sie also ein Sorglos-Investment mit rentablen Renditen undmaximaler Sicherheit suchen, haben wir von der Rendite Residenzdie passende Lösung für Sie.Lassen Sie uns über Ihre Kapitalanlage sprechen.Wir freuen uns, Sie bald persönlich kennenzulernen.
So funktioniert es
- Alle neuen Anzeigen matchen wir kostenlos mit Deinen Suchparametern.
- Passende Angebote senden wir Dir in einer E-Mail pro Tag.
- Du kannst auch verschiedene Suchen anlegen und Dich jederzeit abmelden. Mehr dazu
Wir haben soeben eine E-Mail mit Deinem Suchauftrag an Dich geschickt. – Klicke in dieser Mail auf den Bestätigungslink und schon geht's los. Prüfe ggf. auch Deinen Spamordner.
Es gab ein Problem beim Absenden Deiner E-Mail-Adresse. Bitte versuche es erneut.
WARNUNG: Bitte bestätige Deine E-Mail-Adresse, um regelmäßige Updates zu erhalten.