Kaufpreis 433.900 €
Zimmer 3
Größe 78 m²
87668 Rieden
Objektdaten
Veröffentlicht am: 16. Mai 2025
Energieausweis: Liegt bei der Besichtigung vor
Danke! Bitte bestätige Deine E-Mail-Adresse – wir haben Dir soeben eine Mail geschickt.
Es gab ein Problem beim Absenden. Bitte versuche es erneut.
Bitte bestätige Deine E-Mail-Adresse, um Updates zu erhalten.
Objektbeschreibung
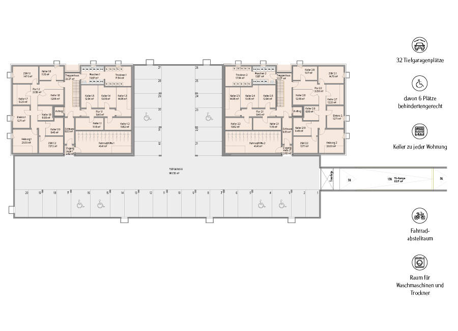
Inmitten des malerischen Allgäus, im charmanten Rieden-Zellerberg, verbindet diese Wohnanlage die Vorzüge des ländlichen Lebens mit moderner Wohnqualität. Umgeben von grünen Wiesen und einer idyllischen Umgebung, schaffen die großzügigen Terrassen und Balkone ein Zuhause, das zum Aufatmen und Genießen einlädt. Hier finden Sie nicht nur eine Wohnung – hier finden Sie Ihr persönliches Stück Lebensqualität!Die Wohnung W 2.0.3 ist eine 3-Zimmer-Wohnung mit ca. 78,30 m² Wohnfläche im Erdgeschoss. Zur Wohnung gehört eine Terrasse mit ca. 6,16 m² (Nutzfläche) mit vorgelagertem Gartenanteil von ca.157 m² und ein Tiefgaragen-Stellplatz. Die Terrasse ist nach Süd-Ost ausgerichtet. Die Ausführung ist barrierefrei!Tiefgaragenstellplatz Nr. 30 / € 29.000,- (Maße: 5 x 2,5 m)
So funktioniert es
- Alle neuen Anzeigen matchen wir kostenlos mit Deinen Suchparametern.
- Passende Angebote senden wir Dir in einer E-Mail pro Tag.
- Du kannst auch verschiedene Suchen anlegen und Dich jederzeit abmelden. Mehr dazu
Wir haben soeben eine E-Mail mit Deinem Suchauftrag an Dich geschickt. – Klicke in dieser Mail auf den Bestätigungslink und schon geht's los. Prüfe ggf. auch Deinen Spamordner.
Es gab ein Problem beim Absenden Deiner E-Mail-Adresse. Bitte versuche es erneut.
WARNUNG: Bitte bestätige Deine E-Mail-Adresse, um regelmäßige Updates zu erhalten.