Kaufpreis 335.690 €
Zimmer 3
Größe 90 m²
48739 Legden
Objektdaten
Veröffentlicht am: 17. Mai 2025
Frei ab: 1. Juli 2027
Energieausweis: Liegt bei der Besichtigung vor
Danke! Bitte bestätige Deine E-Mail-Adresse – wir haben Dir soeben eine Mail geschickt.
Es gab ein Problem beim Absenden. Bitte versuche es erneut.
Bitte bestätige Deine E-Mail-Adresse, um Updates zu erhalten.
Objektbeschreibung
Kurzbeschreibung
Wohneinheit 1.2 im Obergeschoss
Objekt
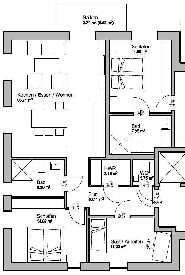
Wir bieten Ihnen eine wunderschöne Etagenwohnung in Legden an, die ideal für Senioren geeignet ist. Die Wohnung befindet sich im Obergeschoss eines Mehrfamilienhauses welches in massiver Bauweise erstellt wird. Sie verfügt über eine Wohnfläche von 90,6 Quadratmetern, die sich auf drei Zimmer, darunter zwei Schlafzimmer, verteilt. Ein Badezimmer und ein separates Gäste-WC sorgt für ausreichend Komfort. Für kurze Wege steht auch der eigene Hauswirtschaftraum in der Wohnung. Eine moderne Ausstattung mit Wärmepumpe, Fußbodenheizung, 3-fachverglasung, großformatigen Fliesen und hochwertigem Vinylboden in den Schlafzimmer und großem Balkon ist hier selbstverständlich. Eine PV-Anlage für das gesamt Haus ist ebenfalls vorhanden.Ein Highlight der Wohnung ist der Personenaufzug, der es Ihnen ermöglicht, bequem und ohne Anstrengung in die Wohnung zu gelangen.Zusätzlichen Stauraum finden Sie im eigenen Kellerraum. Ein Stellplatz für Ihr Auto ist ebenfalls vorhanden, so dass Sie immer einen sicheren Platz haben.Die Wohnung ist nicht nur gemütlich, sondern auch energiesparend. Der Energiestandard KfW 40 garantiert, dass die Wohnung umweltfreundlich und kosteneffizient ist. Die Wohnung steht ab ca. September 2026 zur Verfügung, so dass Sie genügend Zeit haben, sich auf Ihren Umzug vorzubereiten. Weitere Informationen entnehmen Sie der ausführlichen Bau- und Leistungsbeschreibung, die wir Ihnen auf Wunsch gerne zur Verfügung stellen.
So funktioniert es
- Alle neuen Anzeigen matchen wir kostenlos mit Deinen Suchparametern.
- Passende Angebote senden wir Dir in einer E-Mail pro Tag.
- Du kannst auch verschiedene Suchen anlegen und Dich jederzeit abmelden. Mehr dazu
Wir haben soeben eine E-Mail mit Deinem Suchauftrag an Dich geschickt. – Klicke in dieser Mail auf den Bestätigungslink und schon geht's los. Prüfe ggf. auch Deinen Spamordner.
Es gab ein Problem beim Absenden Deiner E-Mail-Adresse. Bitte versuche es erneut.
WARNUNG: Bitte bestätige Deine E-Mail-Adresse, um regelmäßige Updates zu erhalten.