Objektdaten
Objektbeschreibung
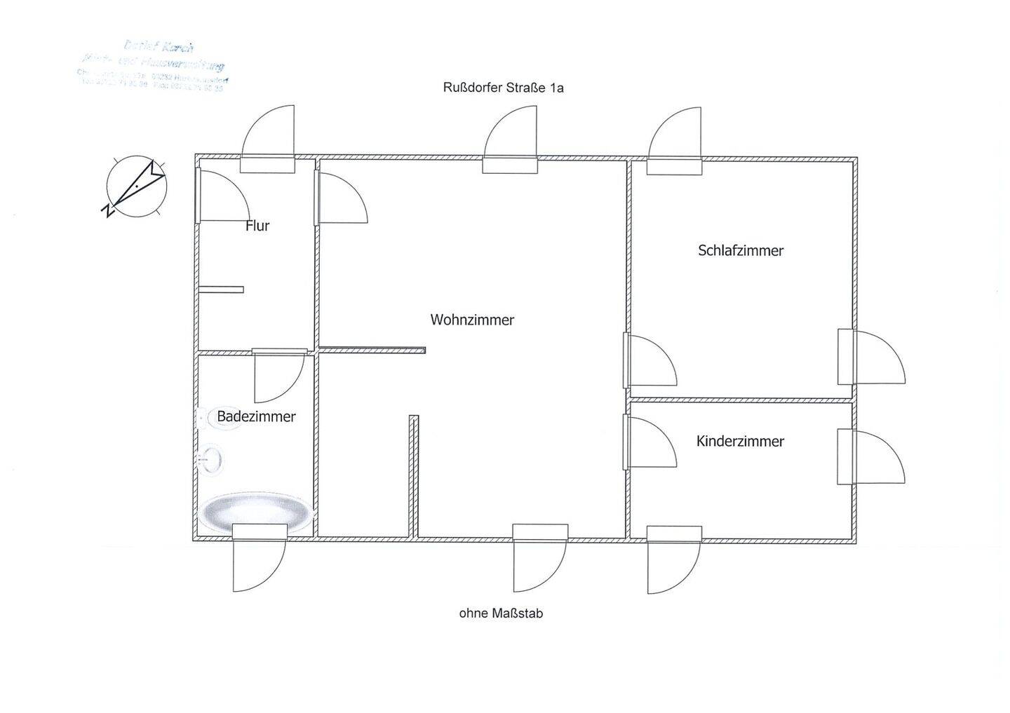
Objektbeschreibung Die Wohnung befindet sich in einem Objekt in Limbach-Oberfrohna, bestehend aus 3 Gebäuden mit Parkplätzen und Grünflächen.Hausmeister vor Ort, Hausverwaltung in der Nähe. Raumaufteilung Das Bad und der Fußbodenbelag wurden ebenso wie der Fliesenspiegel in der offenen Küche komplett erneuert, auch wurden neue Türen eingebaut.Die offene Küche wird durch einen Tresen vom Wohnzimmer getrennt.Im Badezimmer befindet sich ein Waschmaschinenanschluss.Die Wohnung ist hell und freundlich, da alle Räume mit Fenstern ausgestattet sind. Die Anmietung eines Stellplatzes ist nach Absprache möglich.So funktioniert es
- Alle neuen Anzeigen matchen wir kostenlos mit Deinen Suchparametern.
- Passende Angebote senden wir Dir in einer E-Mail pro Tag.
- Du kannst auch verschiedene Suchen anlegen und Dich jederzeit abmelden. Mehr dazu





