Objektdaten
Objektbeschreibung
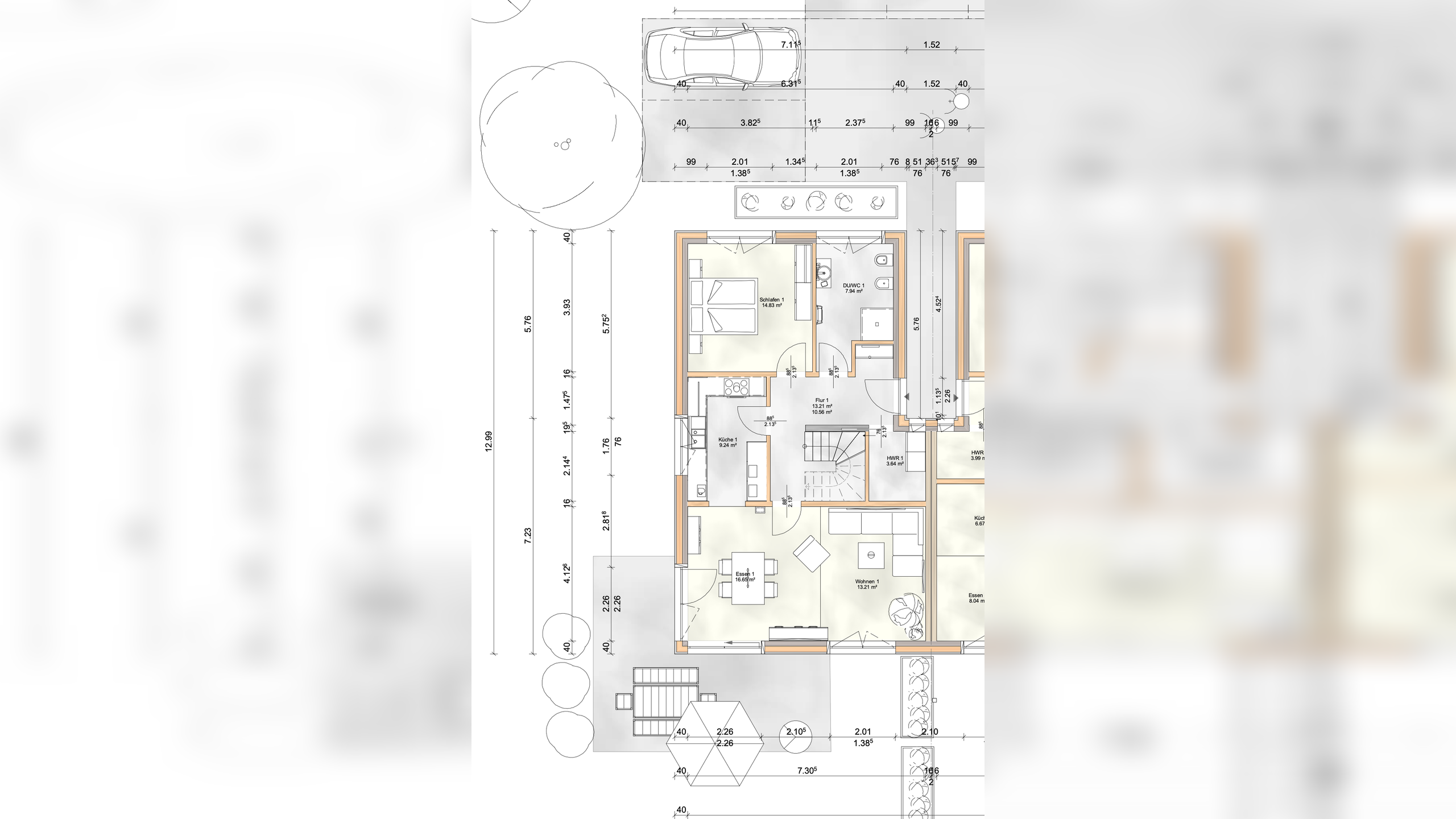
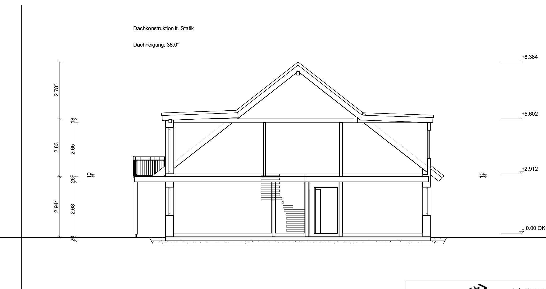
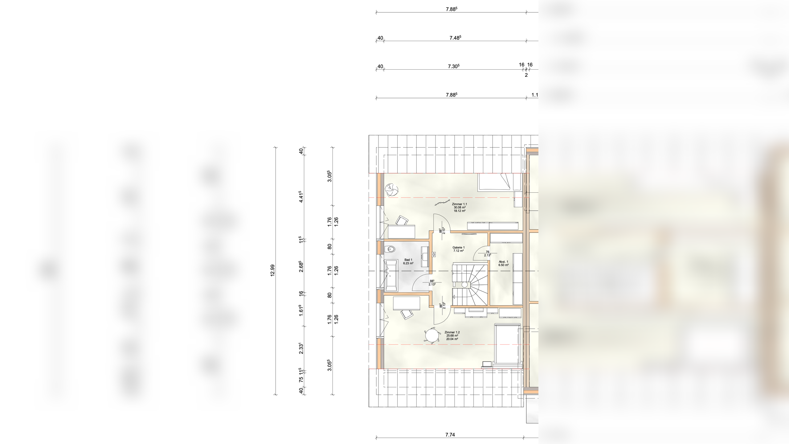
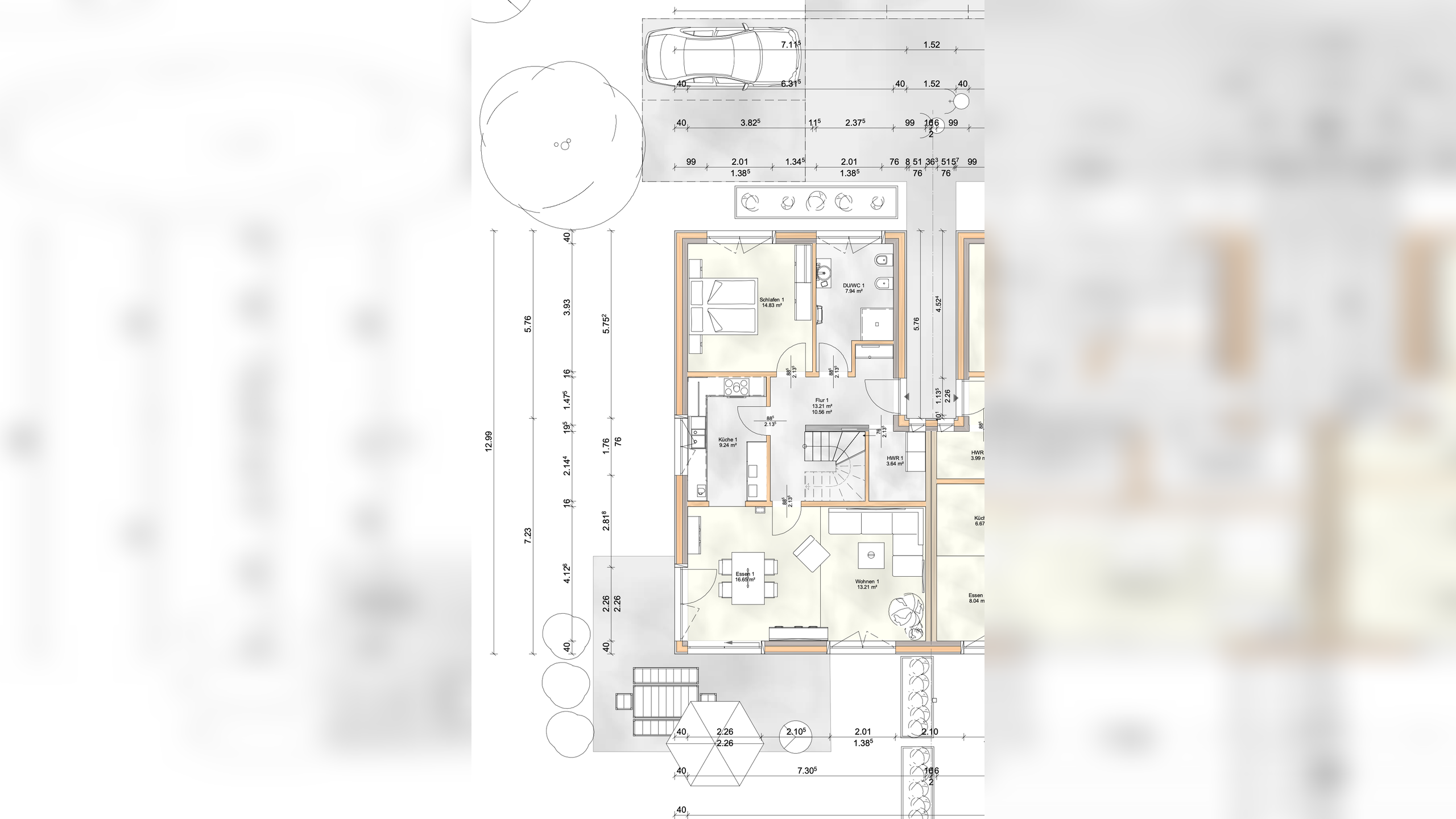
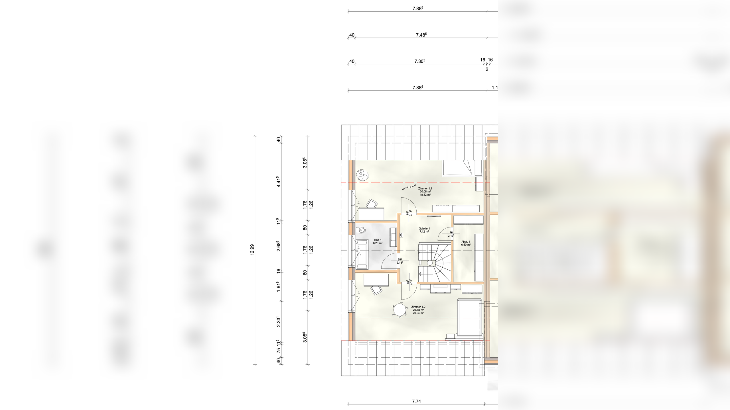
Sichern Sie sich dieses exklusive Wohnhaus inklusive Gartenanteil in Top Lage der Gemeinde Barchfeld Zum Morgentor;. Das Objekt ist im Erdgeschoss barrierefrei -u. entsteht im Rahmen Neubau eines Wohnensemble aus Gesamt 7 Wohneinheiten, davon 3 als barrierefreie Wohnungen, 2 Wohnungen im 1. OG sowie 2 Stadtvillen in Ausführung als Reihenendhaus. Modernste Technik inklusive PV Anlage u. Wärmepumpe sorgt für nachhaltig niedrige Nebenkosten. Aufgrund des Wärmekonzept können die Wohnräume indirekt gekühlt werden. Eine 40qm (!) große Terrasse schafft Lebensqualität u. lädt zum Verweilen ein. Für den Einzug sind lediglich Malersarbeiten erforderlich.So funktioniert es
- Alle neuen Anzeigen matchen wir kostenlos mit Deinen Suchparametern.
- Passende Angebote senden wir Dir in einer E-Mail pro Tag.
- Du kannst auch verschiedene Suchen anlegen und Dich jederzeit abmelden. Mehr dazu




