Kaufpreis 2.099.000 €
Zimmer 5
Größe 175 m²
82166 Gräfelfing
Objektdaten
Veröffentlicht am: 15. Juni 2025
Frei ab: 15. November 2026
Energieausweis: Liegt bei der Besichtigung vor
Danke! Bitte bestätige Deine E-Mail-Adresse – wir haben Dir soeben eine Mail geschickt.
Es gab ein Problem beim Absenden. Bitte versuche es erneut.
Bitte bestätige Deine E-Mail-Adresse, um Updates zu erhalten.
Objektbeschreibung
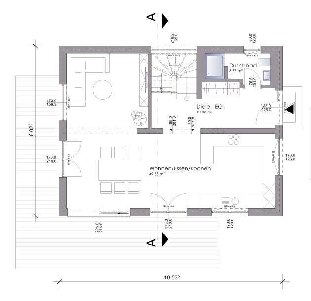
Moderne Traumimmobilie im Grünen – Stilvolles Einfamilienhaus mit großzügigem RaumangebotDieses moderne Einfamilienhaus besticht durch seine klare Architektur, lichtdurchflutete Räume und eine ruhige Lage im Grünen. Mit einer eleganten weißen Fassade und einem dunklen Satteldach fügt sich das Haus harmonisch in die idyllische Landschaft ein.Im Inneren erwartet Sie ein durchdachtes Raumkonzept: Wohn-Ess-Bereich: Der offen gestaltete Wohn- und Essbereich im Erdgeschoss bietet mit ca. 50 m² viel Platz für die ganze Familie – ideal für gesellige Abende und entspannte Stunden. Obergeschoss: Hier finden Sie ein luxuriöses Wellness-Badezimmer, zwei helle Kinderzimmer sowie ein großzügiges Elternschlafzimmer mit Blick ins Grüne. Dachgeschoss: Perfekt für Homeoffice oder Gäste – ein ca. 17 m² großes Büro, eine begehbare Ankleide sowie ein zusätzliches Duschbad bieten zusätzlichen Komfort und Flexibilität.Die großzügigen Fensterfronten lassen viel Tageslicht ins Haus und eröffnen einen traumhaften Ausblick auf die umliegende Natur. Das Haus eignet sich ideal für Familien, die modernes Wohnen in ruhiger Lage suchen – mit viel Platz zum Leben, Arbeiten und Entspannen.Zusätzliche Highlights dieser Immobilie: Holzterrasse mit großen, schwellenlosen Schiebetüren für barrierefreien Zugang nach draußen Wohngesunde Bauweise – auch für Allergiker geeignet Erhöhter Einbruchschutz für ein sicheres Zuhause Elektrische Verschattungen mit integriertem Insektenschutz Photovoltaikanlage mit 10 kW Leistung, 12 kW Speicher und Notstromfunktion KfW-förderfähig (KFN mit QNG) – inklusive sämtlicher Baunebenkosten Modernes Smart-Home-System mit umfassender EDV-Netzwerkstruktur Ausgezeichneter sommerlicher Hitzeschutz für angenehme Temperaturen auch an heißen Tagen Ein zentraler Ansprechpartner – alles aus einer HandDieses Haus verbindet stilvolles Design mit modernster Technik und nachhaltiger Ausstattung – ideal für alle, die Wert auf Komfort, Energieeffizienz und Lebensqualität legen.
So funktioniert es
- Alle neuen Anzeigen matchen wir kostenlos mit Deinen Suchparametern.
- Passende Angebote senden wir Dir in einer E-Mail pro Tag.
- Du kannst auch verschiedene Suchen anlegen und Dich jederzeit abmelden. Mehr dazu
Wir haben soeben eine E-Mail mit Deinem Suchauftrag an Dich geschickt. – Klicke in dieser Mail auf den Bestätigungslink und schon geht's los. Prüfe ggf. auch Deinen Spamordner.
Es gab ein Problem beim Absenden Deiner E-Mail-Adresse. Bitte versuche es erneut.
WARNUNG: Bitte bestätige Deine E-Mail-Adresse, um regelmäßige Updates zu erhalten.