Objektdaten
Objektbeschreibung
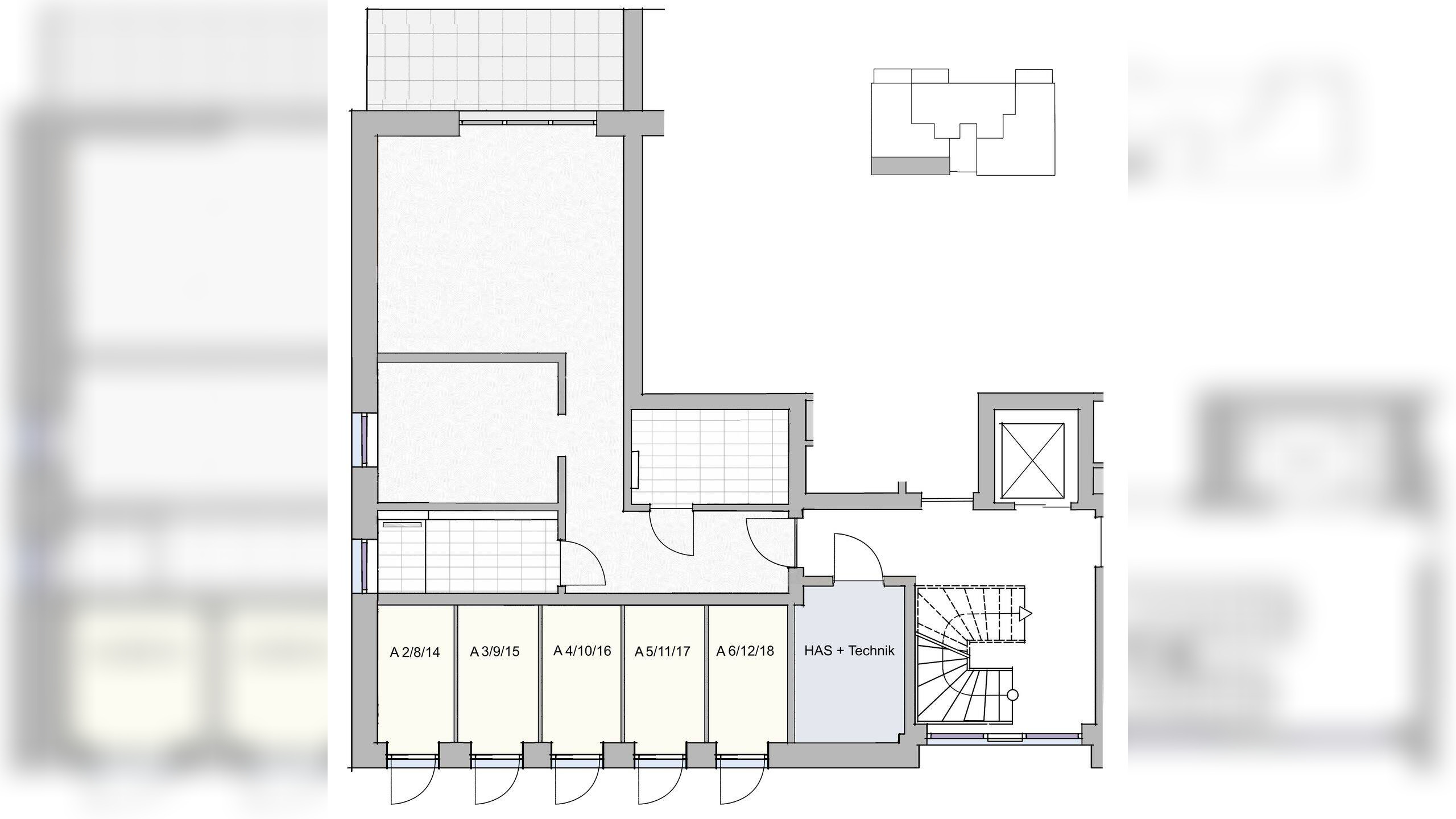
Diese attraktive Wohnanlage in Weyhe-Leeste wird in direkter Nachbarschaft zur Natur erstellt.Hier erstellen wir eine kleine Wohnanlage bestehend aus 3 Häusern mit jeweils 6 gut geschnittenen 2 und 3-Zimmer-Wohnungen.Im Kaufpreis enthalten sind ein Carport sowie ein zusätzlicher Stellplatz.So funktioniert es
- Alle neuen Anzeigen matchen wir kostenlos mit Deinen Suchparametern.
- Passende Angebote senden wir Dir in einer E-Mail pro Tag.
- Du kannst auch verschiedene Suchen anlegen und Dich jederzeit abmelden. Mehr dazu



