Objektdaten
Objektbeschreibung
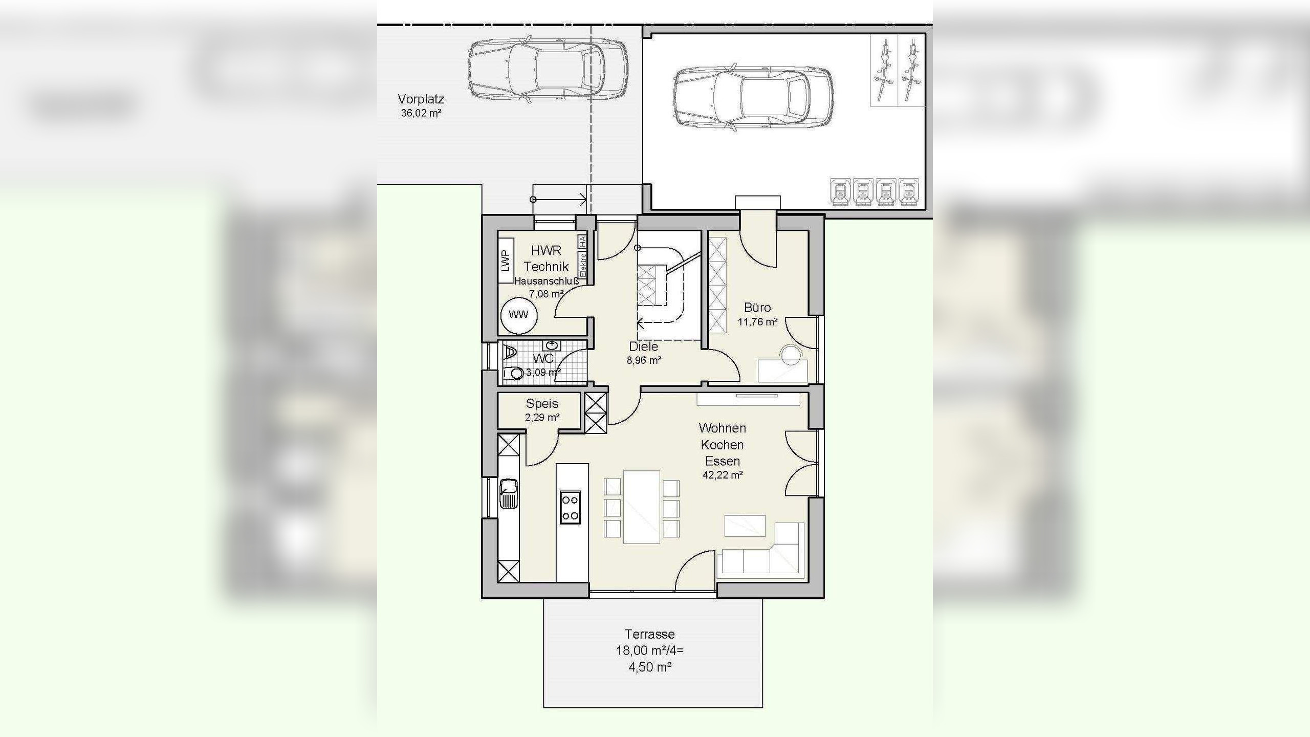
Entdecken Sie dieses großzügige 1-Familienhaus in Neunkirchen a.Brand. Mit einer beeindruckenden Fläche von ca. 190 m² aufgeteilt in Erdgeschoss und ausgebautem Dachgeschoss bietet dieses Haus 7 helle Zimmer, sowie 2 Tageslichtbadezimmer und 4 Toiletten, die den Bedürfnissen einer Familie gerecht werden. Erbaut wurde das Haus 1980 auf einem 798 m² großem Grundstück mit viel Gartenfläche. Im Erdgeschoss befindet sich eine großzügige Wohnküche mit einer vorhandenen Einbauküche, das helle Wohn- und Esszimmer mit Terrasse sowie Schlaf- und Kinderzimmer. Über ein Treppenhaus mit separatem Eingang erreicht man das ausgebaute Dachgeschoss mit einer eigenständigen Wohnung mit Tageslichtbad, Gäste-WC, Wohn- und Schlafzimmer sowie einer Küche. Ebenfalls über das Treppenhaus sind die Kellerräume mit Heizung und Waschküche erreichbar. Die Doppelgarage mit vorgelagerten Stellplätzen bietet ausreichend Platz für 2 PKWs sowie Gartengeräten und Fahrräder.So funktioniert es
- Alle neuen Anzeigen matchen wir kostenlos mit Deinen Suchparametern.
- Passende Angebote senden wir Dir in einer E-Mail pro Tag.
- Du kannst auch verschiedene Suchen anlegen und Dich jederzeit abmelden. Mehr dazu




