Kaufpreis 680.000 €
Zimmer 9
Größe 320 m²
87700 Memmingen
Objektdaten
Veröffentlicht am: 24. Juni 2025
Baujahr: 1650
Energieausweis: Liegt bei der Besichtigung vor
Danke! Bitte bestätige Deine E-Mail-Adresse – wir haben Dir soeben eine Mail geschickt.
Es gab ein Problem beim Absenden. Bitte versuche es erneut.
Bitte bestätige Deine E-Mail-Adresse, um Updates zu erhalten.
Objektbeschreibung
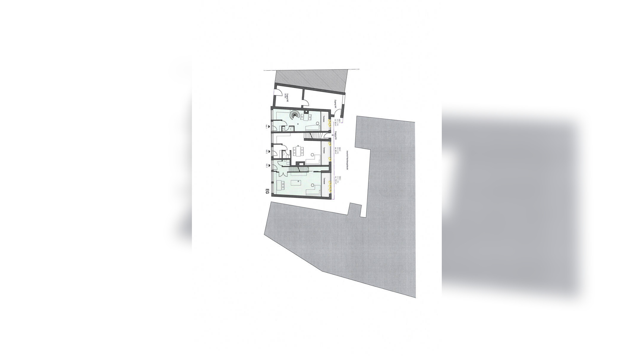
Energieangaben:E-Verbrauchsausweis gültig bis 26.5.2035, E-Verbrauch 47,2 kWh, Erdgas H, E-Verbrauch Strom 20,2 kWh, E-Klasse: A, Erdgas, Strom, Bj. Gebäude: 1650/2012, Gas-ZH Brenner v. 2013---------------------------------------------------------------------------------------------------------Im Zentrum der Innenstadt befindet sich in einer ruhigen 1b Lage eine Gewerbeimmobilie für deren Umbau in 3 Maisonette Wohnungen bereits Architektenpläne erstellt wurden (siehe Anhang).Die Umnutzung wurde positiv mit der Stadt Memmingen besprochen, das Genehmigungsverfahren aber noch nicht beantragt.Das Grundstück ist lastenfrei. Es besteht kein Denkmalschutz.Das aufstehende Gebäude hat einen rautenförmigen Grundriss mit einer Frontlänge von ca. 20 m und einer mittleren Tiefe von ca. 11.5 m. Das Gebäude (Erdgeschoß & 1. Obergeschoß) ist ein Ziegelbau dessen Innenaufteilung in Leichtbauweise erfolgte.Bei Fragen zur Bestandsimmobilie oder den Plänen des möglichen Umbaus rufen Sie mich jederzeit im Büro an: 08331 - 4987059.
So funktioniert es
- Alle neuen Anzeigen matchen wir kostenlos mit Deinen Suchparametern.
- Passende Angebote senden wir Dir in einer E-Mail pro Tag.
- Du kannst auch verschiedene Suchen anlegen und Dich jederzeit abmelden. Mehr dazu
Wir haben soeben eine E-Mail mit Deinem Suchauftrag an Dich geschickt. – Klicke in dieser Mail auf den Bestätigungslink und schon geht's los. Prüfe ggf. auch Deinen Spamordner.
Es gab ein Problem beim Absenden Deiner E-Mail-Adresse. Bitte versuche es erneut.
WARNUNG: Bitte bestätige Deine E-Mail-Adresse, um regelmäßige Updates zu erhalten.