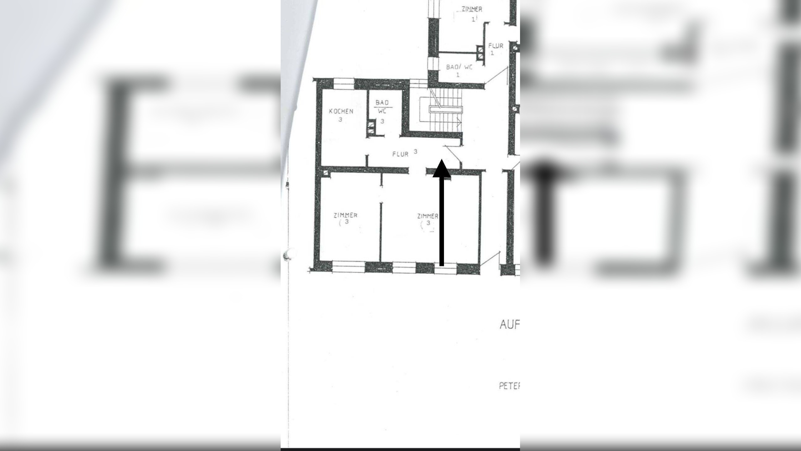
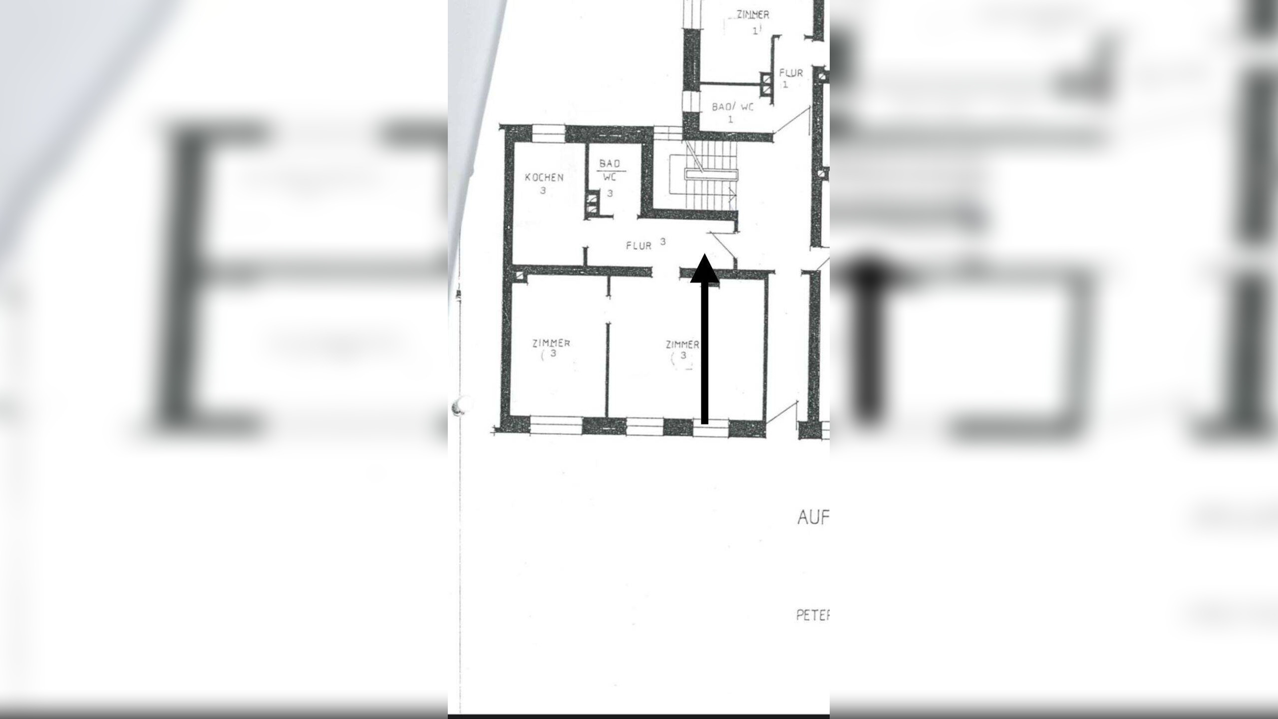
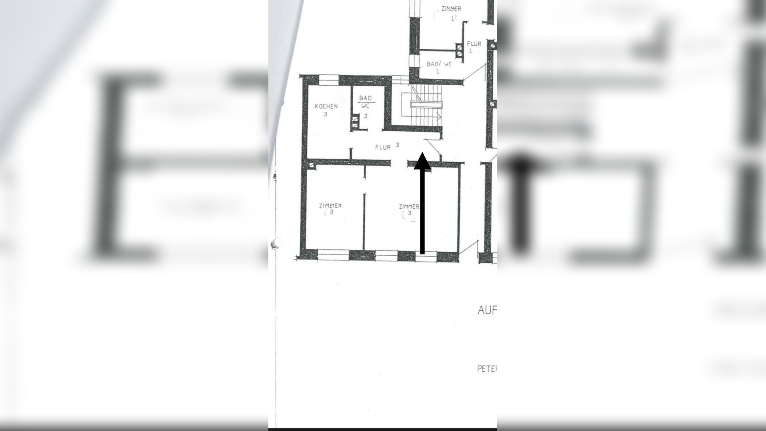
Diese charmante 60 m² große Eigentumswohnung mit drei Räumen liegt in der begehrten Gegend von Steinbühl. Ideal für Singles und Paare, nahe an den Verkehrsanbindungen zur Hauptstadt.
Objektdaten
Objektbeschreibung
In der Peter-Henlein-Straße im begehrten Stadtteil Steinbühl liegt diese charmante 60 m² große Wohnung, die ideal für Singles und Paare geeignet ist. Diese großzügige Wohnung verfügt über drei helle Räume, die vielseitig genutzt werden können, sowie über ein modernes und ansprechendes Ambiente. Die Lage überzeugt durch ihre Nähe zum Hauptbahnhof und die hervorragenden Verkehrsanbindungen. Die Haltestelle Christuskirche für die Straßenbahnen 5 und 6 ist nur 270 m entfernt, was eine schnelle Anbindung ans Stadtzentrum und darüber hinaus ermöglicht. Einkaufsmöglichkeiten sind ebenfalls in unmittelbarer Nähe: Der Norma-Supermarkt ist nur 115 m entfernt, sodass Sie Ihren täglichen Bedarf bequem fußläufig decken können. Zudem sind verschiedene Restaurants in direkter Nachbarschaft vorhanden. Genießen Sie die Vorzüge des urbanen Lebensstils in einer dynamischen Nachbarschaft, die alle Annehmlichkeiten bietet. Diese Wohnung ist eine großartige Gelegenheit, Ihr neues Zuhause in Nürnberg zu finden. Zögern Sie nicht, uns zu kontaktieren, um mehr zu erfahren oder einen Besichtigungstermin zu vereinbaren!Ähnliche Angebote
So funktioniert es
- Alle neuen Anzeigen matchen wir kostenlos mit Deinen Suchparametern.
- Passende Angebote senden wir Dir in einer E-Mail pro Tag.
- Du kannst auch verschiedene Suchen anlegen und Dich jederzeit abmelden. Mehr dazu




