Kaufpreis 525.000 €
Zimmer 6
Größe 160 m²
18586 Mönchgut
Objektdaten
Veröffentlicht am: 3. Juli 2025
Energieausweis: Liegt bei der Besichtigung vor
Danke! Bitte bestätige Deine E-Mail-Adresse – wir haben Dir soeben eine Mail geschickt.
Es gab ein Problem beim Absenden. Bitte versuche es erneut.
Bitte bestätige Deine E-Mail-Adresse, um Updates zu erhalten.
Objektbeschreibung
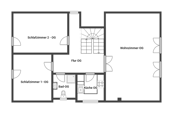
Zum Verkauf steht ein gut durchdachtes Wohnhaus, in angenehmer, und strandnaher Ortslage von Thiessow. Die ideale Einteilung in 3 Einheiten lässt sowohl eine komplette eigenständige Nutzung (die beiden Appartements im Erdgeschoss sind quasi barrierefrei-dadurch ist diese Immobilie auch als Mehrgenerationenhaus geeignet), wie auch eine teilweise oder komplette Ferienvermietung zu. Zwei vollwertige Appartements, mit Küche und Badezimmer, befinden sich im Erdgeschoss-Eine großzügig geschnittene Wohnung, mit zwei Schlafzimmern und einem riesigen Wohnzimmer, sowie einem gemütlichem Balkon befindet sich im Obergeschoss.
So funktioniert es
- Alle neuen Anzeigen matchen wir kostenlos mit Deinen Suchparametern.
- Passende Angebote senden wir Dir in einer E-Mail pro Tag.
- Du kannst auch verschiedene Suchen anlegen und Dich jederzeit abmelden. Mehr dazu
Wir haben soeben eine E-Mail mit Deinem Suchauftrag an Dich geschickt. – Klicke in dieser Mail auf den Bestätigungslink und schon geht's los. Prüfe ggf. auch Deinen Spamordner.
Es gab ein Problem beim Absenden Deiner E-Mail-Adresse. Bitte versuche es erneut.
WARNUNG: Bitte bestätige Deine E-Mail-Adresse, um regelmäßige Updates zu erhalten.