Kaufpreis 420.000 €
Zimmer 7
Größe 163 m²
74653 Ingelfingen
Objektdaten
Veröffentlicht am: 3. Juli 2025
Energieausweis: Liegt bei der Besichtigung vor
Danke! Bitte bestätige Deine E-Mail-Adresse – wir haben Dir soeben eine Mail geschickt.
Es gab ein Problem beim Absenden. Bitte versuche es erneut.
Bitte bestätige Deine E-Mail-Adresse, um Updates zu erhalten.
Objektbeschreibung
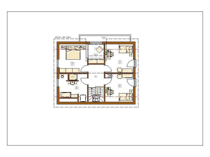
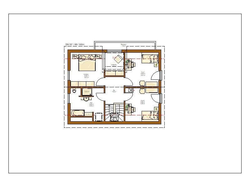
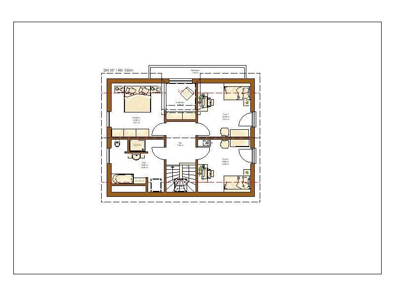
Das CLOU 155 ist Sinnbild für klassische Satteldacharchitektur in Verbindung mit trendigen Flachdachkomponenten. Die wichtigsten Räume des täglichen Lebens sind zu einer offenen Einheit zusammengefasst und gemeinsam zur Gartenseite hin ausgerichtet. Der "Livingspace-Plus", mit großzügig dimensionierten Glaselementen, sorgt hier für ein lebendiges Flair und liefert reichlich Tageslicht. Ein ebenso interessantes Stilelement ist das "Panoramafenster", welches als hausinterner Kräutergarten von Nutzen ist.Unter dem Dach, mit 1,60 m hohem Kniestock, komplettiert sich das Raumprogramm. Hier befindet sich das wunderschöne Familienbad, die beiden gleich großen Kinderzimmer und das Elternschlafzimmer mit Ankleidebereich.
So funktioniert es
- Alle neuen Anzeigen matchen wir kostenlos mit Deinen Suchparametern.
- Passende Angebote senden wir Dir in einer E-Mail pro Tag.
- Du kannst auch verschiedene Suchen anlegen und Dich jederzeit abmelden. Mehr dazu
Wir haben soeben eine E-Mail mit Deinem Suchauftrag an Dich geschickt. – Klicke in dieser Mail auf den Bestätigungslink und schon geht's los. Prüfe ggf. auch Deinen Spamordner.
Es gab ein Problem beim Absenden Deiner E-Mail-Adresse. Bitte versuche es erneut.
WARNUNG: Bitte bestätige Deine E-Mail-Adresse, um regelmäßige Updates zu erhalten.