Kaufpreis 229.500 €
Zimmer 5
Größe 127 m²
18292 Krakow am See
Objektdaten
Veröffentlicht am: 4. Juli 2025
Baujahr: 1992
Energieausweis: Liegt bei der Besichtigung vor
Danke! Bitte bestätige Deine E-Mail-Adresse – wir haben Dir soeben eine Mail geschickt.
Es gab ein Problem beim Absenden. Bitte versuche es erneut.
Bitte bestätige Deine E-Mail-Adresse, um Updates zu erhalten.
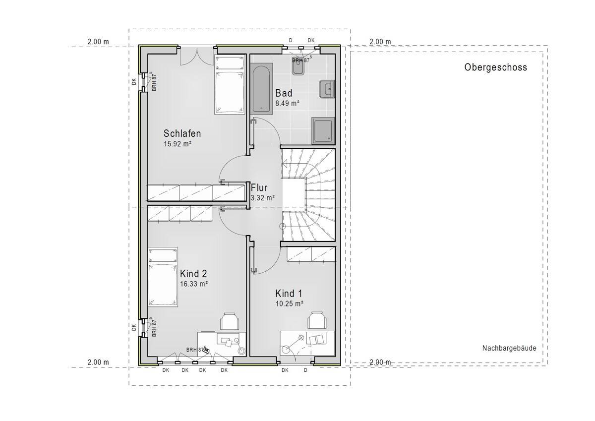
Objektbeschreibung
Eine hervorragende Gelegenheit, Ihre eigenen Wohnideen zu verwirklichen.Willkommen in Ihrem neuen Zuhause! Dieses charmante Doppelhaus bietet Ihnen und Ihrer Familie alles, was Sie sich wünschen können.Dieses Doppelhaus besticht durch seinen zeitlosen Charm und seine wunderbare Lage im Luftkurort Krakow am See am Rande der mecklenburgischen Seenplatte. Der einladende Flur mit viel Platz für Schuhe und Garderobe führt direkt ins große Wohnzimmer. Hier können Sie ausspannen, Feste feiern oder einfach einen schönen Familienabend verbringen. Der lichtdurchflutete Wohnbereich führt Sie durch die großzügige Terrassentür direkt in Ihren wunderbaren Wintergarten. Die Küche bietet viel Raum zum Kochen, Backen, oder Frühstück im gemütlichen Essbereich.Mit insgesamt 4 großzügigen Schlafzimmern ist ausreichend Platz für jeden vorhanden - sei es für Kinder, Gäste oder ein HomeofficeGenießen Sie die Natur das ganze Jahr über in Ihrem eigenen Wintergarten, der Ihnen einen herrlichen Blick in den Garten bietet.Der liebevoll gestaltete Garten mit perfekter Süd-West-Ausrichtung lädt zu entspannten Stunden im Freien ein - ideal für Grillabende oder einfach zum Entspannen in der Sonne.Die Garage bietet nicht nur Platz für Ihr Auto, sondern auch einen zusätzlichen Geräteraum für Werkzeuge und Fahrräder.Teilweise Rollläden sorgen für zusätzlichen Komfort und Sicherheit, während die zusätzliche Nutzfläche im Spitzdachboden vielseitige Gestaltungsmöglichkeiten bietet.Dieses Doppelhaus vereint modernen Wohnkomfort mit einem einladenden Ambiente und einer hervorragenden Lage. Überzeugen Sie sich selbst von den vielen Vorzügen dieses schönen Immobilie!
So funktioniert es
- Alle neuen Anzeigen matchen wir kostenlos mit Deinen Suchparametern.
- Passende Angebote senden wir Dir in einer E-Mail pro Tag.
- Du kannst auch verschiedene Suchen anlegen und Dich jederzeit abmelden. Mehr dazu
Wir haben soeben eine E-Mail mit Deinem Suchauftrag an Dich geschickt. – Klicke in dieser Mail auf den Bestätigungslink und schon geht's los. Prüfe ggf. auch Deinen Spamordner.
Es gab ein Problem beim Absenden Deiner E-Mail-Adresse. Bitte versuche es erneut.
WARNUNG: Bitte bestätige Deine E-Mail-Adresse, um regelmäßige Updates zu erhalten.