Objektdaten
Objektbeschreibung
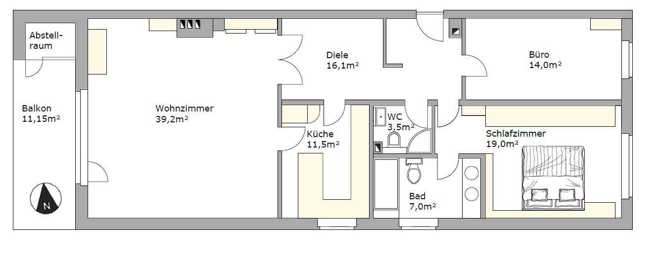
Das angebotene Mietobjekt befindet sich im zweiten Obergeschoß eines stilvollen Altbaus und bietet vier Zimmer mit schönem Stuck, eine Wohnküche, ein Badezimmer mit Badewanne sowie ein separates WC ist vorhanden.Ähnliche Angebote
So funktioniert es
- Alle neuen Anzeigen matchen wir kostenlos mit Deinen Suchparametern.
- Passende Angebote senden wir Dir in einer E-Mail pro Tag.
- Du kannst auch verschiedene Suchen anlegen und Dich jederzeit abmelden. Mehr dazu





