Objektdaten
Objektbeschreibung
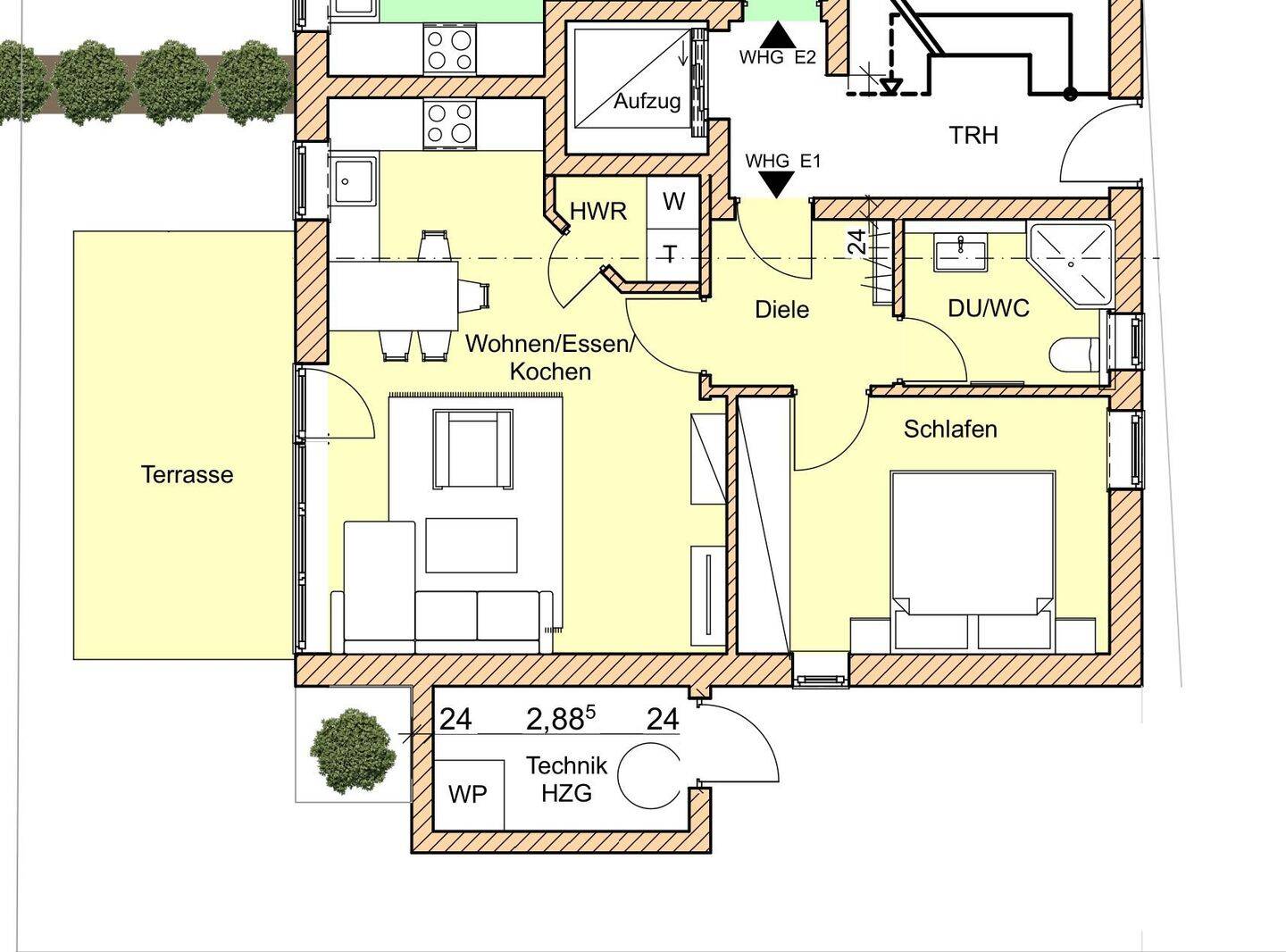
In sehr guter Nähe zum Zentrum von Bad Zwischenahn entsteht das moderne architektonische Mehrparteinhaus mit insgesamt 5 hellen und gut geschnittenen Komfort- Eigentumswohnungen, die über eine Terrasse mit Gartenanteil bzw. einen Balkon verfügen. Es wurde eine stilvolle und freundliche Architektur konzipiert, bei der Sie Ihre individuellen Wünsche bei der Wohnungsaustattung noch mitgestalten können. Komfort wird in diesem Haus groß geschrieben. Die hausinterne Fahrstuhlanlage bringt Sie bequem bis vor die Wohnungstür. Alle Wohnungen erhalten eine moderne Fußbodenheizung mit Einzelraumregelung. Die Beheizung des Hauses erfolgt über eine moderne Luft-Wasser-Wärmepumpe. Zu jeder Wohnung gehört ein eigener abschließbarer Fahrradabstellraum sowie ein PKW-Stellplatz. Balkon, Fahrstuhl, Duschbad, Barrierefrei, Fliesen Bemerkungen: - Erstbezug - Carport-Stellplatz - provisionsfrei - fußläufig zum Meer - fußläufig ins Zentrum (Flaniermeile) - fußläufig alle Versorgungseinrichtungen (Bäcker, Lebensmittelläden) - ideal auch als Ferienwohnung geeignet Wohn- & Nutzfläche: Wohnfläche: 47,15 m² (Terrasse anteilig eingerechnet) Nutzfläche: 8,97 m² Austattung - KfW- 55 Ausführung - Carportstellplatz - offener Wohn- & Essbereich - barrierefrei / Personenaufzug - Terrassenwohnung mit Gartenanteil - 3-fach Isolierverglasung als Dreh-/ Kippfenster ein- oder zweiflüglig - alle Fenster verfügen über elektrische Rollläden - Fliesen- & Vinylboden inkl. Fußbodenheizung mit Einzelraumregelung - Türgegensprechanlage - Qualitätsinnentüren - ansprechende und moderne Sanitärobjekte, z.B. Fabrikat Duravit, Grohe. - alle Bäder verfügen über eine begehbare & bodengleiche Dusche, ein wandhängendes WC , einen Waschtisch, einen elektrischen Handtuchheizkörper - wertige Wohnungseingangstür - umfangreiche Elektroinstallation - inkl. Waschmaschinen- / Trockneranschluss - je Wohnung ein zugewiesener PKW-Stellplatz - je Wohnung ein zugewiesener Abstellraum auf dem GrundstückEnergieträger: Luft-/Wasserwärme
Energieausweis nicht vorhanden
Beratungs- sowie Besichtigungstermine sind nach Terminabsprache kurzfristig auch am Wochenende möglich.
Makleranfragen nicht erwünscht. Nach § 7 UWG sind unaufgeforderte Kontaktaufnahmen durch Makler ohne ausdrückliche Einwilligung des Empfängers verboten!
ohne-makler (OM) ist weder Anbieter noch Vermittler der Immobilie. OM betreibt eine Plattform für Immobilieneigentümer, die unter anderem die gleichzeitige Veröffentlichung einzelner Inserate auf mehreren Immobilienportalen ermöglicht. Die Inhalte dieser Inserate werden ausschließlich von Dritten verantwortet. Für die Richtigkeit, Vollständigkeit oder Rechtmäßigkeit der Angaben übernimmt OM keine Haftung. Hinweise auf mögliche Rechtsverstöße können jederzeit gemeldet werden und werden nach Prüfung umgehend bearbeitet.
Ähnliche Angebote
So funktioniert es
- Alle neuen Anzeigen matchen wir kostenlos mit Deinen Suchparametern.
- Passende Angebote senden wir Dir in einer E-Mail pro Tag.
- Du kannst auch verschiedene Suchen anlegen und Dich jederzeit abmelden. Mehr dazu




