Kaufpreis 263.000 €
Zimmer 3
Größe 77 m²
26409 Wittmund
Objektdaten
Veröffentlicht am: 14. Juli 2025
Energieausweis: Liegt bei der Besichtigung vor
Danke! Bitte bestätige Deine E-Mail-Adresse – wir haben Dir soeben eine Mail geschickt.
Es gab ein Problem beim Absenden. Bitte versuche es erneut.
Bitte bestätige Deine E-Mail-Adresse, um Updates zu erhalten.
Objektbeschreibung
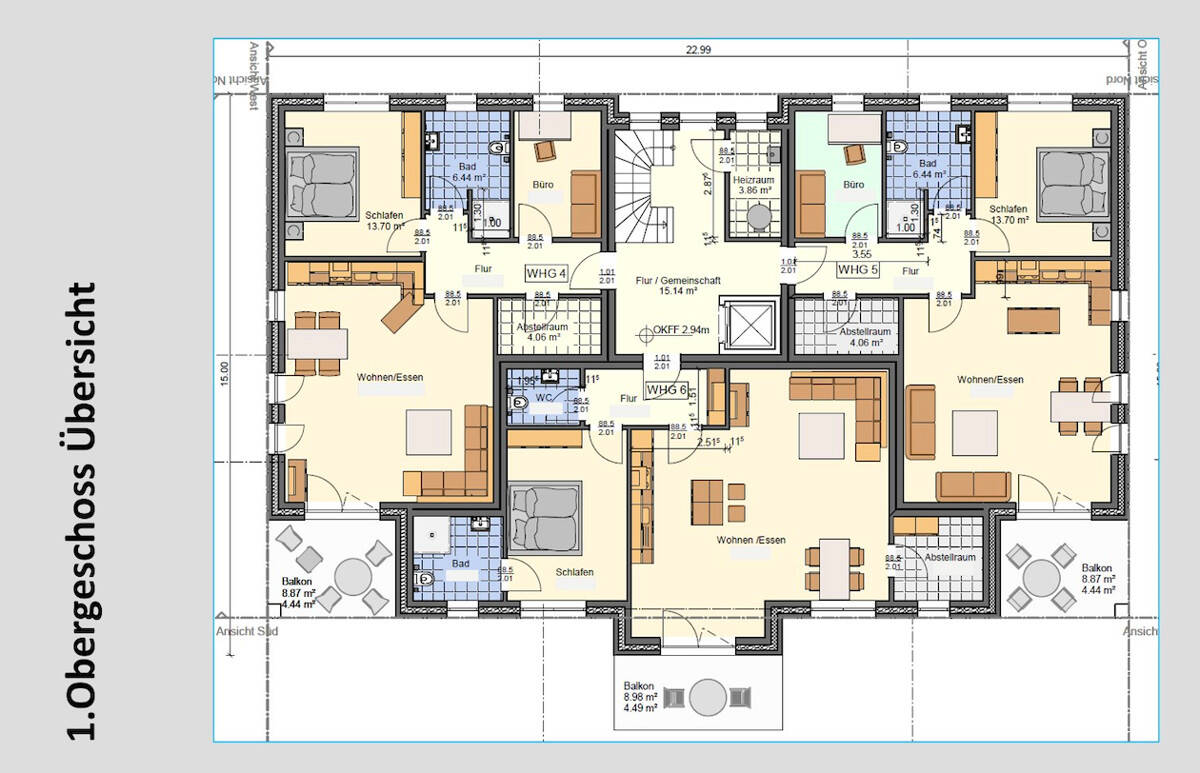
Diese durchdacht geplante Etagenwohnung bietet eine gelungene Verbindung aus zeitgemäßem, barrierefreiem Wohnen, nachhaltiger Bauweise und einer Ausstattung, die Funktionalität und Wohnkomfort ideal vereint. Perfekt für alle, die Wert auf Lebensqualität und Umweltbewusstsein legen.Das Gebäude wird nach dem anspruchsvollen KfW-55-Standard errichtet und überzeugt mit einer hervorragend gedämmten Gebäudehülle sowie einer klimafreundlichen Luftwärmepumpe. Das sorgt für dauerhaft niedrige Energiekosten und ein zukunftsfähiges Wohnkonzept.Die Wohnung umfasst zwei Schlafzimmer, einen großzügigen Wohn- und Essbereich mit offener Küche sowie ein modernes Badezimmer. Sie ist bequem und stufenlos über einen Aufzug erreichbar - die barrierefreie Gestaltung ermöglicht komfortables Wohnen auf einer Ebene.Für ein angenehmes Raumklima in jeder Jahreszeit sorgt eine Fußbodenheizung mit individuell regulierbaren Thermostaten in allen Zimmern. Hochwertige, dreifach verglaste Kunststofffenster in elegantem Anthrazit mit elektrischen Außenrollläden gewährleisten ausgezeichneten Wärme- und Schallschutz. Eine schallgedämmte Wohnungseingangstür erhöht zusätzlich die Privatsphäre.Ein besonderes Highlight ist der sonnige Balkon mit Süd-Ost-Ausrichtung - ideal für entspannte Stunden an der frischen Luft. Ein eigener PKW-Stellplatz sowie ein praktischer Außenabstellraum bieten zusätzlichen Stauraum und Komfort.Die Innenausstattung lässt sich im Rahmen der Baubeschreibung individuell gestalten - von Bodenbelägen über Sanitärobjekte bis hin zur Wandgestaltung haben Sie zahlreiche Möglichkeiten, Ihre Wohnideen umzusetzen.
So funktioniert es
- Alle neuen Anzeigen matchen wir kostenlos mit Deinen Suchparametern.
- Passende Angebote senden wir Dir in einer E-Mail pro Tag.
- Du kannst auch verschiedene Suchen anlegen und Dich jederzeit abmelden. Mehr dazu
Wir haben soeben eine E-Mail mit Deinem Suchauftrag an Dich geschickt. – Klicke in dieser Mail auf den Bestätigungslink und schon geht's los. Prüfe ggf. auch Deinen Spamordner.
Es gab ein Problem beim Absenden Deiner E-Mail-Adresse. Bitte versuche es erneut.
WARNUNG: Bitte bestätige Deine E-Mail-Adresse, um regelmäßige Updates zu erhalten.