Kaufpreis 271.000 €
Zimmer 3
Größe 77 m²
26409 Wittmund
Objektdaten
Veröffentlicht am: 14. Juli 2025
Energieausweis: Liegt bei der Besichtigung vor
Danke! Bitte bestätige Deine E-Mail-Adresse – wir haben Dir soeben eine Mail geschickt.
Es gab ein Problem beim Absenden. Bitte versuche es erneut.
Bitte bestätige Deine E-Mail-Adresse, um Updates zu erhalten.
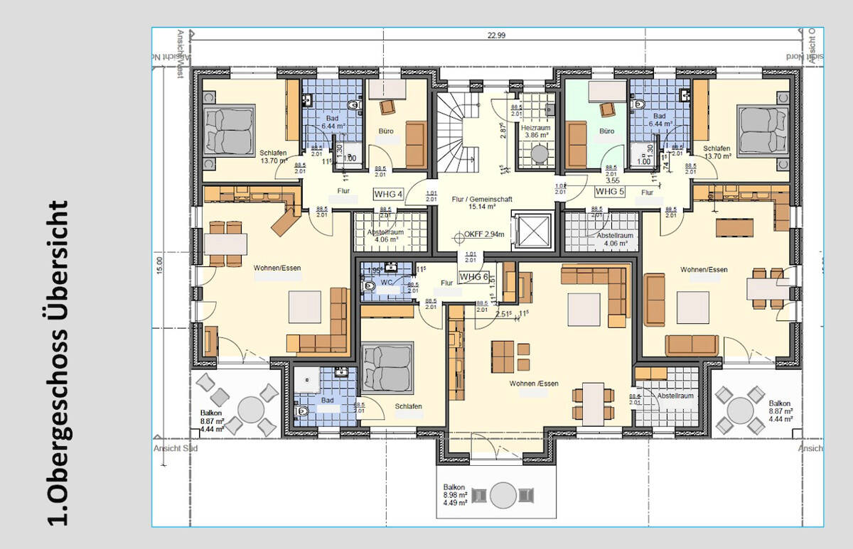
Objektbeschreibung
Diese hochwertig konzipierte Etagenwohnung vereint modernes, barrierefreies Wohnen mit nachhaltiger Bauweise und einer Ausstattung, die Komfort und Alltagstauglichkeit perfekt kombiniert. Ideal für alle, die umweltbewusst leben und gleichzeitig nicht auf Wohnqualität verzichten möchten.Das Gebäude entsteht nach dem strengen KfW-55-Energiestandard und punktet mit einer hervorragend gedämmten Gebäudehülle sowie einer umweltfreundlichen Luftwärmepumpe. So profitieren Sie von dauerhaft niedrigen Energiekosten und einem zukunftssicheren Zuhause.Die Wohnung verfügt über zwei Schlafzimmer, ein großzügig geschnittenes Wohn- und Esszimmer mit offener Küche sowie ein modernes Badezimmer. Die Wohnung ist bequem über einen Aufzug zu erreichen. Die barrierefreie Gestaltung ermöglicht uneingeschränktes Wohnen auf einer Ebene - ganz ohne Stufen oder Schwellen.Eine Fußbodenheizung mit einzeln regulierbaren Raumthermostaten sorgt in allen Räumen für ein angenehmes Wohnklima. Hochwertige, dreifach verglaste Kunststofffenster in stilvollem Anthrazit mit elektrischen Außenrollläden bieten exzellenten Wärme- und Schallschutz. Für zusätzliche Ruhe sorgt die schallgedämmte Wohnungseingangstür.Besonderes Highlight ist der eigene Balkon in sonniger Süd-West-Ausrichtung - ideal zum Entspannen oder geselligen Beisammensein im Freien. Ein Außenabstellraum sowie ein eigener PKW-Stellplatz bieten weiteren Komfort und Stauraum.Die Innenausstattung kann im Rahmen der Baubeschreibung individuell nach Ihren Wünschen gestaltet werden - sei es bei Bodenbelägen, der Sanitärausstattung oder der Wandgestaltung.
So funktioniert es
- Alle neuen Anzeigen matchen wir kostenlos mit Deinen Suchparametern.
- Passende Angebote senden wir Dir in einer E-Mail pro Tag.
- Du kannst auch verschiedene Suchen anlegen und Dich jederzeit abmelden. Mehr dazu
Wir haben soeben eine E-Mail mit Deinem Suchauftrag an Dich geschickt. – Klicke in dieser Mail auf den Bestätigungslink und schon geht's los. Prüfe ggf. auch Deinen Spamordner.
Es gab ein Problem beim Absenden Deiner E-Mail-Adresse. Bitte versuche es erneut.
WARNUNG: Bitte bestätige Deine E-Mail-Adresse, um regelmäßige Updates zu erhalten.