Kaufpreis 627.000 €
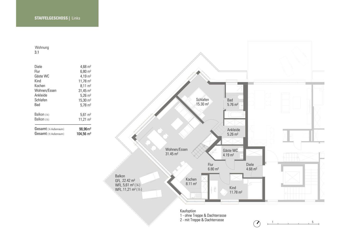
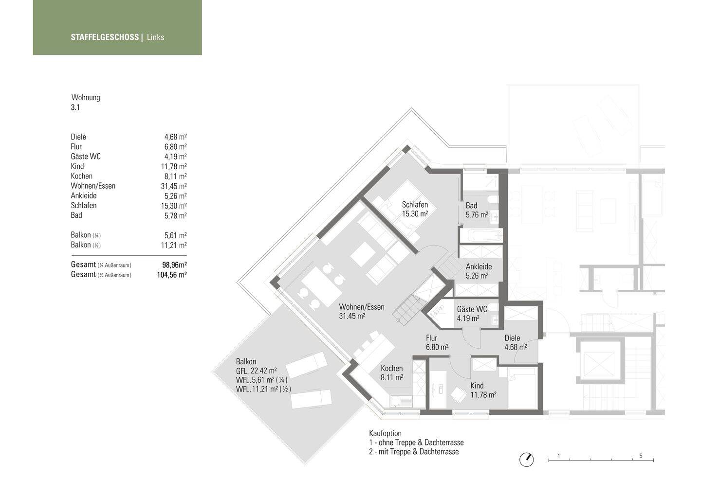
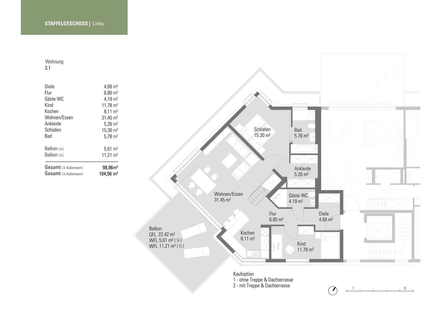
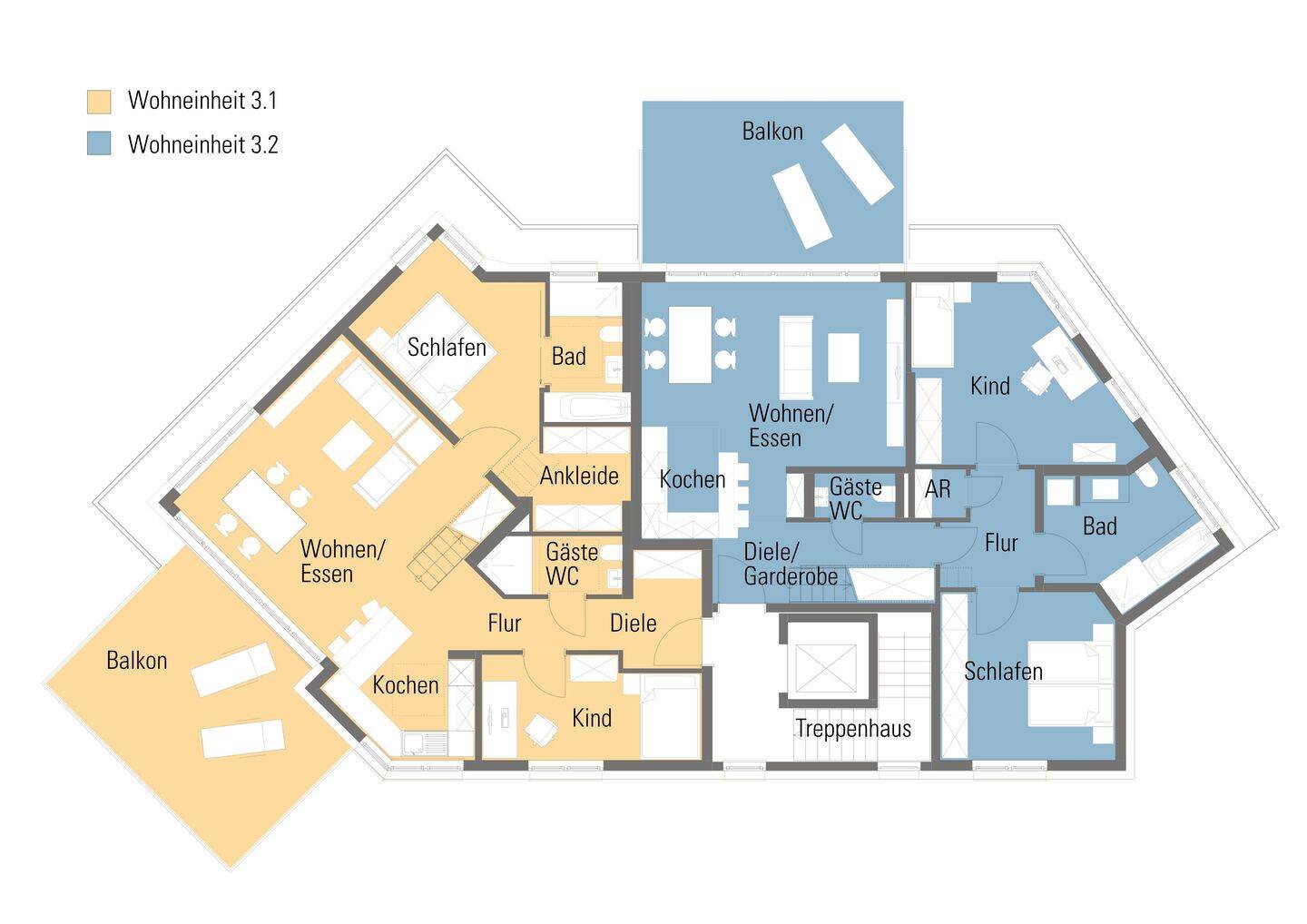
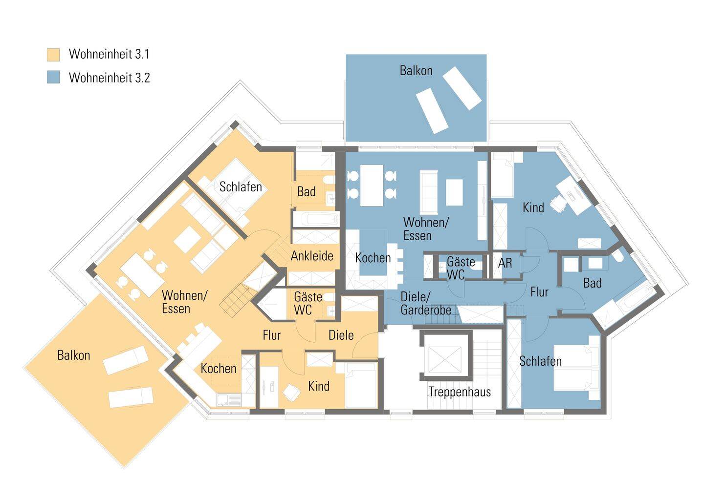
Zimmer 3
Größe 104 m²
95448 Bayreuth
Objektdaten
Veröffentlicht am: 18. Juli 2025
Energieausweis: Liegt bei der Besichtigung vor
Danke! Bitte bestätige Deine E-Mail-Adresse – wir haben Dir soeben eine Mail geschickt.
Es gab ein Problem beim Absenden. Bitte versuche es erneut.
Bitte bestätige Deine E-Mail-Adresse, um Updates zu erhalten.
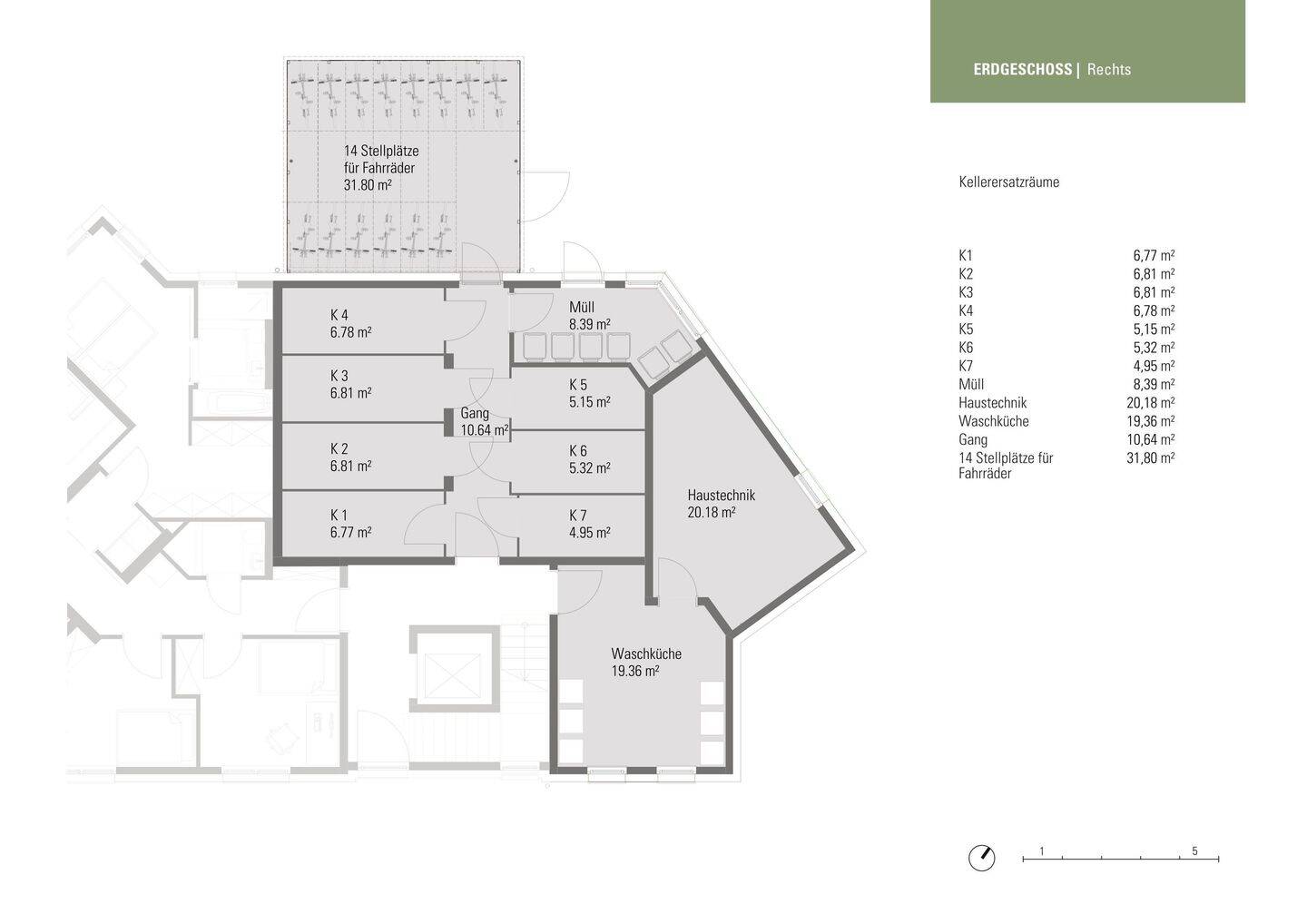
Objektbeschreibung
Wir sind wieder soweit.Nach intensiver Suche haben wir das ideale Grundstück für unser neues Bauvorhaben gefunden. Mit der Stadtvilla Kerschensteinerstraße entsteht eine Mehrfamilien-Villa mit sieben großzügigen Wohneinheiten auf vier Etagen.Wer die Natur liebt und gleichzeitig die Annehmlichkeiten der Stadt genießen möchte, findet bei uns sein perfektes Zuhause. In der Nähe der Wilhelminenaue steht die harmonische Bebauung in Innenstadtlage für einen modernen und nachhaltigen Wohnraum. Durch die weitgehend schwellenfreie Erreichbarkeit der Wohnungen und Balkonesowie die großzügigen Bewegungsflächen garantieren unsere Wohnungen ein selbstständiges Leben bis ins hohe Alter. Der moderne und puristische Baustil garantiert eine effiziente Wohnraumgestaltung, die sämtlichen Generationsansprüchen gerecht wird.Durch den fließenden Übergang zwischen den Wohnbereichen und das Spiel mit Raum und Licht wirkt jede Einheit modern, hell und einladend. Bodentiefe Balkon- und Terrassenfenster bieten nicht nur einen wunderschönen Blick ins Freie, sondern unterstreichen auch das Gefühl von Offenheit und Leichtigkeit.Nachhaltigkeit und Wirtschaftlichkeit begreifen wir nicht als Widerspruch, sondern als gebotene Symbiose. In Zeiten des Klimawandels und steigender Energiekosten setzen wir auf die Integration erneuerbarer Energien für ein nachhaltiges und ökonomisches Energiekonzept.Dreißig Jahre Erfahrung bei der Planung und im Bau von zahlreichen sozialen Einrichtungen, insbesondere im Bereich des betreuten Wohnens, bildet die Grundlage für ein ganzheitlich nachhaltiges Bauprojekt, das ökologische, ökonomische und soziale Aspekte vereint.Sie sind herzlich eingeladen, an unserer Vision teilzuhaben.Wir freuen uns sehr darauf, Ihnen unser Projekt persönlich vorzustellen.
So funktioniert es
- Alle neuen Anzeigen matchen wir kostenlos mit Deinen Suchparametern.
- Passende Angebote senden wir Dir in einer E-Mail pro Tag.
- Du kannst auch verschiedene Suchen anlegen und Dich jederzeit abmelden. Mehr dazu
Wir haben soeben eine E-Mail mit Deinem Suchauftrag an Dich geschickt. – Klicke in dieser Mail auf den Bestätigungslink und schon geht's los. Prüfe ggf. auch Deinen Spamordner.
Es gab ein Problem beim Absenden Deiner E-Mail-Adresse. Bitte versuche es erneut.
WARNUNG: Bitte bestätige Deine E-Mail-Adresse, um regelmäßige Updates zu erhalten.