Kaufpreis 85.000 €
Zimmer 1
Größe 27 m²
93333 Neustadt a.d. Donau
Objektdaten
Veröffentlicht am: 20. Juli 2025
Baujahr: 1987
Energieausweis: Liegt bei der Besichtigung vor
Danke! Bitte bestätige Deine E-Mail-Adresse – wir haben Dir soeben eine Mail geschickt.
Es gab ein Problem beim Absenden. Bitte versuche es erneut.
Bitte bestätige Deine E-Mail-Adresse, um Updates zu erhalten.
Objektbeschreibung
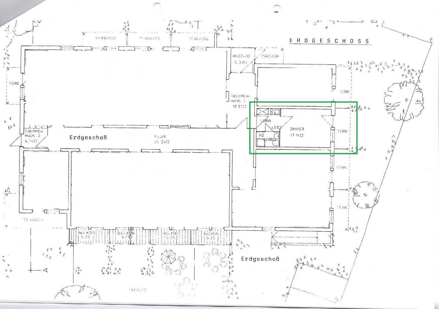
In 93333 Bad Gögging steht dieses Apartment im EG mit ca. 27,32 m² Wohnfläche zum Verkauf. Die Wohnung befindet sich in einem 40-Parteienhaus in ruhiger Lage. Die Wohnung ist wie folgt aufgeteilt:- Wohnen/Schlafen (17,14 m²)- Vorraum mit Küchenzeile (4,61 m²)- Bad (2,88 m²)- Terrasse (2,69 m²)Das Hausgeld beträgt gemäß Wirtschaftsplan 186,00 Euro. Darin sind alle Kosten der Verwaltung enthalten. Da die Wohnung derzeit vermietet ist, gibt es keine Bilder von Innen.Angaben über das Mietverhältnis erfolgen ausschließlich in einem persönlichen Gespräch. Energieausweistyp: EnergieverbrauchsausweisGebäudetyp: MehrfamilienhausBaujahr laut Energieausweis: 1987Wesentliche Energieträger: GasEndenergieverbrauch (Wärme): 168,00 kWh/(m²xa)Warmwasser enthaltenGültigkeit: 13.03.2019 - 12.03.2019Energieeffizienzklasse: FAlle Angaben kommen im Kundenauftrag vom Eigentümer. Irrtümer und Zwischenverkauf vorbehalten.Eine Garantie auf eine Besichtigung gibt es nicht. Ohne einenMaklervertrag geben wir keine weiteren Information raus.Bei Abschluss eines notariellen Kaufvertrags ist vom Käufer eineProvision in Höhe von 3,57 % inklusive 19 % MWST an die FirmaImmobilien Baumeister zu entrichten. Der Verkäufer entrichtet ebenfallseine Provision in Höhe von 3,57 %.
So funktioniert es
- Alle neuen Anzeigen matchen wir kostenlos mit Deinen Suchparametern.
- Passende Angebote senden wir Dir in einer E-Mail pro Tag.
- Du kannst auch verschiedene Suchen anlegen und Dich jederzeit abmelden. Mehr dazu
Wir haben soeben eine E-Mail mit Deinem Suchauftrag an Dich geschickt. – Klicke in dieser Mail auf den Bestätigungslink und schon geht's los. Prüfe ggf. auch Deinen Spamordner.
Es gab ein Problem beim Absenden Deiner E-Mail-Adresse. Bitte versuche es erneut.
WARNUNG: Bitte bestätige Deine E-Mail-Adresse, um regelmäßige Updates zu erhalten.