Top-Chance für Investoren Baugrundstück mit Genehmigung für 8-Parteienhaus !

Kaufpreis 499.000 €
Zimmer 24
Größe 561 m²
67063 Ludwigshafen am Rhein

Objektdaten

Veröffentlicht am: 21. Juli 2025
Energieausweis: Liegt bei der Besichtigung vor
  • Objektbeschreibung

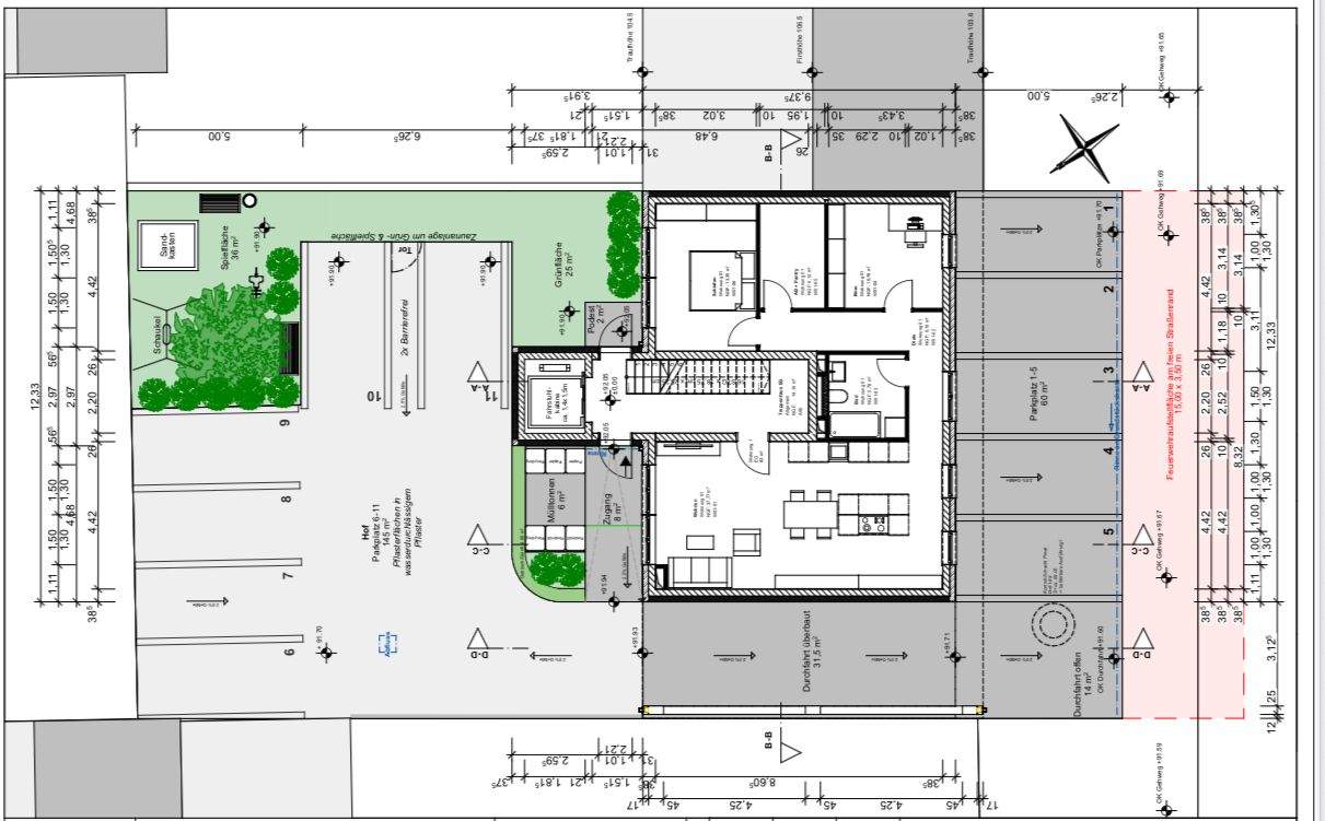
    **Besonderheiten:**Das Grundstück eignet sich ideal für Investoren und Bauherren, die ein zukunftsorientiertes Wohnkonzept umsetzen möchten. Bitte beachten Sie, dass das bestehende Gebäude vor Baubeginn abgerissen werden muss. Die Lage in der Nähe der BASF bietet nicht nur eine hohe Lebensqualität, sondern auch eine ausgezeichnete Anbindung an den Arbeitsmarkt.**Beschreibung:**Professionelles Investment in ein Neubauvorhaben für ein modernes 8-Familienhaus in bester Lage von Ludwigshafen am Rhein. Dieses attraktive Grundstück mit einer Fläche von 450 m² bietet die Möglichkeit, ein großzügiges Wohnhaus mit insgesamt 24 Zimmern, darunter 16 geräumige Schlafzimmer und 8 moderne Bäder, zu errichten. Der geplante Neubau erstreckt sich über 4 Etagen und hat eine Gesamtfläche von 561 m². Die gehobene Ausstattung sorgt für ein erstklassiges Wohnambiente, das höchsten Ansprüchen gerecht wird. Alle Wohnungen sind barrierefrei gestaltet und bieten einen komfortablen Zugang für alle Generationen. Ein Aufzug wird selbstverständlich integriert, um den Alltag zu erleichtern.**Ausstattung:**- 24 Zimmer- 16 Schlafzimmer- 8 Bäder- Gesamtfläche: 561 m²- Grundstücksgröße: 450 m²- 4 Etagen mit attraktiver Raumaufteilung- Hochwertige Ausstattung- Barrierefreier Zugang- Außenstellplatz- Aufzug- Voll unterkellert mit Abstellraum**Besonderheiten:**Das Grundstück eignet sich ideal für Investoren und Bauherren, die ein zukunftsorientiertes Wohnkonzept umsetzen möchten. Bitte beachten Sie, dass das bestehende Gebäude vor Baubeginn abgerissen werden muss. Die Lage in der Nähe der BASF bietet nicht nur eine hohe Lebensqualität, sondern auch eine ausgezeichnete Anbindung an den Arbeitsmarkt.Nutzen Sie die Gelegenheit, in ein vielversprechendes Neubauprojekt zu investieren, das sowohl für Eigennutzer als auch für Kapitalanleger attraktiv ist. Bei Interesse stehen wir Ihnen gerne für weitere Informationen und eine Besichtigung zur Verfügung.
    Nach oben scrollen