Objektdaten
Objektbeschreibung
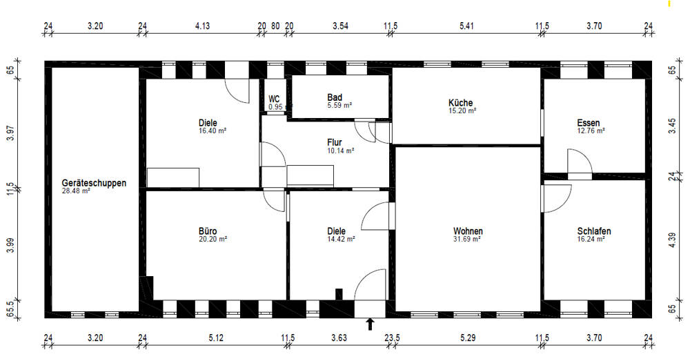
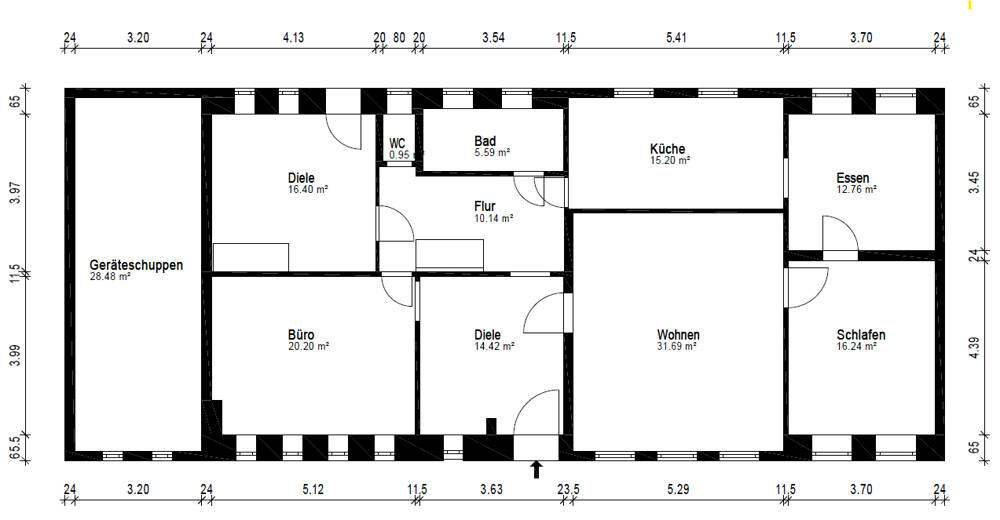
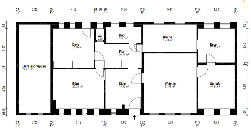
Objekt-Nr. 100-322-7BauweiseBaujahr ca. 1867, Bauweise massiv, Dacheindeckung mit Reet als Krüppelwalmdach, die Eingangstüren und Fenster sind aus Kunststoff und isolierverglast.HeizungGaszentralheizung mit Warmwasserbereitung, Baujahr 2023Grundstück3.931,00 m² großes Gartengrundstück, umgeben von Bäumen, Hecken und Rasenflächen. Das Grundstück ist voll erschlossen und an die Kanalisation angeschlossen.EnergieausweisEnergieausweis: BedarfsausweisEndenergiebedarf: 452,2 kWh/(m²*a)Wesentl. Energieträger: GasEnergieeffizienzklasse: HEnergieausweis gültig bis: 11.07.2035Baujahr lt. Energieausweis: 1867Ähnliche Angebote
So funktioniert es
- Alle neuen Anzeigen matchen wir kostenlos mit Deinen Suchparametern.
- Passende Angebote senden wir Dir in einer E-Mail pro Tag.
- Du kannst auch verschiedene Suchen anlegen und Dich jederzeit abmelden. Mehr dazu




