Objektdaten
Objektbeschreibung
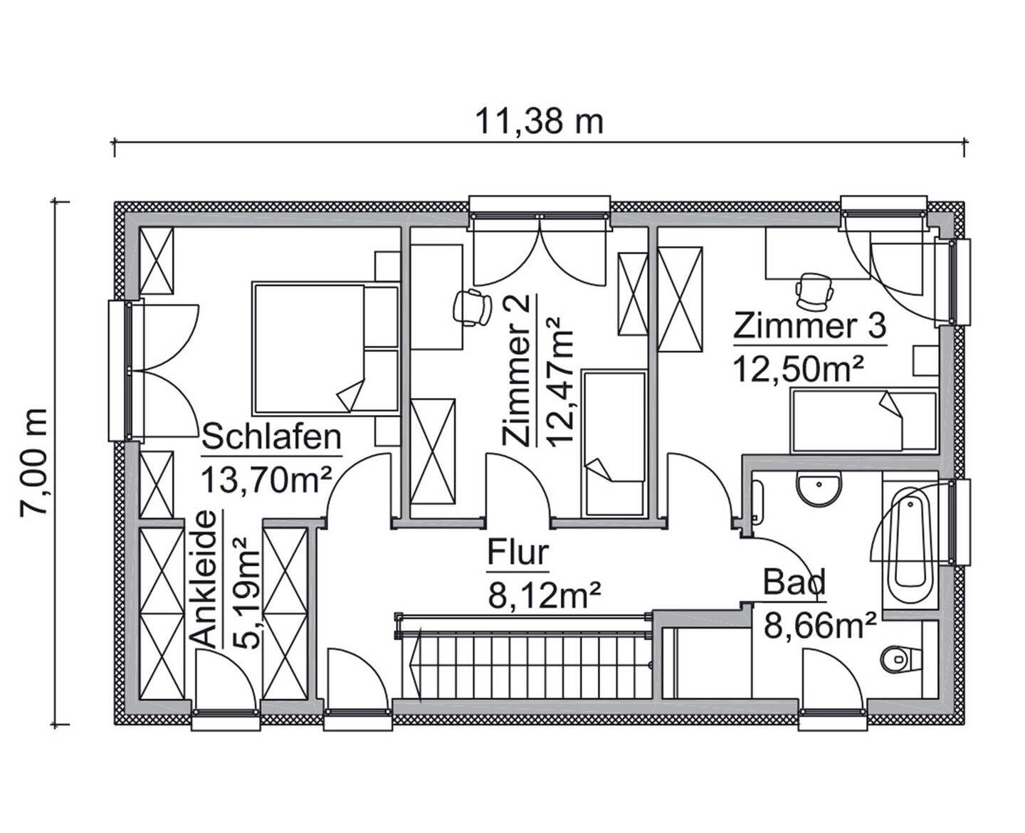
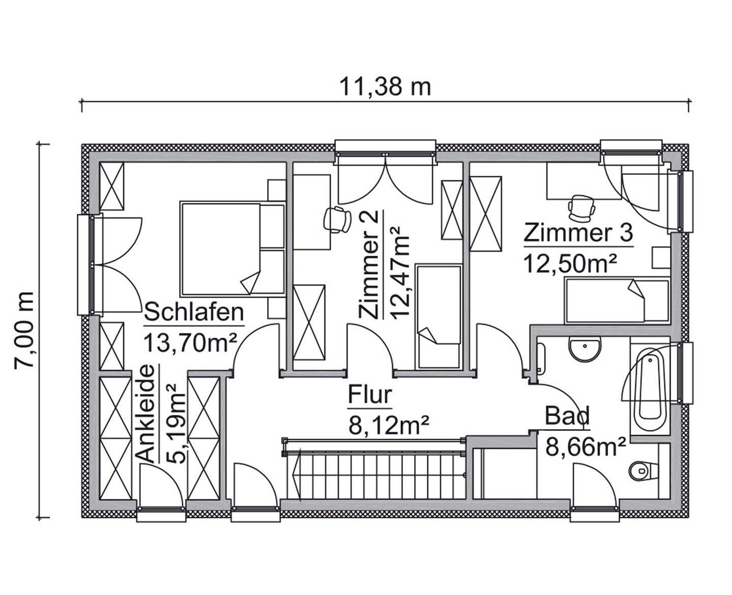
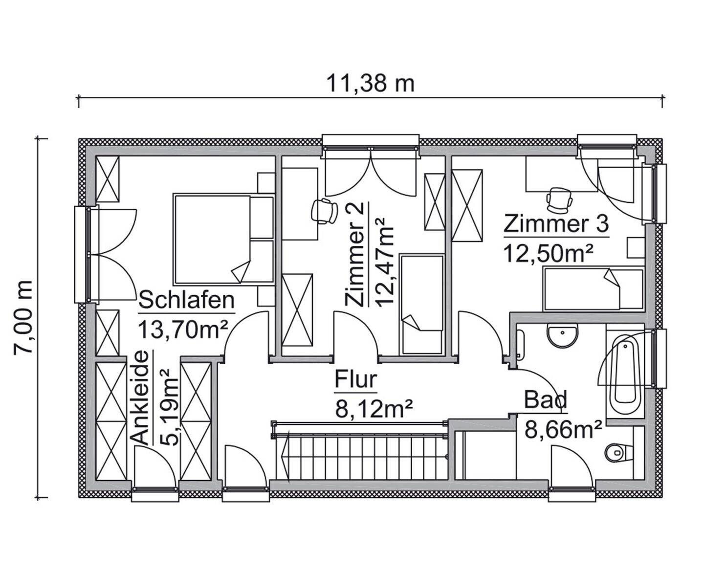
Das SH 127 S mit Satteldach zeigt sich interessant in seiner Hausbreite. Und so eignet sich die Variante für besonders schmal geschnittene Grundstücke. Die geradläufige, platzsparende Treppe sorgt für einen modernen Akzent im Innern des Hauses. Auffallend ist hier das sehr offene Wohnkonzept im Erdgeschoss - freie Blicke garantiert.Ähnliche Angebote
So funktioniert es
- Alle neuen Anzeigen matchen wir kostenlos mit Deinen Suchparametern.
- Passende Angebote senden wir Dir in einer E-Mail pro Tag.
- Du kannst auch verschiedene Suchen anlegen und Dich jederzeit abmelden. Mehr dazu




