Objektdaten
Objektbeschreibung
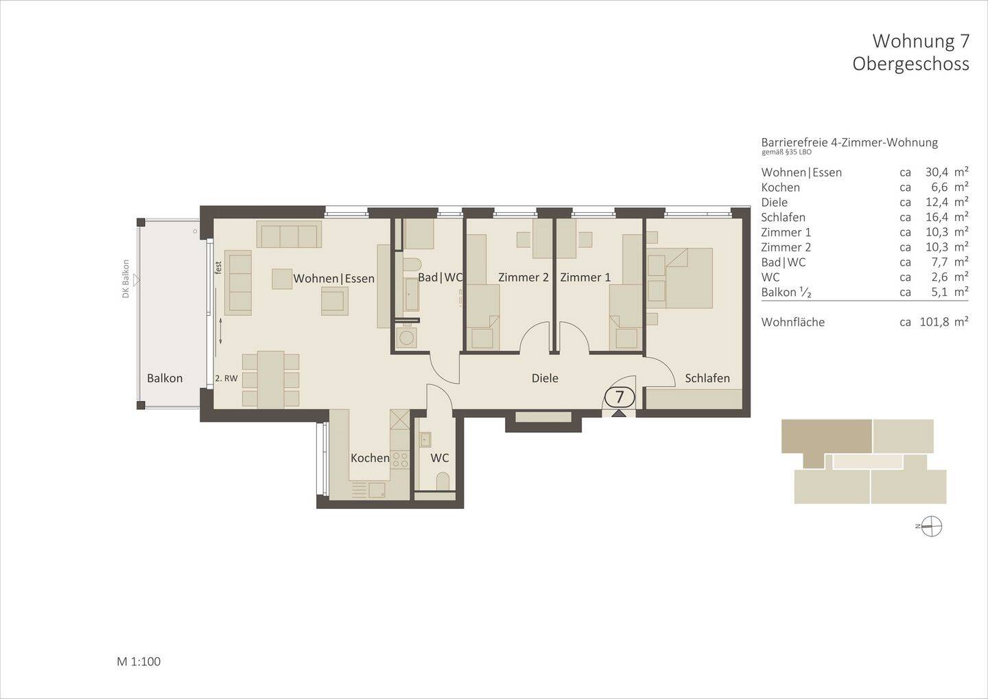
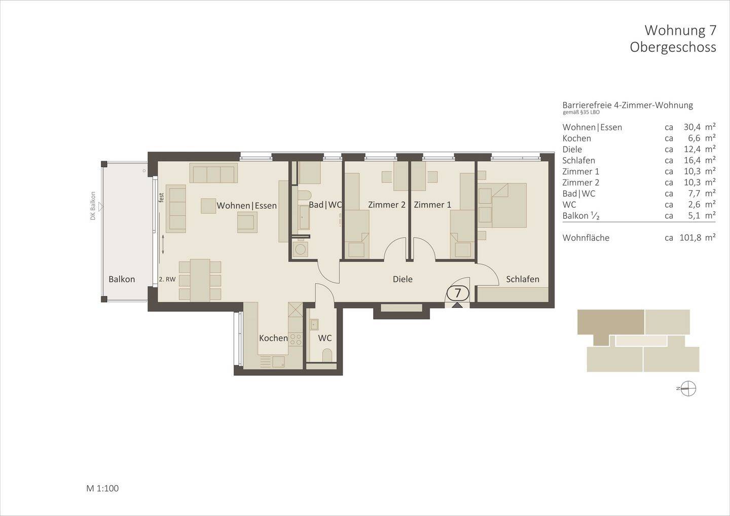
- Barrierefreie 4-Zimmer-Wohnung in Nordausrichtung- Gehobene Ausstattung mit Fußbodenheizung und hochwertigen Bodenbelägen- überdachter Balkon- Tiefgarage mit direktem Zugang zum Treppenhaus und Aufzug- Hausmeisterservice- KfW-55-Standard- Zentralheizung mit Wärmepumpe und Erdsonden (Geothermie)- sehr guter Wärmedämm-StandardSo funktioniert es
- Alle neuen Anzeigen matchen wir kostenlos mit Deinen Suchparametern.
- Passende Angebote senden wir Dir in einer E-Mail pro Tag.
- Du kannst auch verschiedene Suchen anlegen und Dich jederzeit abmelden. Mehr dazu




