Kaufpreis 425.000 €
Zimmer 4
Größe 113 m²
16356 Werneuchen
Objektdaten
Veröffentlicht am: 5. August 2025
Energieausweis: Liegt bei der Besichtigung vor
Danke! Bitte bestätige Deine E-Mail-Adresse – wir haben Dir soeben eine Mail geschickt.
Es gab ein Problem beim Absenden. Bitte versuche es erneut.
Bitte bestätige Deine E-Mail-Adresse, um Updates zu erhalten.
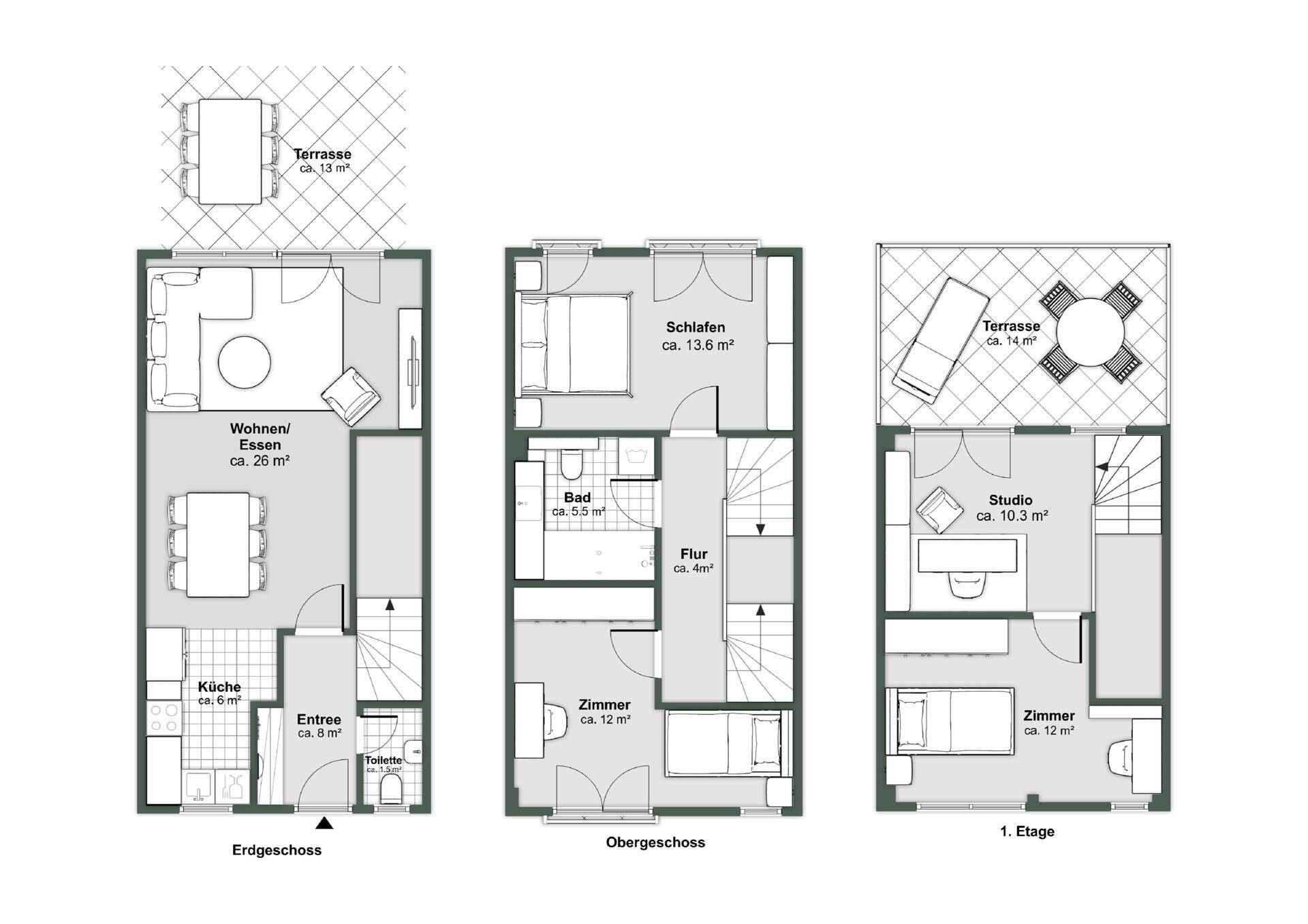
Objektbeschreibung
DAS HAUS IST FERTIG UND BEZUGSBEREITDas Reihenhaus beeindruckt durch eine offene und großzügige Raumgestaltung, die viel Raum für Ihre individuellen Ideen lässt. Der Grundriss im Erdgeschoss, geprägt von einem großzügigen Wohnbereich, bildet das Zentrum des Familienlebens. Bodentiefe Fenster und Türen sorgen für ein helles und einladendes Ambiente und ermöglichen einen direkten Zugang zur Terrasse und zum Garten, wo das Familienleben im Grünen genossen werden kann.Im Obergeschoss erwarten Sie zwei geräumige Zimmer sowie das Familienbad. Dieses ist je nach Haus mit einer Dusche oder einer Badewanne ausgestattet und vom Flur aus zugänglich.Im Dachgeschoss erwartet Sie nicht nur ein weiteres großes Zimmer und ein offenes Studio mit Raum für einen Home-Office Platz, sondern auch eine atemberaubende Dachterrasse, die ausreichend Platz für gemütliche Stunden im Freien bietet - perfekt, um den Abend bei einem Glas Wein ausklingen zu lassen oder die Sonne zu genießen.Vor dem Haus befindet sich ein Stellplatz für Ihr Fahrzeug, und zusätzliche Parkmöglichkeiten stehen innerhalb der Siedlung zur Verfügung.
So funktioniert es
- Alle neuen Anzeigen matchen wir kostenlos mit Deinen Suchparametern.
- Passende Angebote senden wir Dir in einer E-Mail pro Tag.
- Du kannst auch verschiedene Suchen anlegen und Dich jederzeit abmelden. Mehr dazu
Wir haben soeben eine E-Mail mit Deinem Suchauftrag an Dich geschickt. – Klicke in dieser Mail auf den Bestätigungslink und schon geht's los. Prüfe ggf. auch Deinen Spamordner.
Es gab ein Problem beim Absenden Deiner E-Mail-Adresse. Bitte versuche es erneut.
WARNUNG: Bitte bestätige Deine E-Mail-Adresse, um regelmäßige Updates zu erhalten.