Kaufpreis 250.000 €
Zimmer 3
Größe 72 m²
16761 Hennigsdorf
Objektdaten
Veröffentlicht am: 8. August 2025
Baujahr: 1996
Energieausweis: Liegt bei der Besichtigung vor
Danke! Bitte bestätige Deine E-Mail-Adresse – wir haben Dir soeben eine Mail geschickt.
Es gab ein Problem beim Absenden. Bitte versuche es erneut.
Bitte bestätige Deine E-Mail-Adresse, um Updates zu erhalten.
Objektbeschreibung
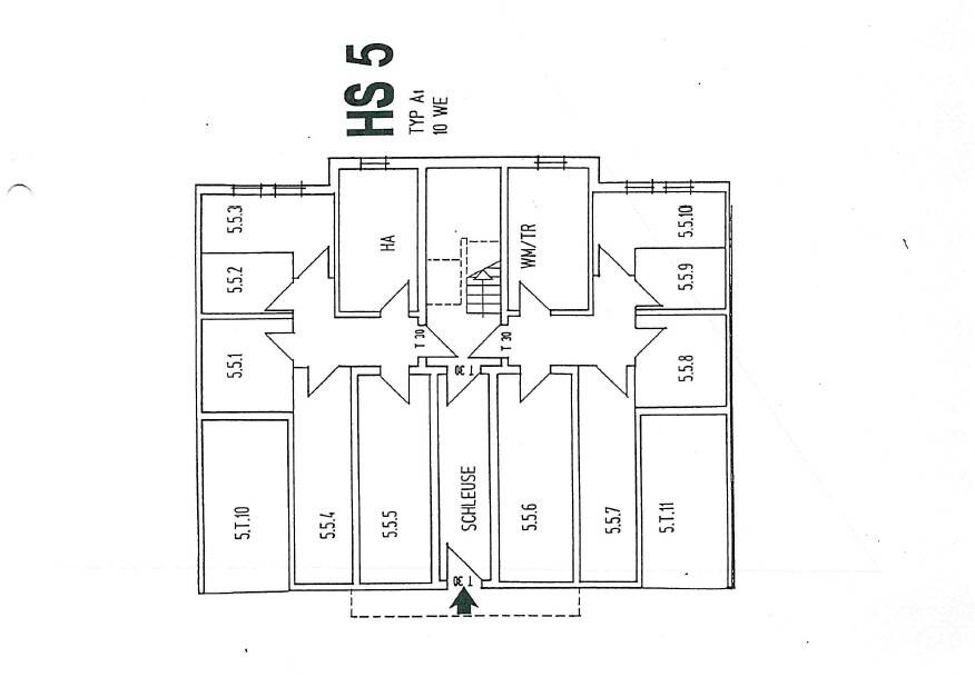
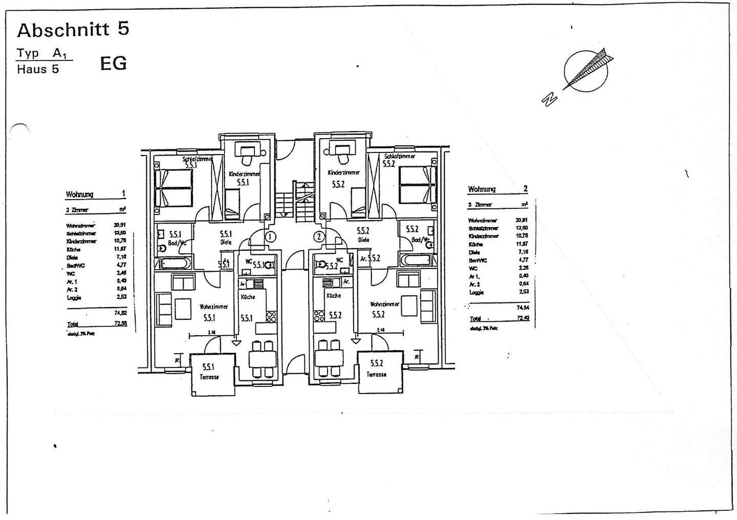
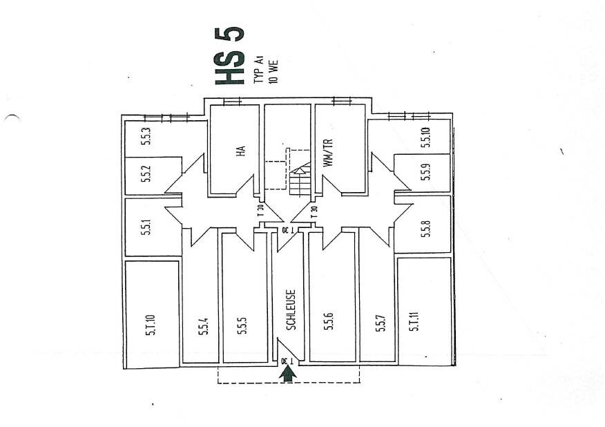
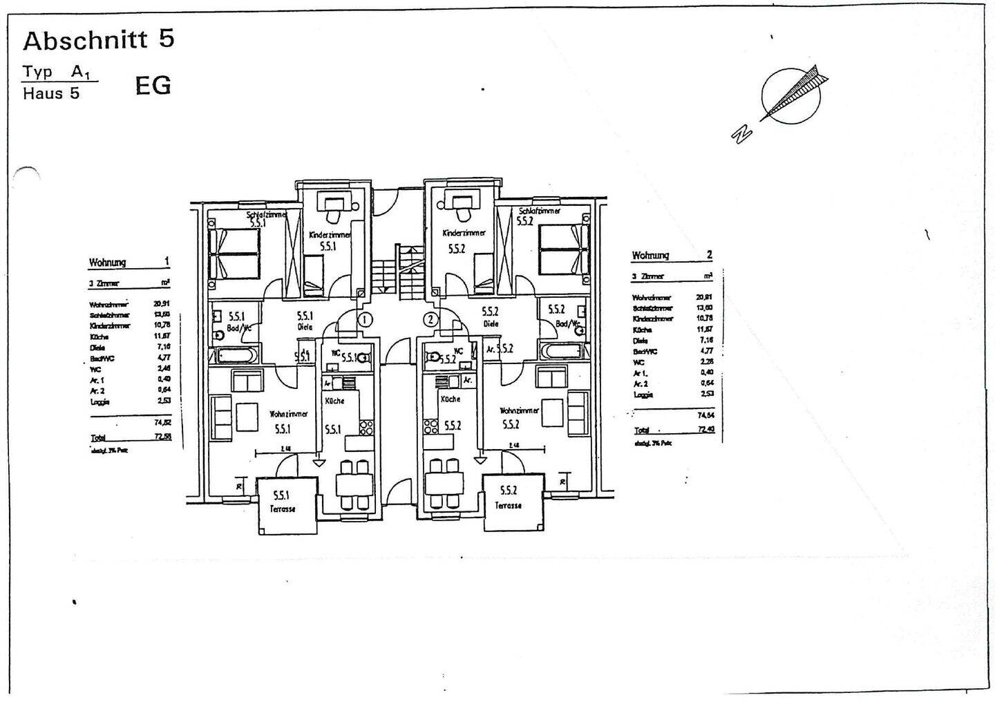
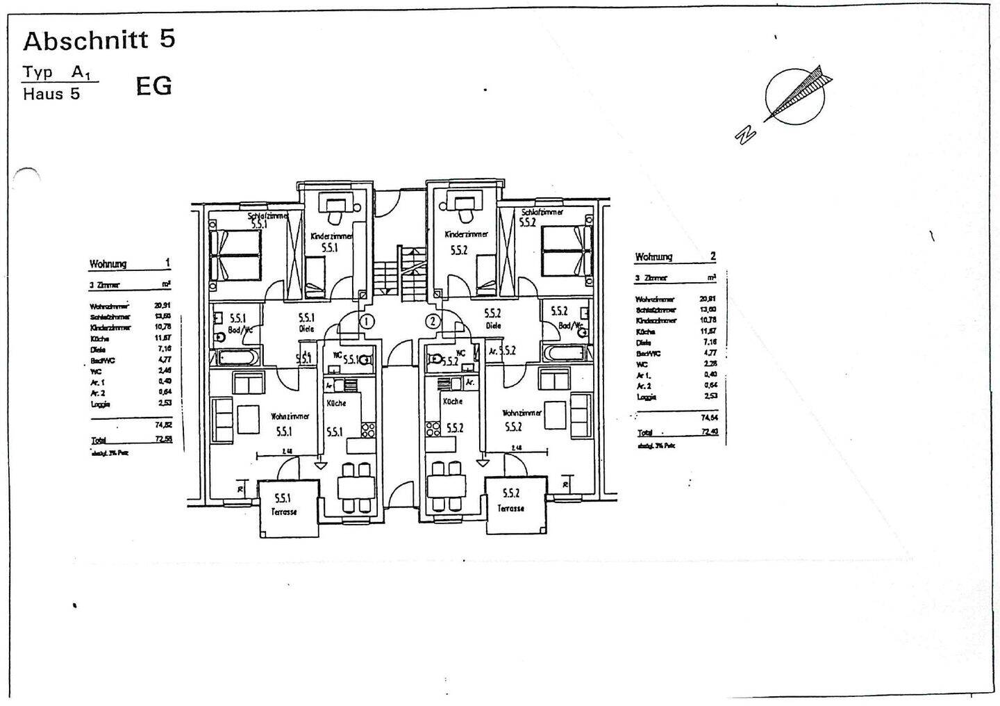
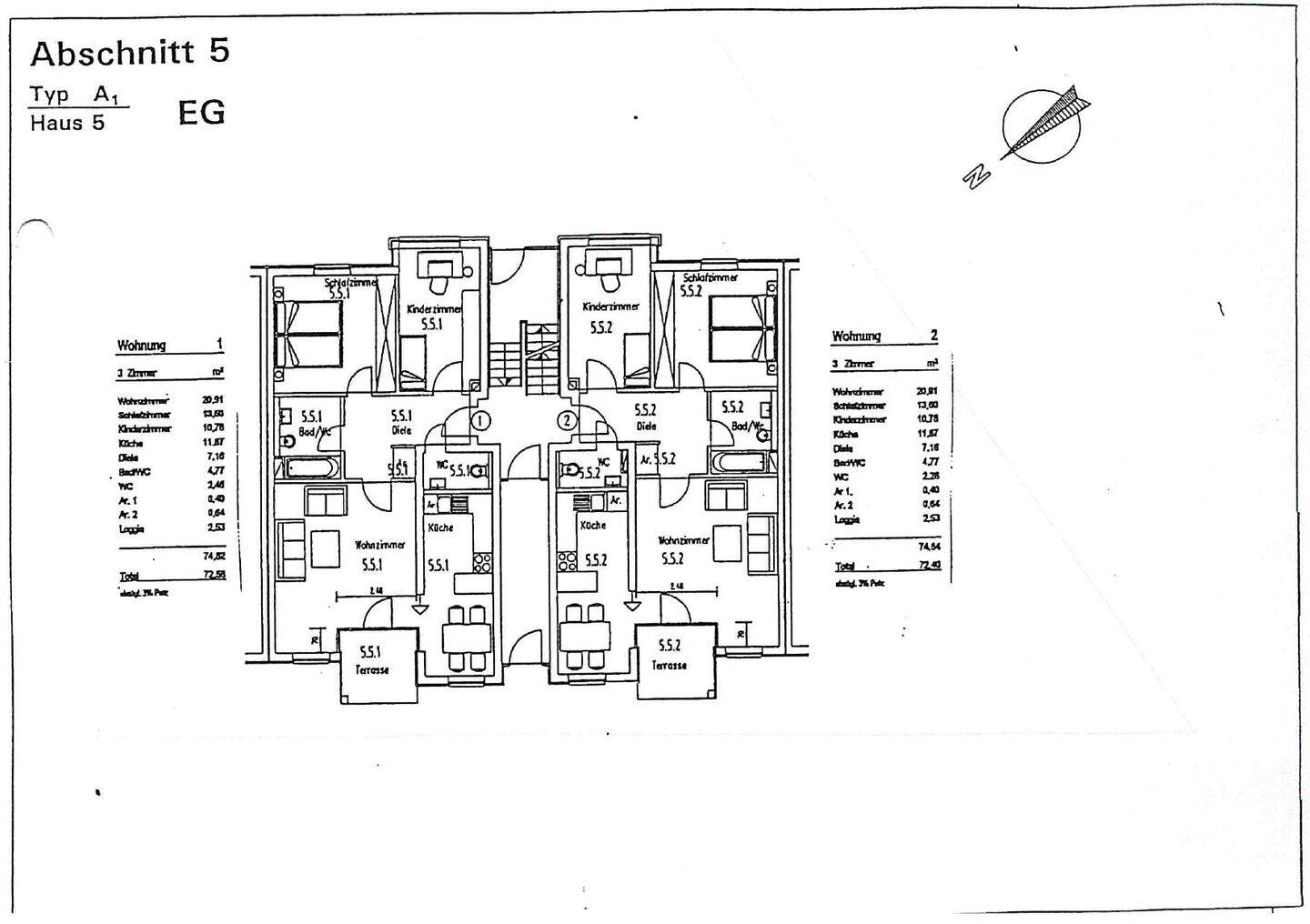
3 Zi.-Eigentumswohnung im Erdgeschoss mit Tiefgaragenstellplatz und Gartenanteil - 686Youtubevideohttps://www.youtube.com/shorts/7kQFXdkRE90Objektnummer 686Standort 16761 HennigsdorfBaujahr 1996Wohnraum 72,58 m²Zimmer 3Balkone 1Garagen 1Energieausweis VerbrauchsausweisEnergieeffizienzklasse CEnergieverbrauchskennwert 91,00kWhm² aEnergieverbrauch für Warmwasser enthaltenPreis 250000 €Provision Die Käuferprovision beträgt 2,38% inkl. 19% gesetzlicher MwSt..16761 HennigsdorfBV Nieder Neuendorf, Havelpromenade3 Zi.-Eigentumswohnung im Erdgeschoss mit Tiefgaragenstellplatz und Gartenanteil - 686Die Käuferprovision beträgt 2,38% inkl. 19% gesetzlicher MwSt.. Der Makler „Immobilien Hasler“ ist ebenso für den Vertragspartner (Verkäufer) provisionspflichtig tätig.Verbrauchsenergieausweis, 91,00kWh, Klasse CHeizung/Warmwasser:Nah- und Fernwärme-ZentralheizungBaujahr-Heizung: ca. 1996Baujahr-Haus: ca. 1996Teilungserklärung: 1994TiefgaragenstellplatzKellerWohnfläche: ca. 72,58m²Gesamtmiete: Wohnung und TGab dem 01.02.2026Grundmiete für die Wohnung von € 715,00 netto auf € 773,32 netto monatlich erhöhtHinzu kommen die Garagenmiete von € 43,00 monatlich und Betriebskostenvorauszahlungen von € 195,00 monatlich, so dass sich die Bruttomiete ab dem 01.02.2026 auf € 1.011,32 beläuft. Diese wurde von den Mietern anerkannt.zur Wohnung gehört ein GartenanteilEtage: Erdgeschoss3 ZimmerHausgeld Eigentümer pro Monat 357€Raumaufteilung – bei den Maßen handelt es sich um circa Maße vom PlanWohnzimmer 20,91m², Schlafzimmer 13,68m², Kinderzimmer 10,76m² Küche 11,57m², Diele 7,16m², Bad/WC 4,77m² AR.1 0,60m², AR.2 0,64m², Loggia 2,53m²Vermietet seit 01.08.2019 - Kaution: 1.890€
So funktioniert es
- Alle neuen Anzeigen matchen wir kostenlos mit Deinen Suchparametern.
- Passende Angebote senden wir Dir in einer E-Mail pro Tag.
- Du kannst auch verschiedene Suchen anlegen und Dich jederzeit abmelden. Mehr dazu
Wir haben soeben eine E-Mail mit Deinem Suchauftrag an Dich geschickt. – Klicke in dieser Mail auf den Bestätigungslink und schon geht's los. Prüfe ggf. auch Deinen Spamordner.
Es gab ein Problem beim Absenden Deiner E-Mail-Adresse. Bitte versuche es erneut.
WARNUNG: Bitte bestätige Deine E-Mail-Adresse, um regelmäßige Updates zu erhalten.