Objektdaten
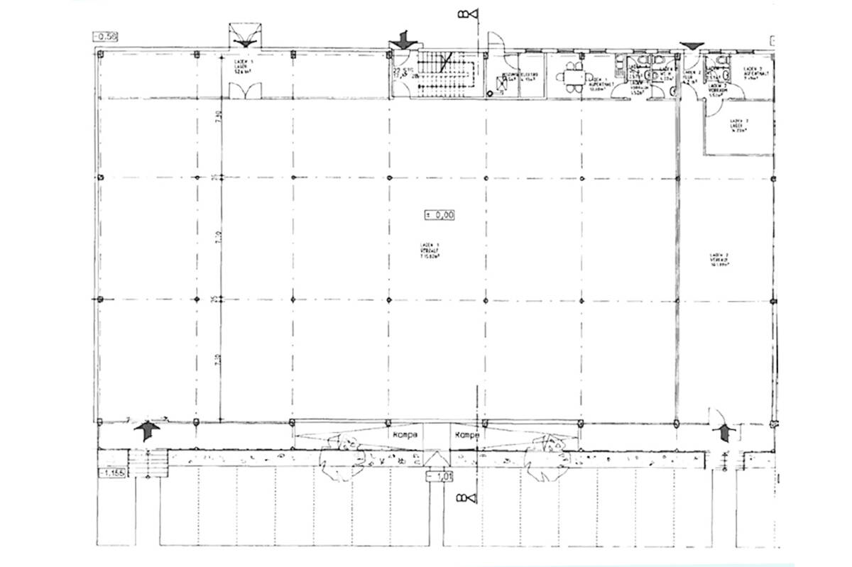
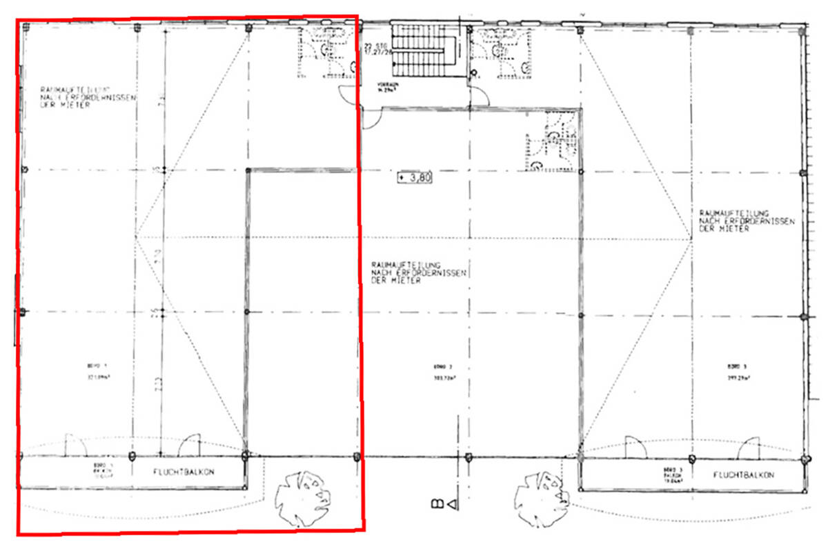
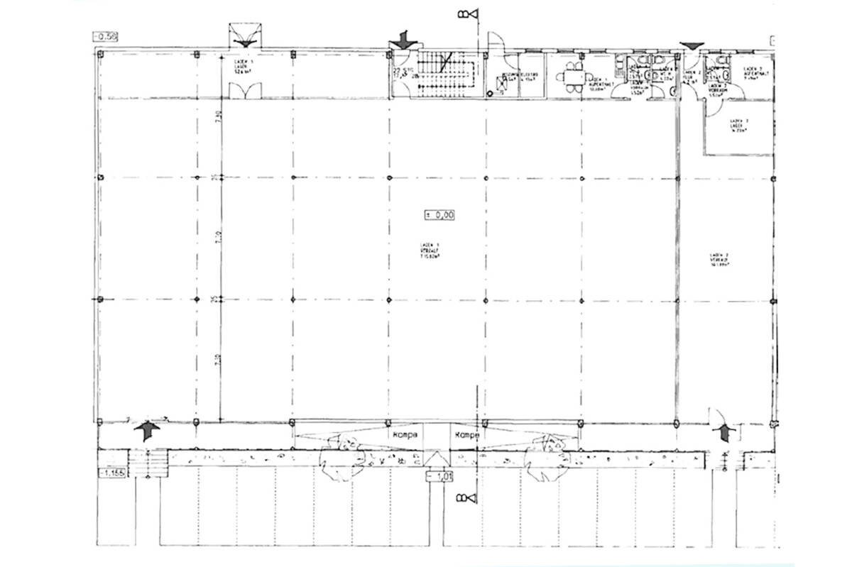
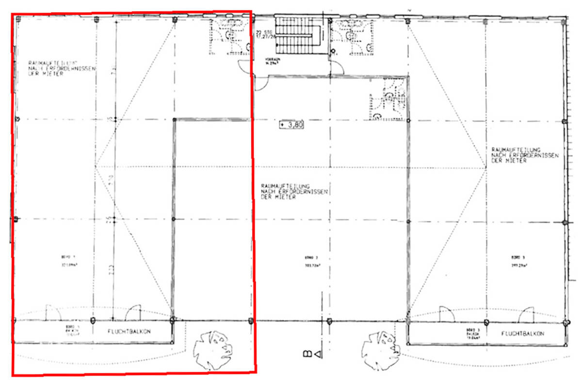
Objektbeschreibung
Die derzeitigen Mieter sind folgenden Geschäftsfeldern zuzuordnen:- 1 internationale Modemarktkette- 1 deutschlandweit renommierter Spielwaren- und Babyfachmarkt- 1 Sportverein- 1 Restaurant- 1 SteuerbüroAuf einigen Dachabschnitten befinden sich PV-Module, die den erzeugten Strom voll einspeisen.Ausführliche Informationen zu den aktuellen Mietverhältnissen, erhalten Sie gerne nach persönlicher Kontaktaufnahme.So funktioniert es
- Alle neuen Anzeigen matchen wir kostenlos mit Deinen Suchparametern.
- Passende Angebote senden wir Dir in einer E-Mail pro Tag.
- Du kannst auch verschiedene Suchen anlegen und Dich jederzeit abmelden. Mehr dazu




