Objektdaten
Objektbeschreibung
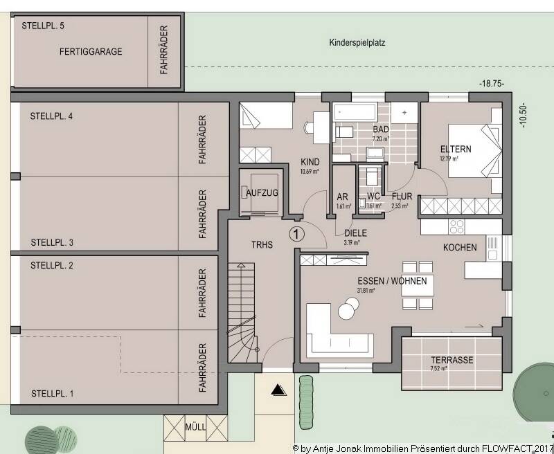
Die modernen 2,5 und 3,5 Zimmer-Neubau- Wohnungen werden in solider Massivbauweise, schlüsselfertig inkl. Maler-Tapezier und Fliesenarbeiten jeodch ohne Bodenbelagsarbeiten in einem modernen 5 Familienhaus erstellt .Die Wohnungen entsprechen dem Gebäudeenergiegesetz ( GEG ) = KFW 55So funktioniert es
- Alle neuen Anzeigen matchen wir kostenlos mit Deinen Suchparametern.
- Passende Angebote senden wir Dir in einer E-Mail pro Tag.
- Du kannst auch verschiedene Suchen anlegen und Dich jederzeit abmelden. Mehr dazu




