Kaufpreis 1.224.500 €
Zimmer 6
Größe 170 m²
16548 Glienicke/Nordbahn
Objektdaten
Veröffentlicht am: 13. August 2025
Energieausweis: Liegt bei der Besichtigung vor
Danke! Bitte bestätige Deine E-Mail-Adresse – wir haben Dir soeben eine Mail geschickt.
Es gab ein Problem beim Absenden. Bitte versuche es erneut.
Bitte bestätige Deine E-Mail-Adresse, um Updates zu erhalten.
Objektbeschreibung
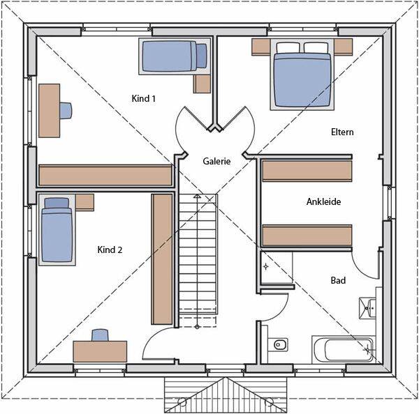
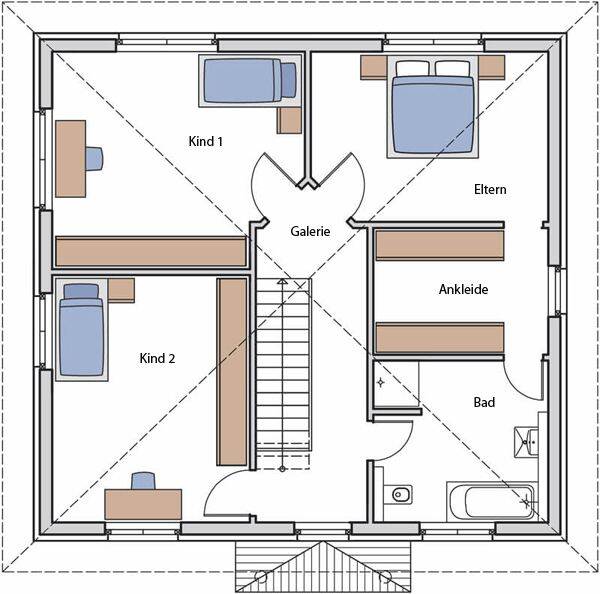
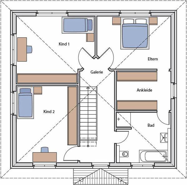
Angeboten wird eine Stadtvilla, mit durchdachtem Grundriss in bewährter Aye-Bau-Qualität.Eine geradlienige Fassade, geschmückt durch ein Vordach. So empfängt Sie die Villa Westend.Sie treten ein und fühlen sich zu Hause. Rechts erwartet Sie das Arbeitszimmer, links das Gäste-WC und der großzügige Hauswirtschaftsraum, der jede Menge Stauraum bietet. Unter der geraden, massiven Holztreppe befindet sich Ihre Garderobe. Am Ende der Diele eröffnet sich Ihnen der geräumige und durch seine bodentiefen Fensterelemente sehr helle Wohn- und Essbereich. Auf seiner linken Seite schließt sich die offene Küche an.Im 1. Obergeschoss erwartet Sie die optimale Raumaufteilung. Es gibt keinen Streit bei ihren Kindern, denn sie bekommen jeweils ein fast 20 m² großes Zimmer. Für Sie steht ein modernes Schlafzimmer bereit, mit separater Ankleide und direktem Zugang zum Badezimmer. Die Kinder gelangen über die Galerie zum Badezimmer.Eine Anpassung der Räume den Wünschen des Käufers entsprechend ist noch möglich.Das angebotene Haus besitz einen Keller inkl. Fußbodenheizung.
So funktioniert es
- Alle neuen Anzeigen matchen wir kostenlos mit Deinen Suchparametern.
- Passende Angebote senden wir Dir in einer E-Mail pro Tag.
- Du kannst auch verschiedene Suchen anlegen und Dich jederzeit abmelden. Mehr dazu
Wir haben soeben eine E-Mail mit Deinem Suchauftrag an Dich geschickt. – Klicke in dieser Mail auf den Bestätigungslink und schon geht's los. Prüfe ggf. auch Deinen Spamordner.
Es gab ein Problem beim Absenden Deiner E-Mail-Adresse. Bitte versuche es erneut.
WARNUNG: Bitte bestätige Deine E-Mail-Adresse, um regelmäßige Updates zu erhalten.