Kaufpreis 550.000 €
Größe 203 m²
22941 Bargteheide
Objektdaten
Veröffentlicht am: 15. August 2025
Baujahr: 1900
Energieausweis: Liegt bei der Besichtigung vor
Danke! Bitte bestätige Deine E-Mail-Adresse – wir haben Dir soeben eine Mail geschickt.
Es gab ein Problem beim Absenden. Bitte versuche es erneut.
Bitte bestätige Deine E-Mail-Adresse, um Updates zu erhalten.
Objektbeschreibung
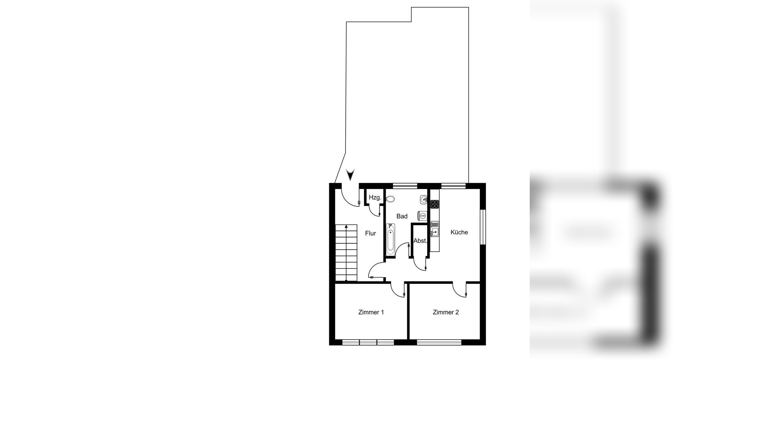
Dieses gepflegte Mehrfamilienhaus in gefragter Lage von Bargteheide umfasst drei voll vermietete Wohneinheiten mit jeweils ca. 60 - 80 m² Wohnfläche. Die kleine Kapitalanlage bietet Ihnen sofortige, stabile Einnahmen. Die monatliche Nettokaltmiete liegt bei 1.729 €, was einer Jahresnettokaltmiete von 20.748 € entspricht.Dank zuverlässiger Mieter genießen Sie eine sichere Rendite bei überschaubarem Verwaltungsaufwand.
So funktioniert es
- Alle neuen Anzeigen matchen wir kostenlos mit Deinen Suchparametern.
- Passende Angebote senden wir Dir in einer E-Mail pro Tag.
- Du kannst auch verschiedene Suchen anlegen und Dich jederzeit abmelden. Mehr dazu
Wir haben soeben eine E-Mail mit Deinem Suchauftrag an Dich geschickt. – Klicke in dieser Mail auf den Bestätigungslink und schon geht's los. Prüfe ggf. auch Deinen Spamordner.
Es gab ein Problem beim Absenden Deiner E-Mail-Adresse. Bitte versuche es erneut.
WARNUNG: Bitte bestätige Deine E-Mail-Adresse, um regelmäßige Updates zu erhalten.