Kaufpreis 369.000 €
Zimmer 5
Größe 106 m²
74613 Öhringen
Objektdaten
Veröffentlicht am: 15. August 2025
Baujahr: 1975
Energieausweis: Liegt bei der Besichtigung vor
Danke! Bitte bestätige Deine E-Mail-Adresse – wir haben Dir soeben eine Mail geschickt.
Es gab ein Problem beim Absenden. Bitte versuche es erneut.
Bitte bestätige Deine E-Mail-Adresse, um Updates zu erhalten.
Objektbeschreibung
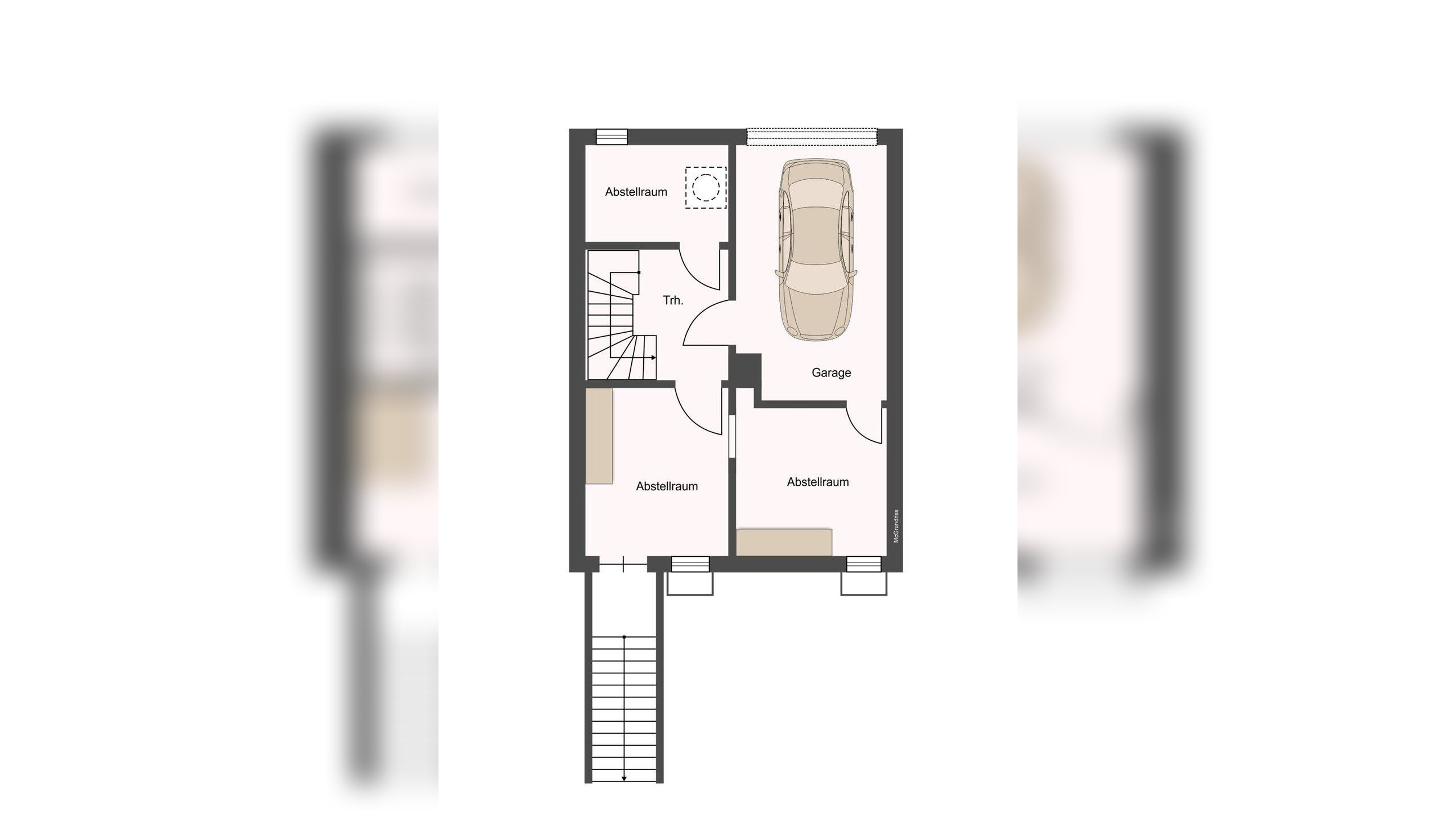
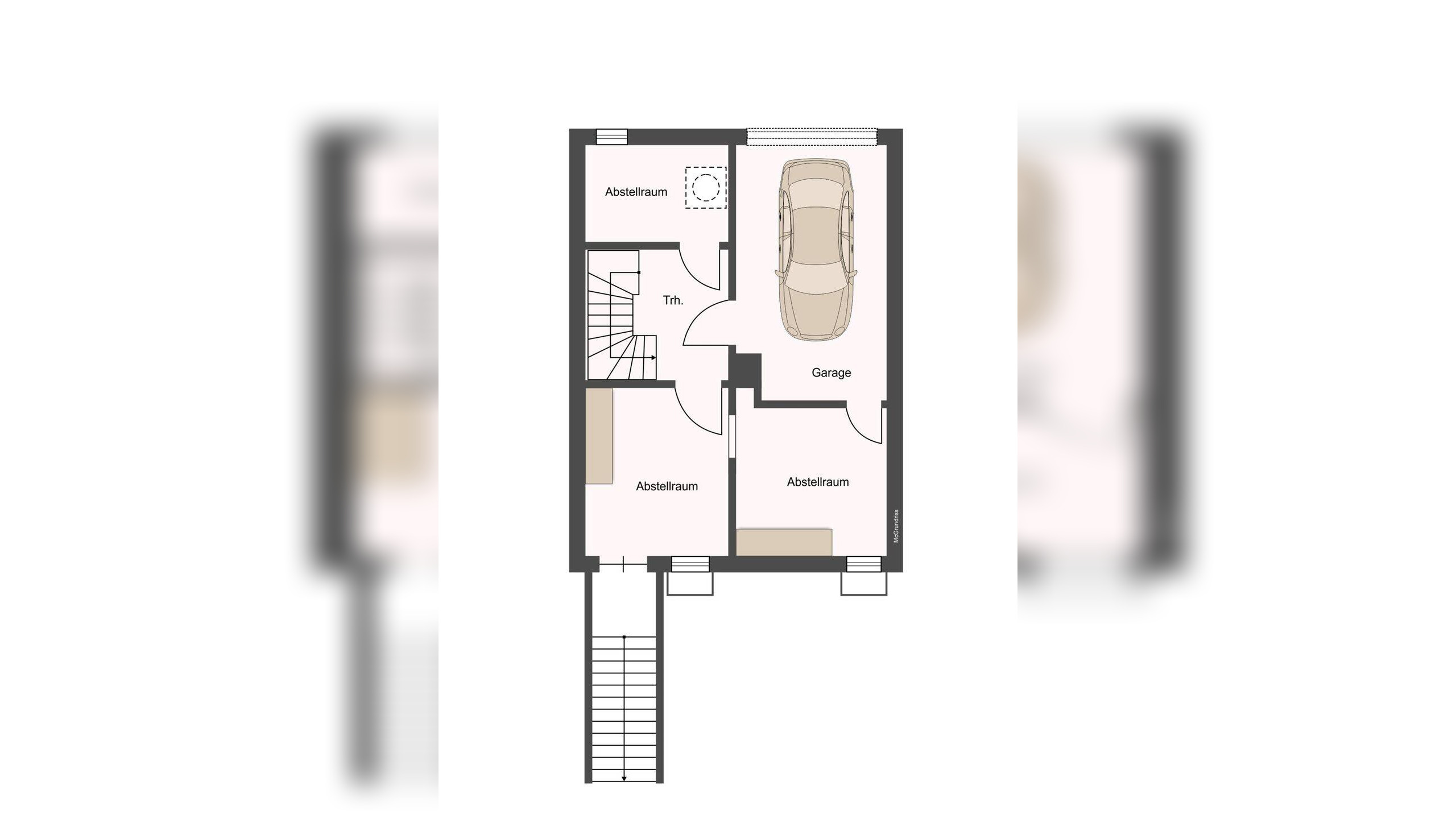
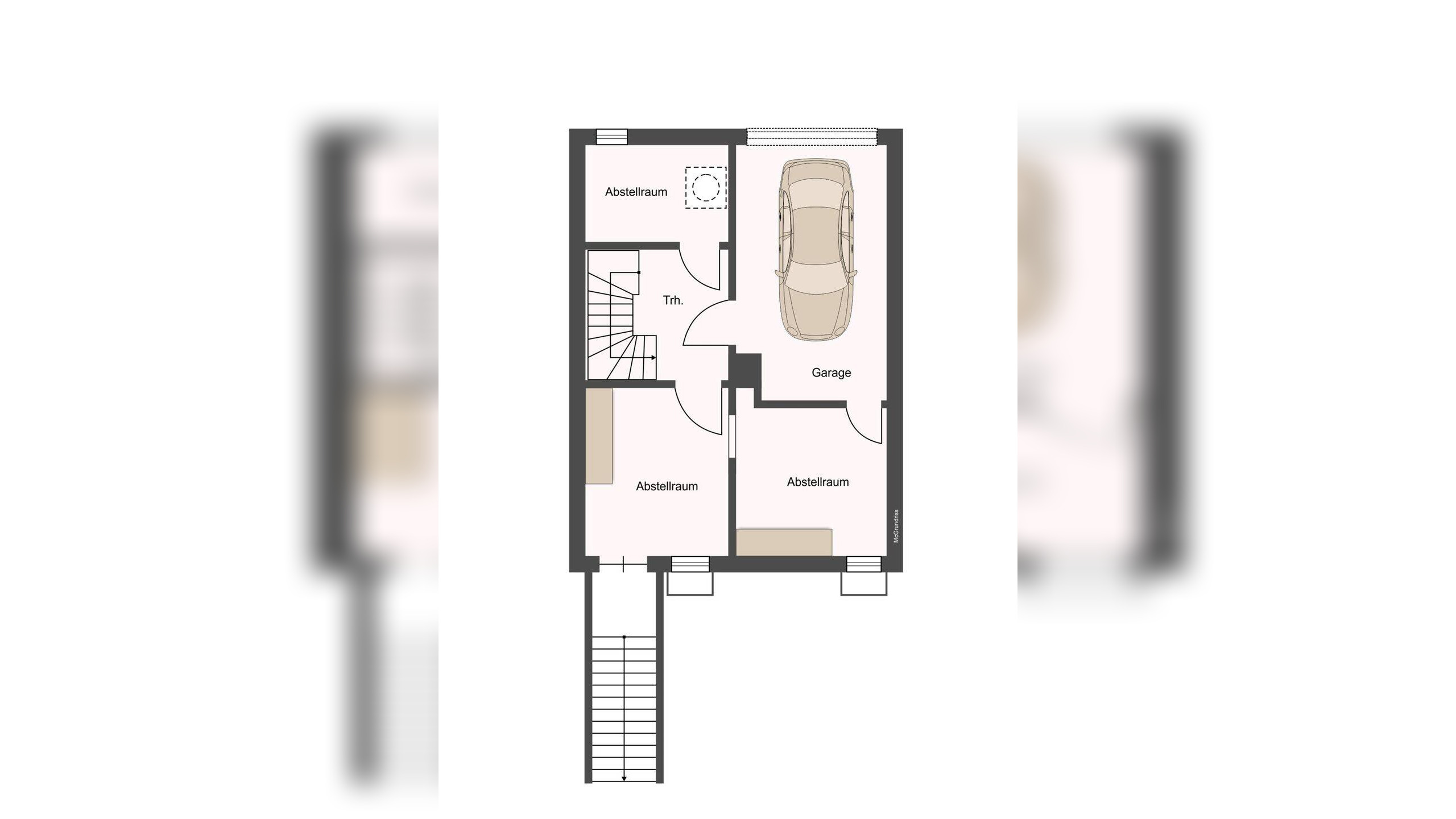
Willkommen in Ihrem neuen Familienzuhause!Dieses attraktive Reihenmittelhaus aus dem Jahr 1976 bietet auf ca. 107 m² Wohnfläche und durchdachter Raumaufteilung ein ideales Zuhause für Familien. Die Immobilie überzeugt durch ihren gepflegten Zustand, eine ruhige Lage und zahlreiche Gestaltungsmöglichkeiten. Derzeit ist das Haus vermietet, jedoch haben die Mieter bereits mit der Suche nach einer neuen Wohnung begonnen. Im Untergeschoss stehen Ihnen neben einer Einzelgarage eine kleine Waschküche sowie zwei praktische Kellerräume zur Verfügung - einer davon mit direktem Zugang zum Garten. Im Erdgeschoss empfängt Sie ein einladender Eingangsbereich inklusive Gäste-WC. Eine separate, einfache Küche sowie ein offener Wohn- und Essbereich mit Zugang zur sonnigen Terrasse und dem liebevoll angelegten Garten schaffen den perfekten Ort für gemeinsame Familienzeit und gemütliche Stunden im Grünen. Im Obergeschoss befinden sich drei Schlafzimmer, die sich ideal als Kinder-, Eltern oder Arbeitszimmer eignen. Ein Balkon sowie ein renovierungsbedürftiges Badezimmer ergänzen das Angebot auf dieser Etage. Die Wohnräume im Erd- und Obergeschoss sind mit Laminatboden ausgestattet. Das Dachgeschoss hält ein weiteres vielseitig nutzbares Zimmer, das mit Teppichboden ausgestattet ist und eine Loggia bereit. Beheizt wird das Reihenmittelhaus aktuell mit erneuerungsbedürftigen Nachtspeicheröfen. Diese gepflegte Immobilie bietet eine solide Basis für Familien, die sich den Traum vom eigenen zuhause in einer ruhigen, Wohnlage erfüllen möchten. Mit etwas gestalterischem Feinschliff können Sie hier ein wahres Wohlfühlzuhause schaffen.
So funktioniert es
- Alle neuen Anzeigen matchen wir kostenlos mit Deinen Suchparametern.
- Passende Angebote senden wir Dir in einer E-Mail pro Tag.
- Du kannst auch verschiedene Suchen anlegen und Dich jederzeit abmelden. Mehr dazu
Wir haben soeben eine E-Mail mit Deinem Suchauftrag an Dich geschickt. – Klicke in dieser Mail auf den Bestätigungslink und schon geht's los. Prüfe ggf. auch Deinen Spamordner.
Es gab ein Problem beim Absenden Deiner E-Mail-Adresse. Bitte versuche es erneut.
WARNUNG: Bitte bestätige Deine E-Mail-Adresse, um regelmäßige Updates zu erhalten.