Objektdaten
Objektbeschreibung
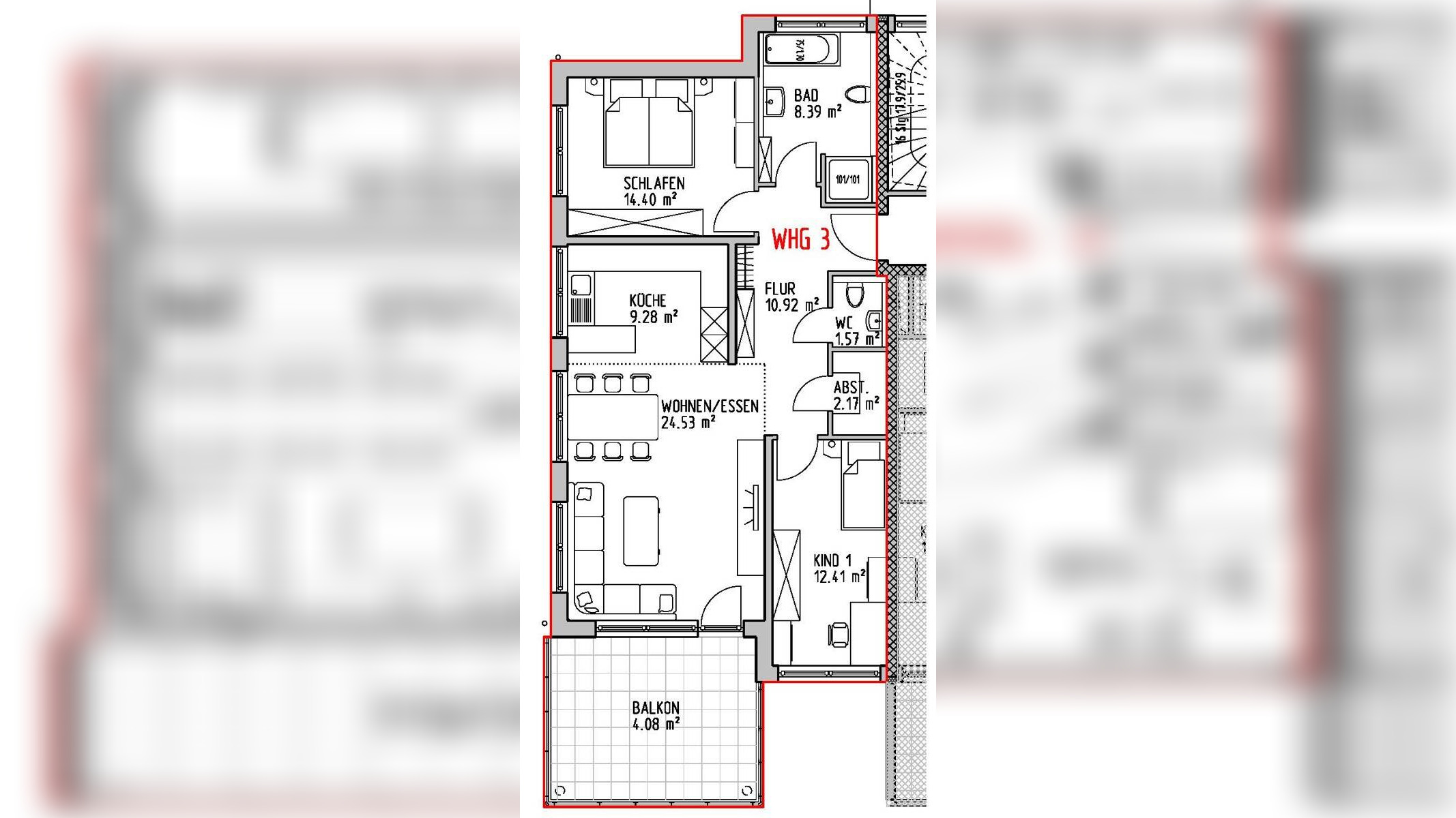
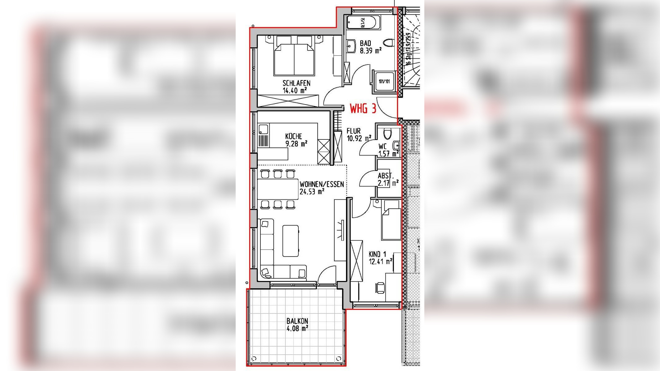
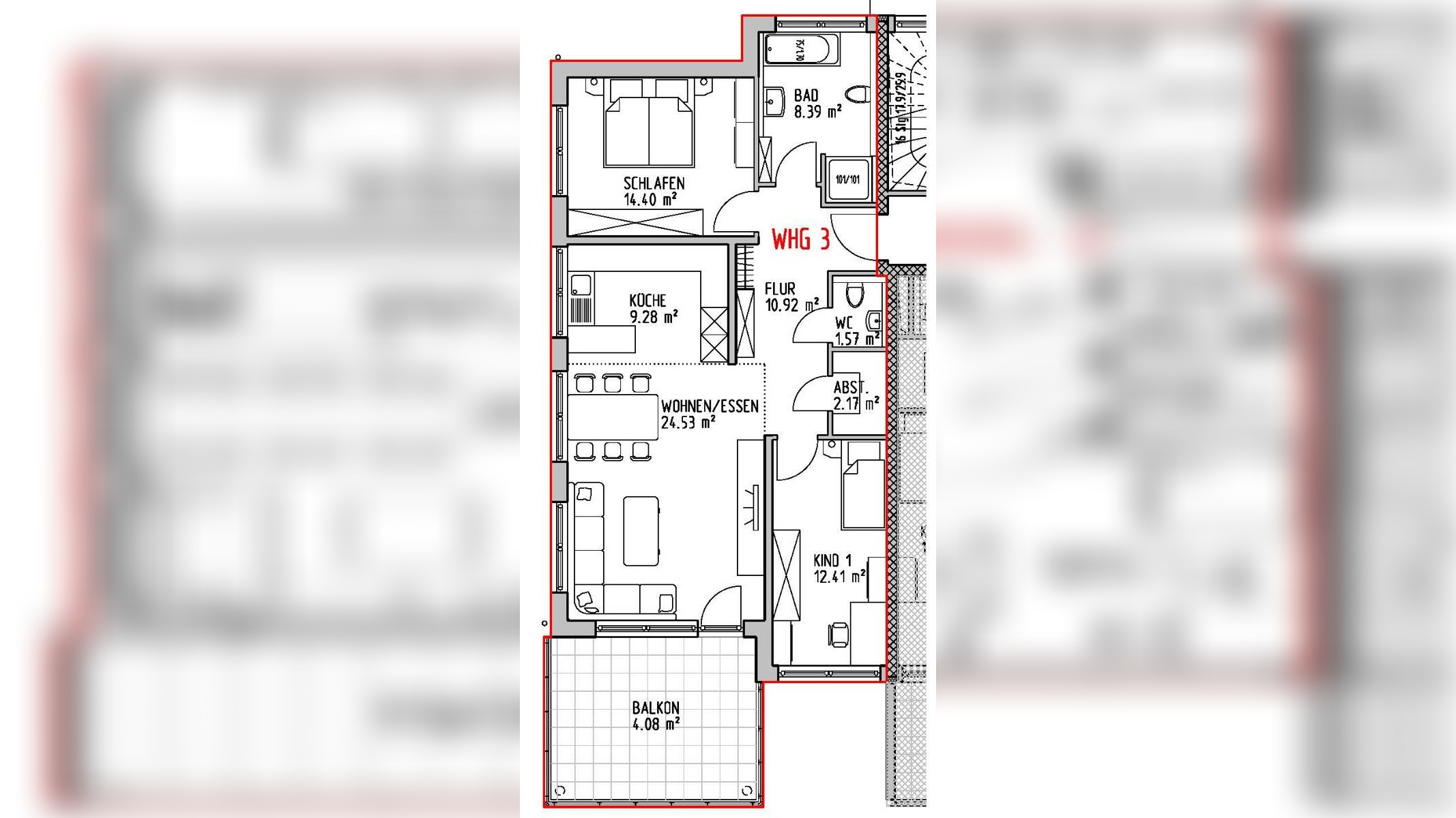
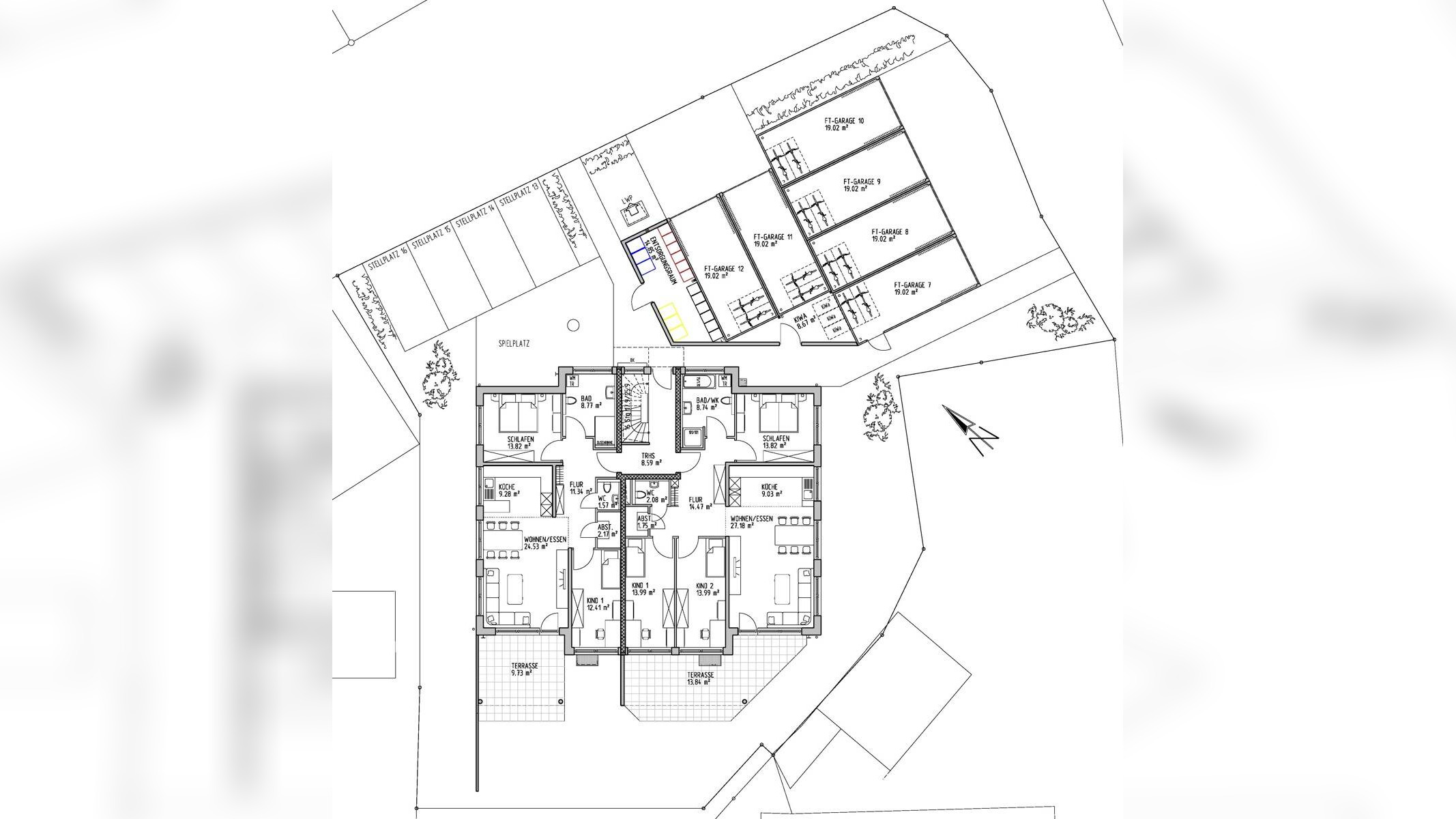
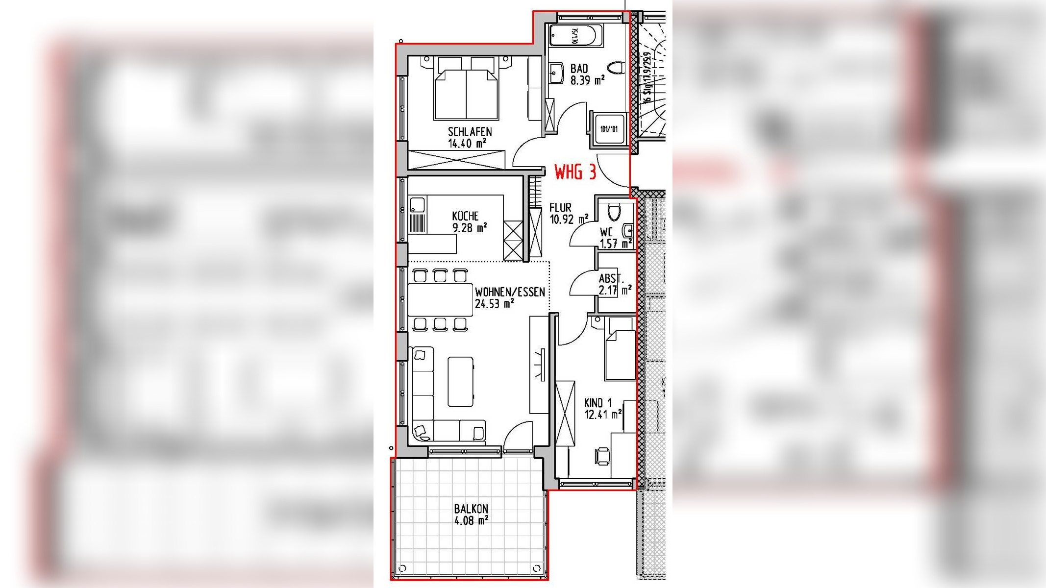
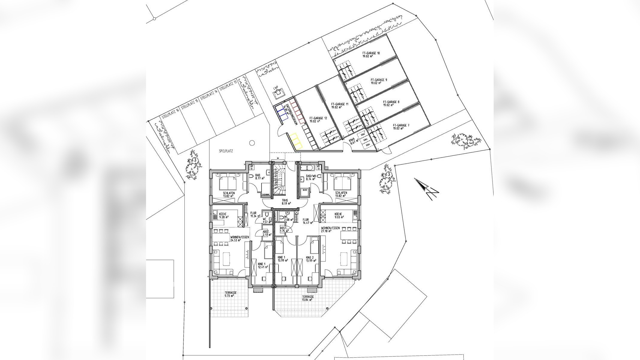
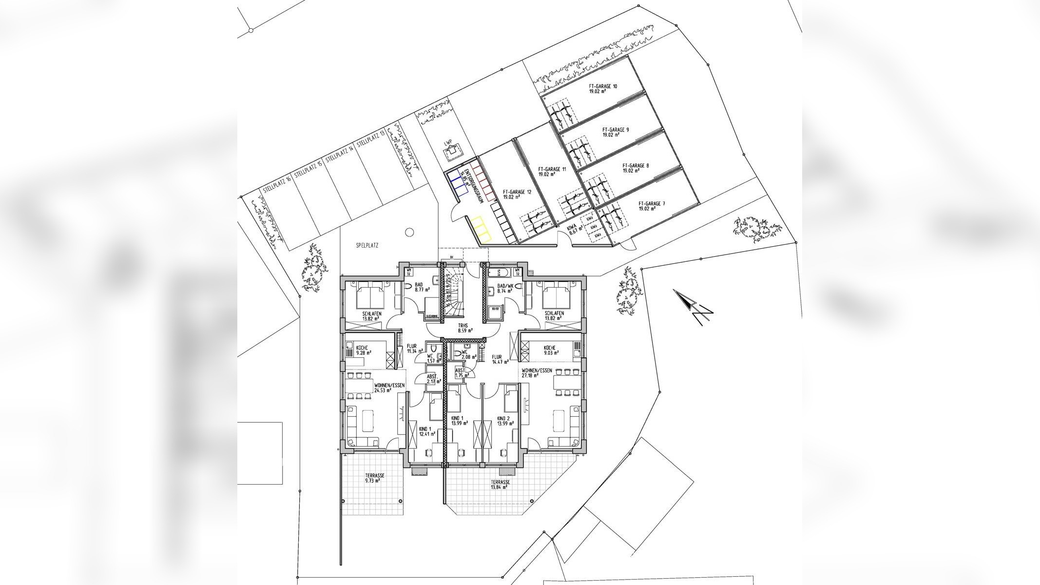
Hier sind sechs moderne Neubauwohnungen, im Herzen von Sechselberg entstanden. Das Gebäude ist in besonders energiesparender Bauweise erstellt und wird über eine Wärmepumpe beheizt.Eine Photovoltaikanlage reduziert die Stromkosten.Diese moderne 3-Zimmerwohnung befindet sich im 1. Obergeschoss und verfügt über einen großzügig geschnittenen Süd-West-Balkon. Die Wohnung befindet sich im Endausbau und kann in kürze fertiggestellt werden.So funktioniert es
- Alle neuen Anzeigen matchen wir kostenlos mit Deinen Suchparametern.
- Passende Angebote senden wir Dir in einer E-Mail pro Tag.
- Du kannst auch verschiedene Suchen anlegen und Dich jederzeit abmelden. Mehr dazu

