Objektdaten
Objektbeschreibung
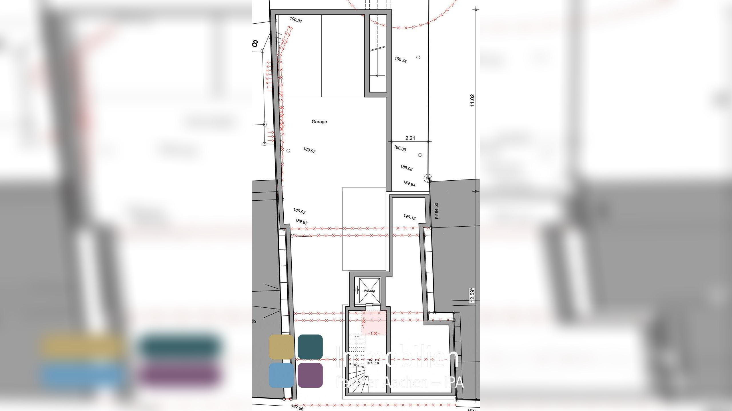
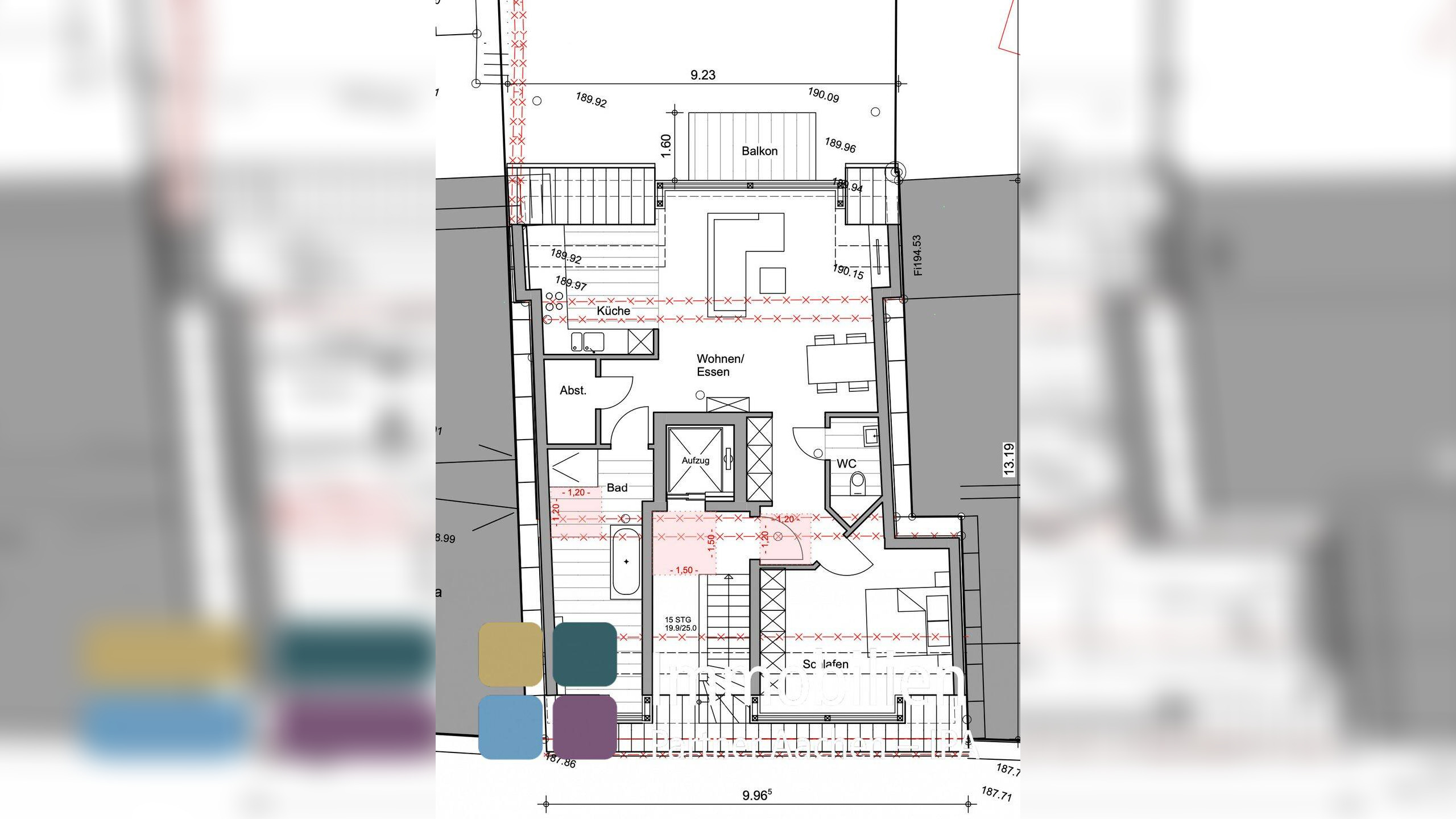
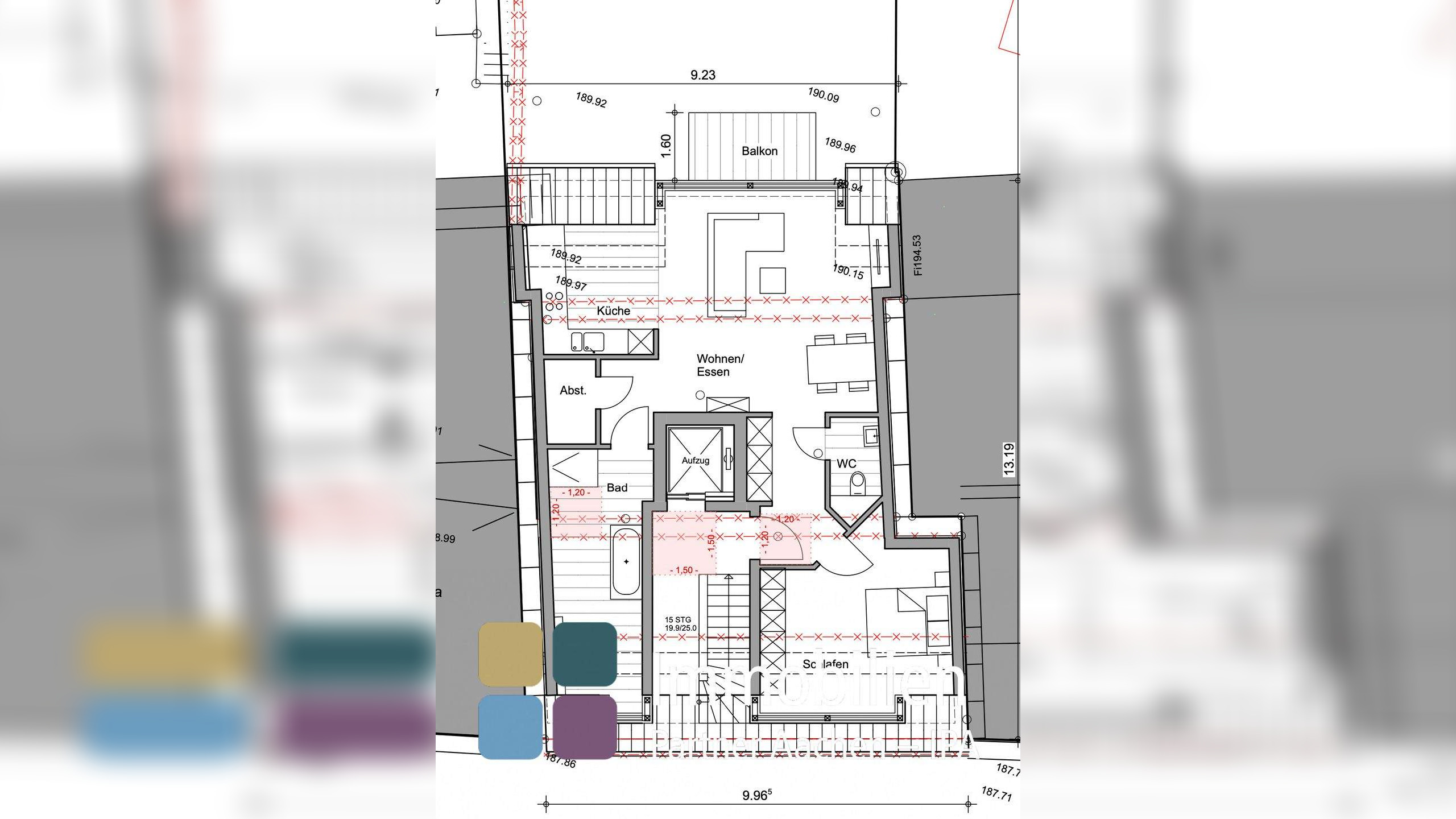
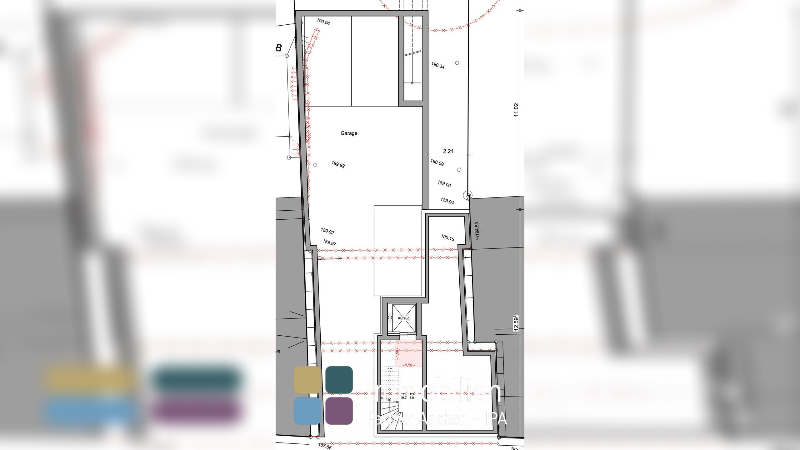
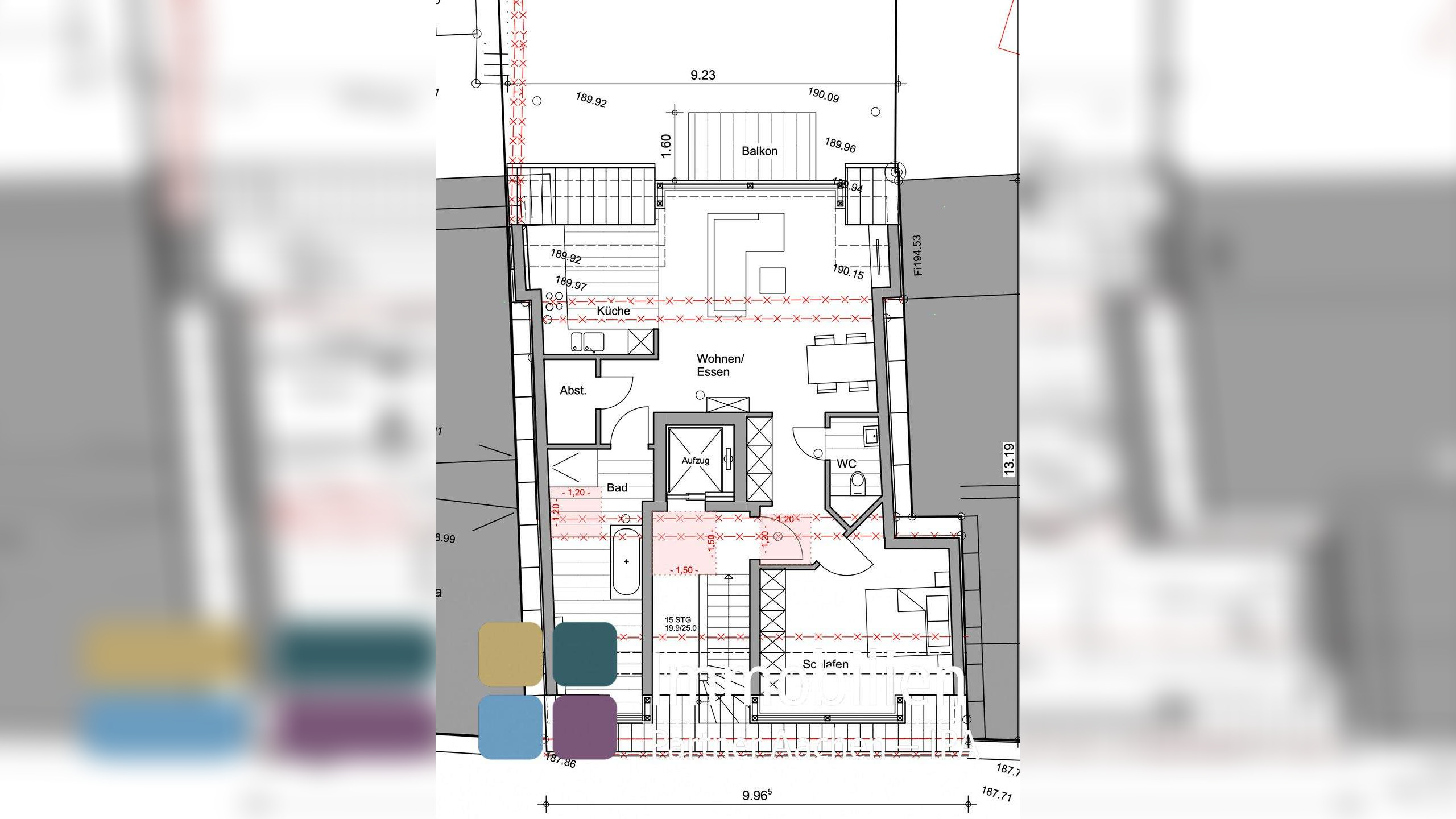
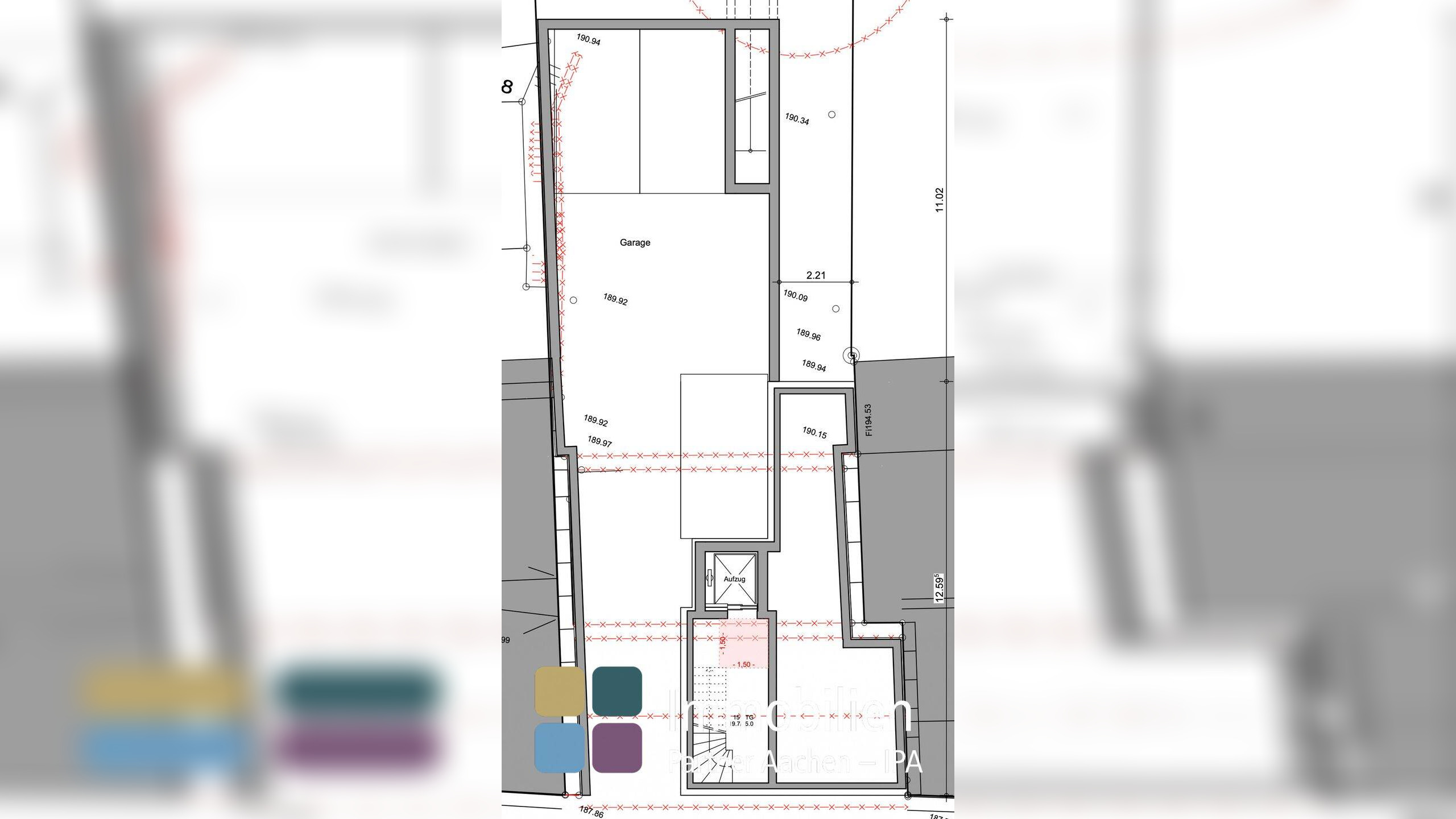
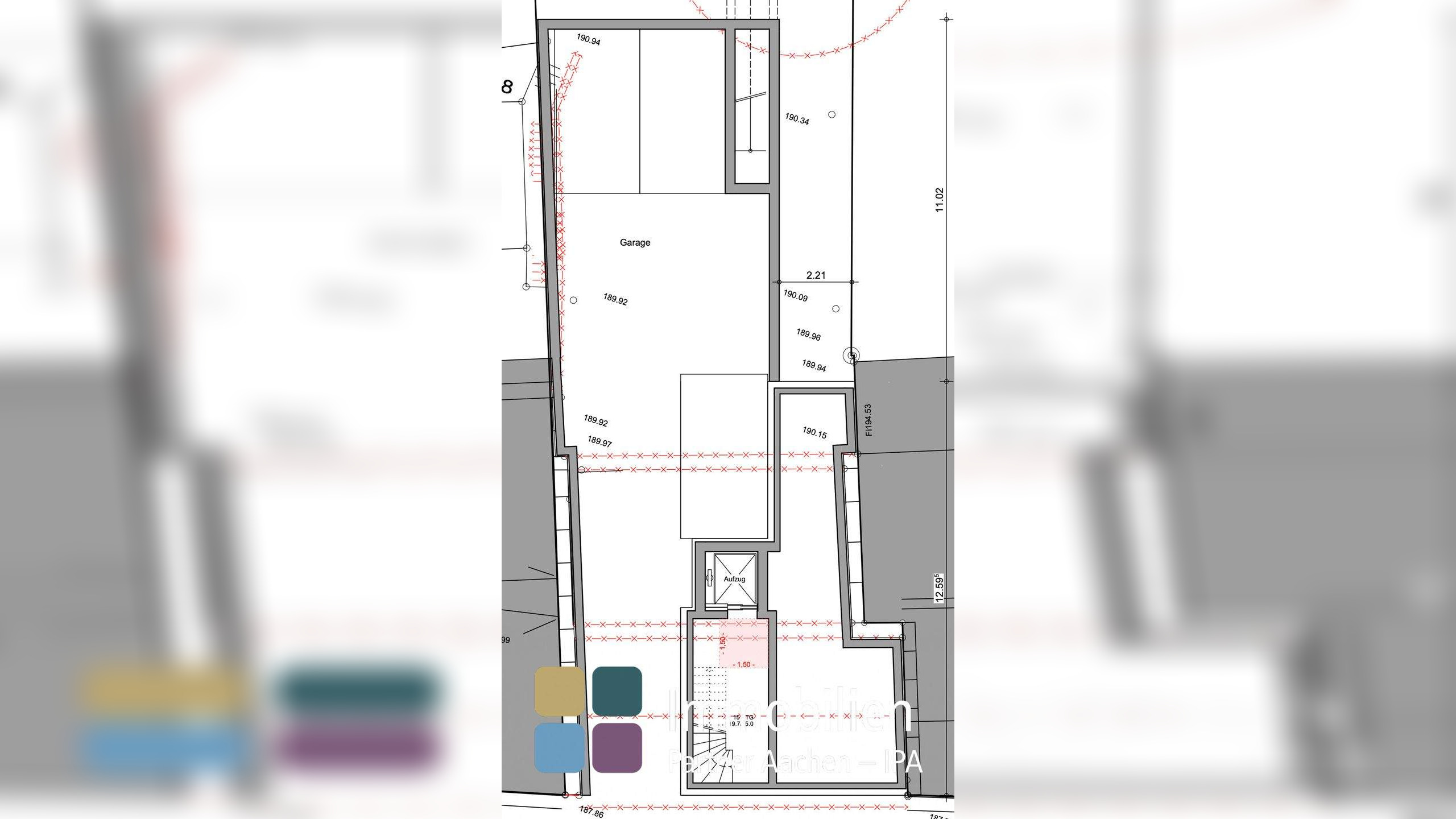
modern, hell, Aufzug...Das hier angebotene 3 FH ist im April fertig und auch schon in Teilen vermietet.Auch eine Selbsteinzug ist noch möglich.Die 3 Wohnungen.EG : 92qm - 3 Zimmer mit Terasse - frei ab Feb 2026OG : 88qm - 3 Zimmer mit BalkonDG : 77qm - 2 Zimmer mit BalkonDazu 2 TG Stellplätze und 1 Garage92qm, 88qm und 77 qm sind hell und modern und natürlich mit neuster Technik ausgestattet.Siehe Ausstattung und Beschreibung.So funktioniert es
- Alle neuen Anzeigen matchen wir kostenlos mit Deinen Suchparametern.
- Passende Angebote senden wir Dir in einer E-Mail pro Tag.
- Du kannst auch verschiedene Suchen anlegen und Dich jederzeit abmelden. Mehr dazu




