Objektdaten
Objektbeschreibung
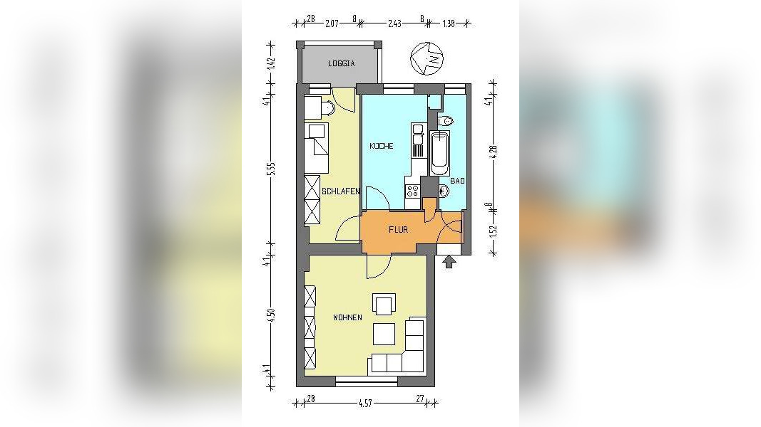
Mit dem FRIEDAS Berlin entsteht auf einem Areal von ca. 24.366 m2 ein modernes Wohnquartier. Der gesamte Neubau-Komplex in der Friedenauer Höhe umfasst sechs Gebäude mit insgesamt 396 Wohnungen, die in drei Bauabschnitten fertiggestellt werden. Im ersten Bauabschnitt entstehen 132 Wohnungen mit einem bis vier Zimmern, teilweise barrierefrei, sowie 69 TG-Stellplätze. Neben der Tiefgarage befinden sich im Untergeschoss auch Abstell-, Fahrrad-, Technik- und Müllräume sowie die Mieterkeller. Die moderne Architektur, bodentiefe Fenster und eine harmonische Farbgestaltung der Fassaden überzeugen ebenso wie die abwechslungsreich begrünten Außenanlagen. In Massivbaubauweise errichtet und erbaut gemäß den aktuell gültigen Bestimmungen der EnEV, erfüllen sämtliche Gebäude die Standards des GEG und "Effizienzhaus 55 EE" sowie die Vorschriften des erhöhten Schallschutzes. Die Wärme- und Warmwasserversorgung sichert ein Blockheizkraftwerk. Die gärtnerische Gestaltung der Freiflächen umfasst Rasen und Pflanzbeete mit Stauden sowie Hecken, Sträucher und Kleingehölze. Die Abgrenzung der Erdgeschoss-Terrassen erfolgt ebenfalls durch Hecken. Ein Spielbereich für die Kleinsten mit Sandkasten und Spielgeräten wird ergänzt durch ebenerdige Spielflächen für Schach, Mühle oder Mensch-ärgere-dich-nicht.Ähnliche Angebote
So funktioniert es
- Alle neuen Anzeigen matchen wir kostenlos mit Deinen Suchparametern.
- Passende Angebote senden wir Dir in einer E-Mail pro Tag.
- Du kannst auch verschiedene Suchen anlegen und Dich jederzeit abmelden. Mehr dazu





