Kaufpreis 342.400 €
Zimmer 4
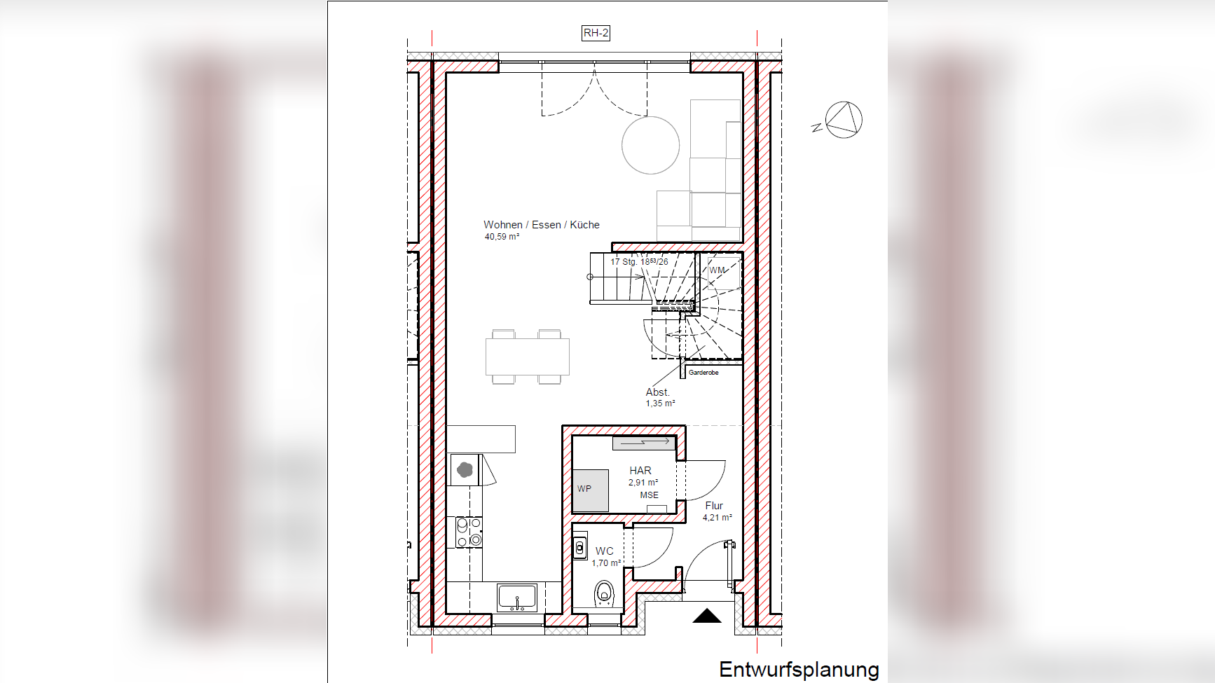
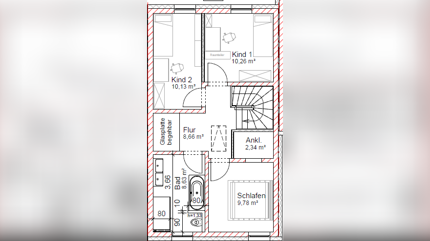
Größe 101 m²
39118 Magdeburg
Objektdaten
Veröffentlicht am: 29. August 2025
Frei ab: 26. August 2025
Energieausweis: Liegt bei der Besichtigung vor
Danke! Bitte bestätige Deine E-Mail-Adresse – wir haben Dir soeben eine Mail geschickt.
Es gab ein Problem beim Absenden. Bitte versuche es erneut.
Bitte bestätige Deine E-Mail-Adresse, um Updates zu erhalten.
Objektbeschreibung
In der beliebten Nachbarschaft Lemsdorf, in Magdeburg, befindet sich dieses moderne Familienhaus, das im Jahr 2025 erbaut wird. Mit einer großzügigen Wohnfläche von 101 m² bietet es 4 helle Zimmer, 2 Badezimmer und 2 Toiletten, wodurch es ideal für Familien ist. Die durchdachte Raumaufteilung sorgt für ein angenehmes Wohnambiente. Der Garten lädt zu entspannten Stunden im Freien ein und rundet das Angebot perfekt ab.
Auch das Ausstattungspaket für die Stadthäuser (schlüsselfertig)überzeugt:
Grundstück (Größe variiert)
Wohnfläche 98 - 101m²
KFW 40 klimafreundliches Wohngebäude
Luftwärmepumpe mit Fußbodenheizung EG, OG
PV-Anlage mit 10 Modulen ca. 4,5kWp und Akkuanlage mit 5 KW Speicher
Farbiger Außenputz, 2 farbig
Fenster außen anthrazit, innen weiß
Rollo´s elektr. anthrazit
Fensterbänke außen anthrazit, innen weiß
Eingangstür außen anthrazit innen weiß
Geschoßdecke filigraner Spannbeton
Massive Bauweise Poroton mit Dämmung
Betondachsteine Fa. Braas matt anthrazit
Simskasten anthrazit
Rohbaumass EG 3m / OG 2,75m
Bäder mit Fliesen
Ebenerdige Dusche mit Ablage
Stahlwangentreppe mit Holzstufen und Edelstahlgelände
Innentüren Weißlack glatt mit Drückergarnitur nur Klinke, Bäder mit WC-Rosettengarnitur
Großzügige Anzahl der Schalter und Steckdosen
Zuwegung zum Haus 1 x 3 m anthrazit gepflastert
Regenwasserentwässerung
Außenwasserhahn
Zuwegung zum Haus gepflastert 1 x 3 anthrazit
Betontreppe
Gegen faire Mehrpreise kann das Stadthaus auch bezugsfähig, inkl. Maler und Bodenbelagsarbeiten, sowie Terrassen und Stellplatz Pflasterung anthrazit und Mutterboden planiert erworben werden.
So funktioniert es
- Alle neuen Anzeigen matchen wir kostenlos mit Deinen Suchparametern.
- Passende Angebote senden wir Dir in einer E-Mail pro Tag.
- Du kannst auch verschiedene Suchen anlegen und Dich jederzeit abmelden. Mehr dazu
Wir haben soeben eine E-Mail mit Deinem Suchauftrag an Dich geschickt. – Klicke in dieser Mail auf den Bestätigungslink und schon geht's los. Prüfe ggf. auch Deinen Spamordner.
Es gab ein Problem beim Absenden Deiner E-Mail-Adresse. Bitte versuche es erneut.
WARNUNG: Bitte bestätige Deine E-Mail-Adresse, um regelmäßige Updates zu erhalten.