Exklusive Landhausvilla in absoluter Bestlage von Ahrensburg

Kaufpreis 3.000.000 €
Zimmer 8
Größe 348 m²
22926 Ahrensburg

Objektdaten

Veröffentlicht am: 31. August 2025
Baujahr: 1996
Energieausweis: Liegt bei der Besichtigung vor
  • Objektbeschreibung

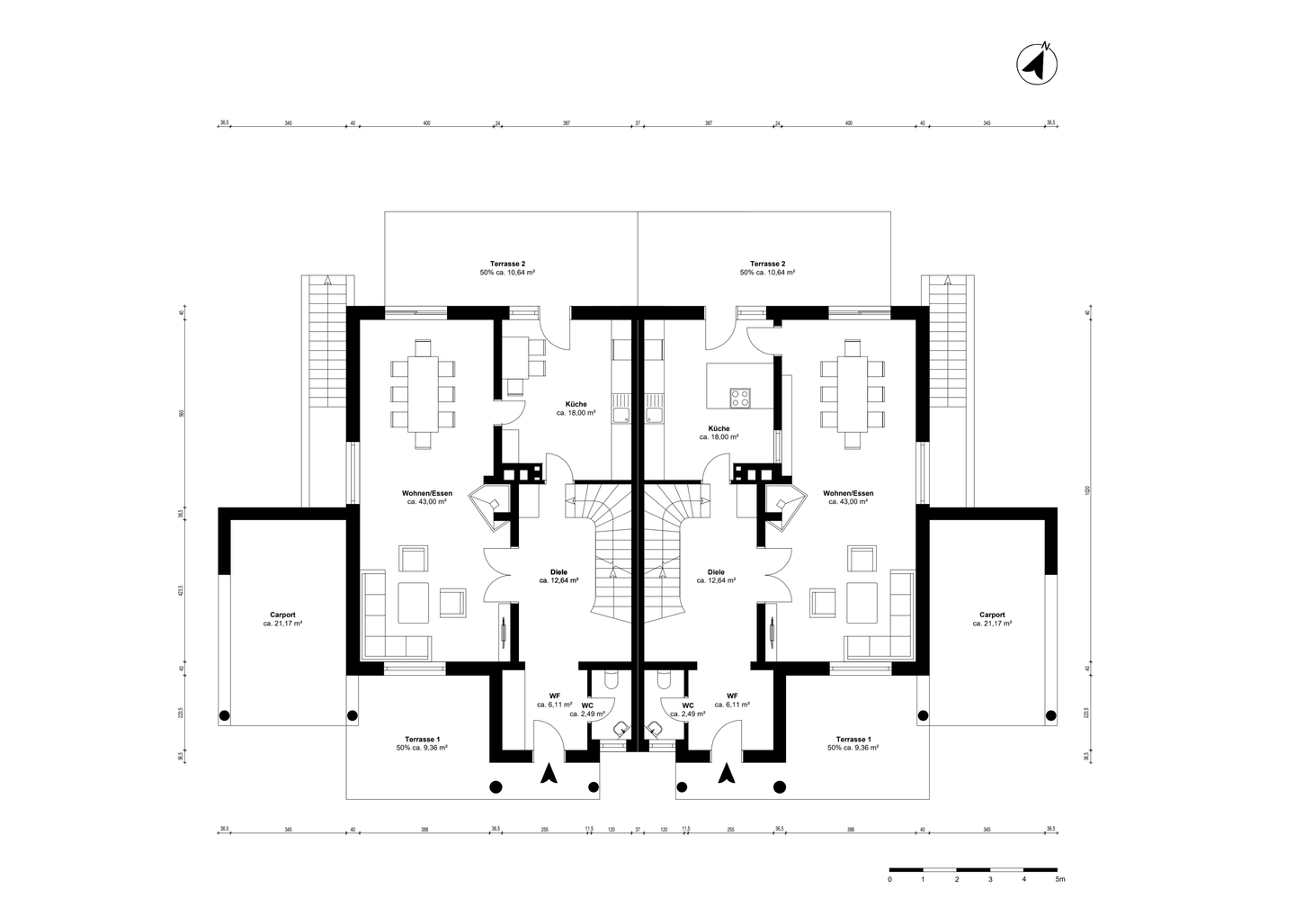
    Dieser junge Klassiker wurde 1995 errichtet und 2021 umfassend renoviert. Bei dem Haus handelt es sich um eine imposante Landhausvilla, die als exklusives Doppelhaus errichtet wurde. (Die Haushälften können auch einzeln erworben werden).Die Ansicht des Hauses besticht durch ihre klare, aufgeräumte und klassische Fassadengestaltung. Das Haus wurde in der Vergangenheit von drei Generationen einer Familie bewohnt, sodass ein zusammenhängender Garten gewünscht war. Eine Terrassenabtrennung und Gartenteilung wäre jederzeit herstellbar. Auch wurden beide Haushälften im Laufe der Jahre innen über die Küchen miteinander verbunden, auch dies wäre baulich wieder herstellbar. Der Grundriss beider Haushälften ist gespiegelt. Über den vorgelagerten Flur mit Gäste-WC gelangen Sie jeweils in das imposante Treppenhaus. Von hier erreichen Sie das Herzstück des Hauses, den offenen Wohn-Essbereich mit gut 43 m².Die sich zum Garten anschließende Küche ist mit ca. 18m² ebenfalls großzügig dimensioniert und sowohl vom Esszimmer, der Terrasse als auch vom Flur zu erreichen. Das Haus wurde 2021 und in den Folgejahren umfangreich renoviert und erneuert.Die Fenster, Parkettböden sowie die Küchen (Hummel-Küche) wurden jeweils neu eingebaut. In der rechten Haushälfte wurde zu dem der Eingangsbereich mit großformatigen Fliesen sowie moderner Garderobe neu gestaltet. Die repräsentative Optik des Eingangs setzt sich innen konsequent fort. Die Deckenhöhe beträgt 2,80 m, was dem Treppenhaus eine beeindruckende Größe verleiht. Die Hummel-Küche rechts besticht durch klare Linien und eine exzellente Ausstattung. Hochwertige Miele Küchengeräte und großzügige Keramik-Arbeitsflächen, mit integriertem Muldenlüfter auf dem Induktionskochfeld, sind der Traum jedes Hobbykochs. Kühlschrank, Weinkühler und Tiefkühler sind Side by Side perfekt miteinander kombiniert. In der linken Haushälfte ist die Küche in grau gehalten.Die Wohnzimmer strahlen durch das edle großformatige Eichenparkett eine besondere Großzügigkeit aus. Der goldgelbe ausdrucksstarke Farbton schafft mit dem von drei Seiten einfallenden Sonnenlicht eine besonders warme und wohnliche Atmosphäre. Den Winter verbringen Sie am knisternden Feuer. Über die bodentiefen breiten Fensterelemente erhalten Sie Zugang zur Frühstücksterrasse im Vorgarten als auch zur malerischen Rückseite mit Garten. Hier ist Platz für die ganze Familie. Jeweils drei Schlafzimmer befinden sich im Obergeschoss. Ursprünglich waren pro Haushälfte zwei Badezimmer im OG verbaut. Rechts wurde ein Bad zugunsten eines breiten Flures inkl. Arbeitsplatzes zum Balkon rückgebaut. Gerade Flächen, klare Linien und viel Licht machen dieses Bad zu einem modernen Wohlfühlort. Besonders komfortabel ist die geräumige Sitzdusche. Links haben Sie über das Masterbad Austritt auf den Süd-Ost-Balkon und Aussicht auf den prächtigen Vordergarten in einer der schönsten Straßen Ahrensburgs. Das vollunterkellerte Gebäude bietet auch im Kellergeschoss ein maximales Flächenerlebnis. Besonders ist die ungewöhnlich hohe Deckenhöhe von 2,40m. Der Keller ist auch über eine seitliche Außenkellertreppe zu erreichen. Die großen Fenster sowie das Vollbad schaffen Räume mit Wohnqualitäten. Das herrlich eingewachsene Grundstück wurde durch den Pflanzplan eines Landschaftsarchitekten angelegt. Ein Gartenpanorama - schöner als im Stadtpark.Bitte haben Sie Verständnis, dass wir nur Anfragen mit vollständigen Angaben beantworten.
    Nach oben scrollen