Objektdaten
Objektbeschreibung
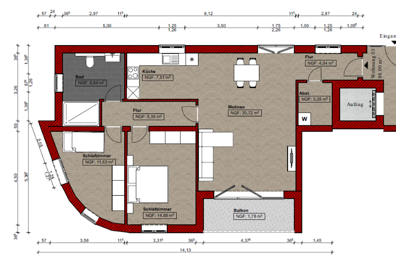
Das derzeit sich im Bau befindliche Mehrfamilienhaus wird als Kfw 40 plus Haus gebaut. Es erfüllt somit den höchsten energetischen Standard. Es werden neun großzügige Wohnungen entstehen, die zum 01.12.2025 bezogen werden können.Ähnliche Angebote
So funktioniert es
- Alle neuen Anzeigen matchen wir kostenlos mit Deinen Suchparametern.
- Passende Angebote senden wir Dir in einer E-Mail pro Tag.
- Du kannst auch verschiedene Suchen anlegen und Dich jederzeit abmelden. Mehr dazu





