Objektdaten
Objektbeschreibung
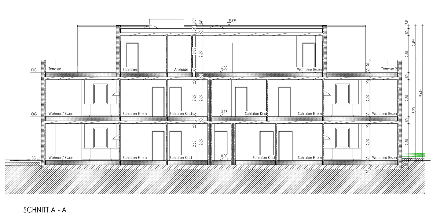
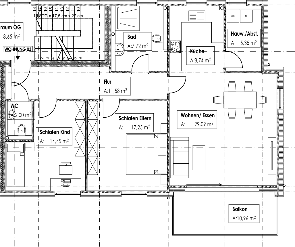
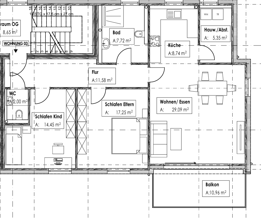
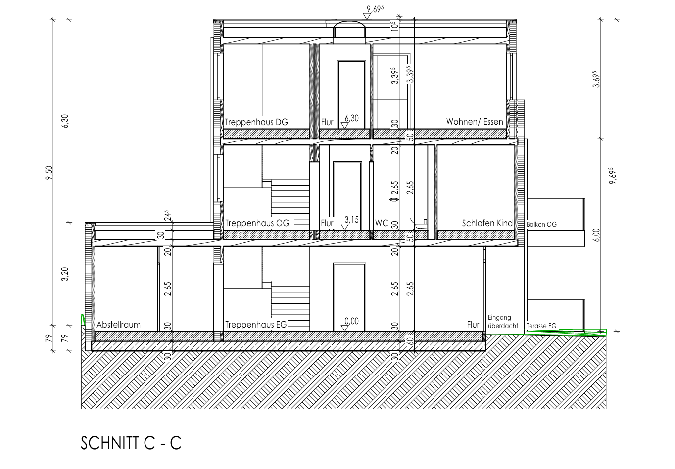
Die Wohnung Nr. 3 befindet sich in einem innovativen Massivholz-Mehrfamilienhaus in der Irscher Straße 51 A, 54439 Saarburg. Mit einer Wohnfläche von 98,77 m² bietet die Wohnung eine durchdachte Raumaufteilung und modernen Wohnkomfort. Die nachhaltige Massivholzbauweise sorgt für ein gesundes Raumklima, ist besonders schadstoffarm und somit auch für Allergiker bestens geeignet. Das Gebäude wird nach dem KfW 40-Standard errichtet, was einen sehr niedrigen Energieverbrauch und hohe Energieeffizienz garantiert. Verwendet werden ausschließlich regionale und PEFC-zertifizierte Rohstoffe, die nicht nur ökologisch sinnvoll sind, sondern auch zur Langlebigkeit und Wertbeständigkeit der Immobilie beitragen.So funktioniert es
- Alle neuen Anzeigen matchen wir kostenlos mit Deinen Suchparametern.
- Passende Angebote senden wir Dir in einer E-Mail pro Tag.
- Du kannst auch verschiedene Suchen anlegen und Dich jederzeit abmelden. Mehr dazu




