Objektdaten
Objektbeschreibung
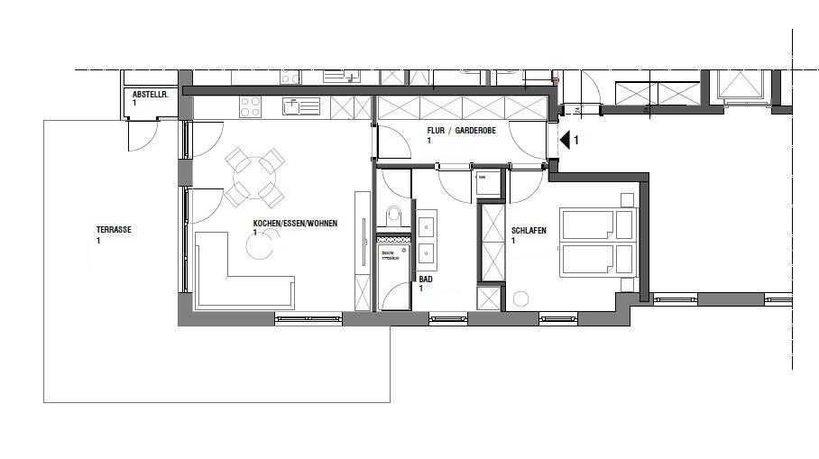
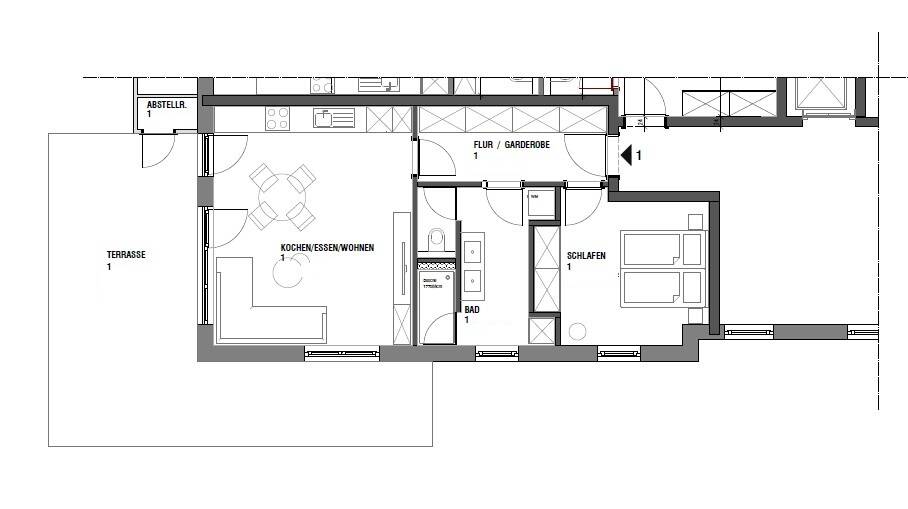
Willkommen im "Tegernsee Palais" - einem außergewöhnlichen Neubauprojekt mit nur 10 exklusiven Wohneinheiten in privilegierter Sonnenlage von Bad Wiessee. Hier, eingebettet in die traumhafte Naturkulisse des Tegernseer Tals, entsteht ein architektonisches Meisterwerk im gehobenen bayerischen Stil - modern interpretiert, energieeffizient geplant und mit erlesener Ausstattung verwirklicht.Auf einem ca. 1.950?m² großen, lichtdurchfluteten Grundstück realisieren wir Wohneinheiten mit Wohnflächen von ca. 77 m² bis 164?m² - darunter großzügige Gartenwohnungen, sonnige Etagenwohnungen und zwei atemberaubende Penthouse-Wohnungen mit Seeblick. Jede Wohnung verfügt über eine oder mehrere private Terrassen bzw. Balkone - perfekt für entspannte Stunden mit Blick auf die Berge oder ins Grüne. Bei der angebotenen Wohnung handelt es sich um eine 2-Zimmer-Erdgeschosswohnung mit großzügiger Terrasse. Tiefgaragenstellplätze sind auch vorhanden.Die Immobilie wird im KfW-55-Standard (bzw. angelehnt an KfW-40 mit PV-Anlage) errichtet und erfüllt höchste Ansprüche an Energieeffizienz und Nachhaltigkeit. Die moderne PV-Anlage, eine Pelletheizung sowie intelligente Planung im Einklang mit der umgebenden Natur bieten zukunftssicheren Wohnkomfort in bester Lage.Ähnliche Angebote
So funktioniert es
- Alle neuen Anzeigen matchen wir kostenlos mit Deinen Suchparametern.
- Passende Angebote senden wir Dir in einer E-Mail pro Tag.
- Du kannst auch verschiedene Suchen anlegen und Dich jederzeit abmelden. Mehr dazu




