Objektdaten
Objektbeschreibung
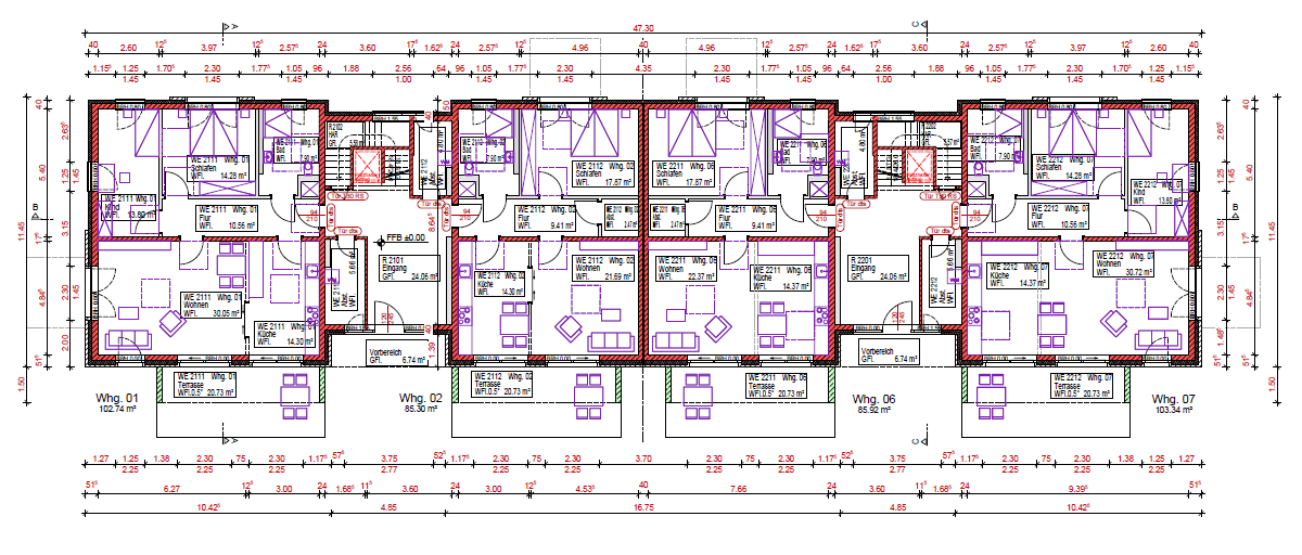
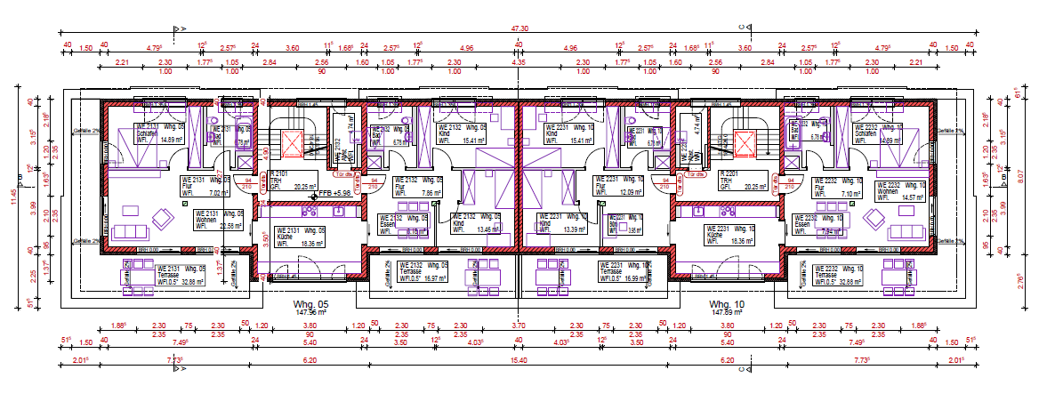
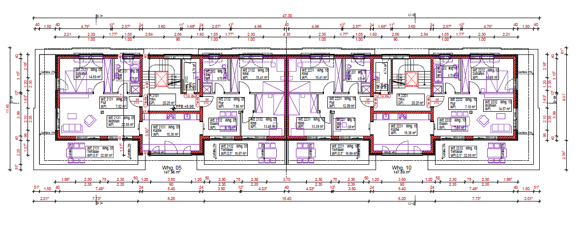
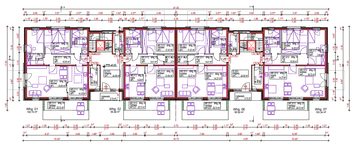
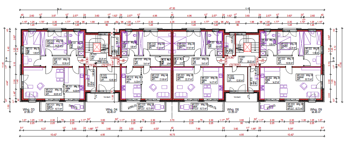
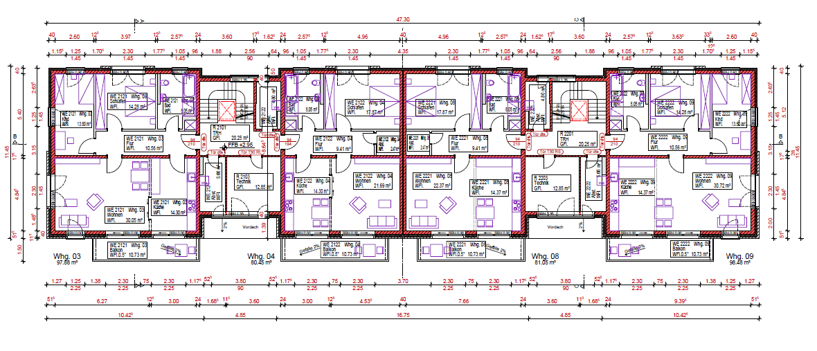
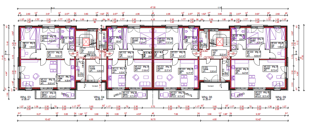
Die Zukunft im Blick: Angeboten wird ein ausführungsreifes Bauprojekt mit Baugenehmigung im erweiterten "Speckgürtel" von Berlin auf einem ca. 10.506 m² großen Grundstück zur Errichtung von 35 Eigentums- oder Mietwohnungen in der Kreisstadt Lübben im Spreewald. Mit dem Erwerb kann der Investor dank der vorhandenen Baugenehmigung mit Baufreigabe das Projekt sofort starten, ohne die Grunderwerbskosten über mehrere Jahre vorfinanzieren zu müssen und dann noch das Risiko bezüglich der Erteilung der Baugenehmigung zu haben. Das Grundstück befindet sich nur ca. 5 min fußläufig vom Bahnhof entfernt und bietet zudem eine sehr gute Anbindung zur Autobahn A13, zugleich aber auch ein ruhiges Wohnen im Grünen.Die 3-geschossig geplante Wohnanlage erstreckt sich über vier Gebäude und beinhaltet 56 Pkw-Stellplätze sowie Fahrradstellplätze. Das bestehende Bürogebäude wird in die geplante Wohnanlage integriert und kann unmittelbar als Coworking Space genutzt oder zu weiteren Wohnungen umgebaut werden. Hier stehen anteilig ca. 300 m² Nutzfläche zur Verfügung. Die massiv gebauten Lagerräume im Innenhof mit einer Fläche von ca. 455 m² können mit kleinen baulichen Veränderungen als Garagen oder Lagerräume in die neue Wohnanlage integriert werden. Die vorhandene Lagerhalle (ca. 1.250 m²) muss zurückgebaut werden, diese kann jedoch zur Weiterverwendung an Interessenten zum Selbstabbau angeboten werden.Die Wohnanlage kann dem Investor insgesamt als Vermietungsobjekt dienen. Denkbar ist auch der Verkauf von einzelnen Eigentumswohnungen an private Interessenten. Die Nachfrage dafür ist vorhanden, denn es gibt derzeit in Lübben und Umgebung keine neu errichteten, hochwertigen ETWs. Stichwort: Verkauf EFH - Kauf ETW oder Erwerb durch Großstadt-Pendler etc.So funktioniert es
- Alle neuen Anzeigen matchen wir kostenlos mit Deinen Suchparametern.
- Passende Angebote senden wir Dir in einer E-Mail pro Tag.
- Du kannst auch verschiedene Suchen anlegen und Dich jederzeit abmelden. Mehr dazu




