Kaufpreis 994.914 €
Zimmer 4
Größe 160 m²
59065 Hamm
Objektdaten
Veröffentlicht am: 21. September 2025
Energieausweis: Liegt bei der Besichtigung vor
Danke! Bitte bestätige Deine E-Mail-Adresse – wir haben Dir soeben eine Mail geschickt.
Es gab ein Problem beim Absenden. Bitte versuche es erneut.
Bitte bestätige Deine E-Mail-Adresse, um Updates zu erhalten.
Objektbeschreibung
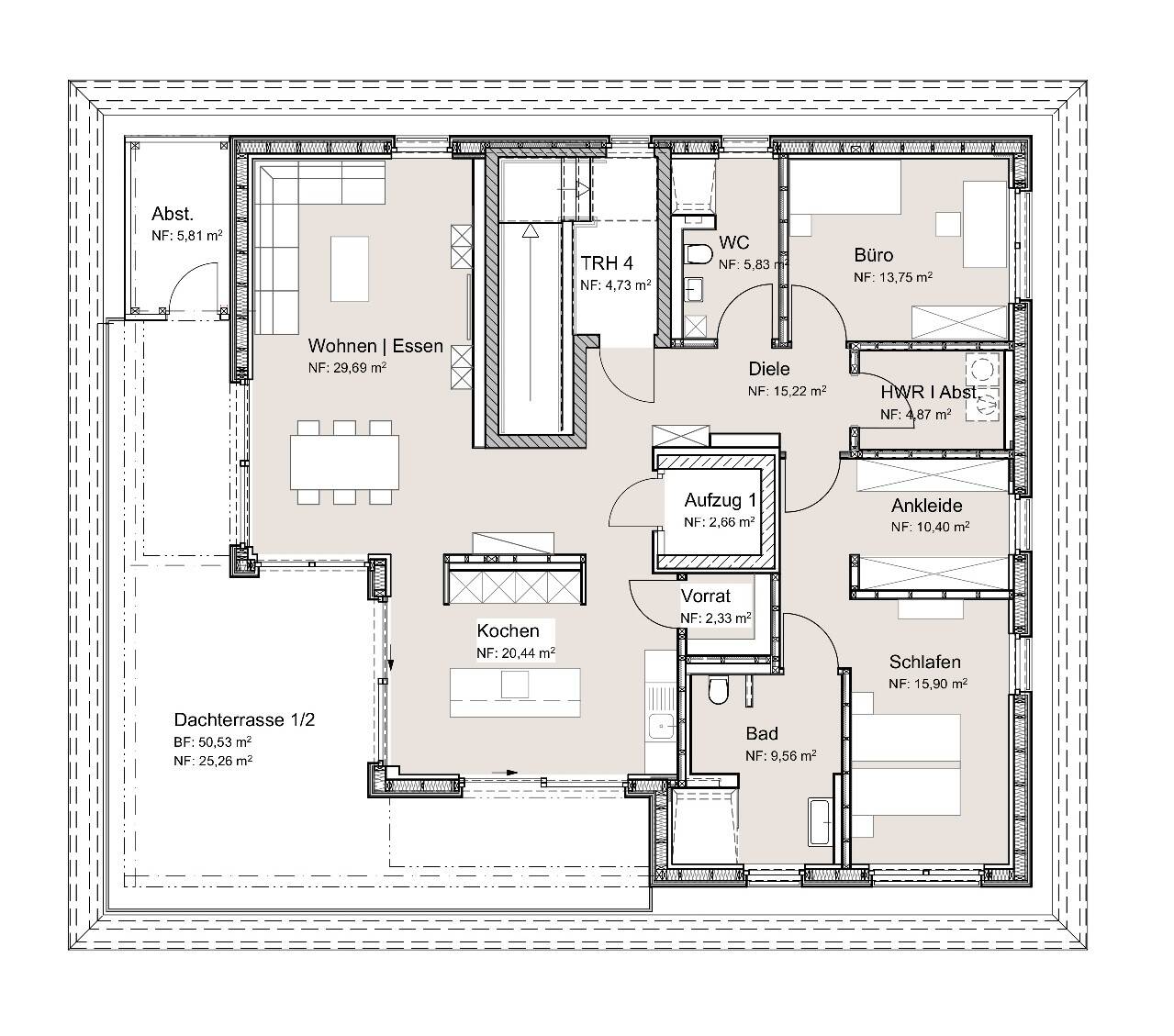
In einem modernen Mehrfamilienhaus mit lediglich sieben Wohneinheiten befindet sich diese exklusive ca. 160,47 m² große Penthousewohnung im 3. Obergeschoss dem obersten Stockwerk eines 3,5-geschossigen Neubaus in nachhaltiger Bauweise.Diese Wohnung spricht Menschen an, die im Leben viel erreicht haben und sich nun ein Zuhause wünschen, das genau diesem Lebensstandard gerecht wird. Hochwertig ausgestattet, barrierearm gestaltet und mit einer großzügigen Dachterrasse von ca. 40 m², bietet sie Ihnen maximale Privatsphäre ein Ort, an dem Sie die Ruhe genießen und Ihre Zeit ganz bewusst gestalten können.Der Zugang zur Wohnung erfolgt komfortabel und direkt über den Aufzug, der Sie von der Tiefgarage direkt in Ihre exklusive Wohnung bringt. Auf durchdacht geschnittenen Wohnflächen finden Sie neben einem lichtdurchfluteten Wohn- und Essbereich mit offener Küche auch ein separates Büro, ein Schlafzimmer mit angrenzender Ankleide, ein stilvolles Bad sowie ein Gäste-WC mit Dusche und einen praktischen Vorratsraum. Hier verbindet sich Funktion mit elegantem Design dezent, aber spürbar hochwertig.Die moderne Bauweise sowie die energetisch optimierte Ausführung nach dem KfW-Effizienzhaus-Standard 40 EE (A+) sorgen für niedrige Betriebskosten und erfüllen höchste Ansprüche an Nachhaltigkeit und Wohnkomfort. Eine Sole/Wasser-Wärmepumpe mit Tiefenbohrung, eine angenehme Fußbodenheizung, edle Bodenbeläge sowie moderne Sanitärausstattung sind Ausdruck eines Wohnstandards, den man spürt Tag für Tag.Zur Wohnung gehören zudem ein privates Kellerabteil, ein Tiefgaragenstellplatz mit direktem Hauszugang sowie gemeinschaftlich nutzbare Abstellräume für Fahrräder und Wäsche. Komfort und Sicherheit, wo sie gebraucht werden dezent, zuverlässig, selbstverständlich.Diese Penthousewohnung vereint stilvolles Wohnen, modernes Design und ökologische Verantwortung ideal für Menschen mit Sinn für Qualität, Weitblick und dem Wunsch, sich das Leben so zu gestalten, wie sie es sich verdient haben.Sollten Sie im Zuge des geplanten Umzugs Ihre bestehende Immobilie veräußern wollen, unterstützen wir Sie gerne auch dabei. Im Rahmen unseres Rundum-Services bieten wir eine professionelle Bewertung und Vermarktung abgestimmt auf Ihre zeitlichen Vorstellungen. Für eine unverbindliche Immobilienbewertung steht Ihnen unser Diplom-Sachverständiger Herr Yannick Dykhuizen zur Verfügung.
So funktioniert es
- Alle neuen Anzeigen matchen wir kostenlos mit Deinen Suchparametern.
- Passende Angebote senden wir Dir in einer E-Mail pro Tag.
- Du kannst auch verschiedene Suchen anlegen und Dich jederzeit abmelden. Mehr dazu
Wir haben soeben eine E-Mail mit Deinem Suchauftrag an Dich geschickt. – Klicke in dieser Mail auf den Bestätigungslink und schon geht's los. Prüfe ggf. auch Deinen Spamordner.
Es gab ein Problem beim Absenden Deiner E-Mail-Adresse. Bitte versuche es erneut.
WARNUNG: Bitte bestätige Deine E-Mail-Adresse, um regelmäßige Updates zu erhalten.